建売情報 Ready-built house

則松三丁目(2期)

Property Data

物件名 則松三丁目(2期) 1号棟
価格 4,010万円
交通 JR鹿児島本線「折尾駅」 徒歩15分
JR筑豊本線「本城駅」 徒歩33分
JR筑豊本線「東水巻駅」 徒歩34分
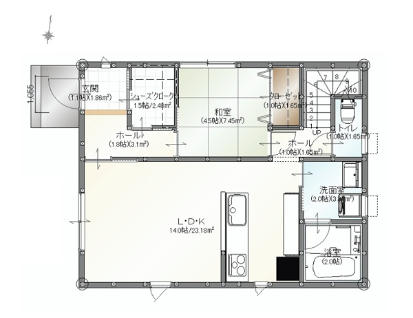
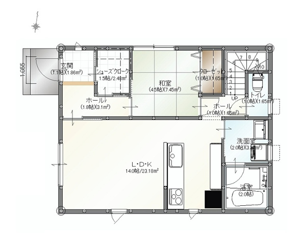
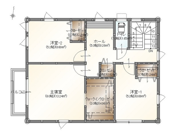
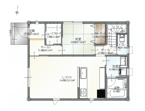
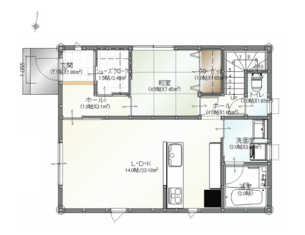
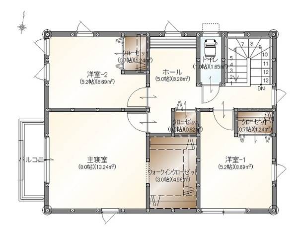
間取り 4LDK
築年数 新築(2026年03月完成予定)
建物面積 104.34㎡(31.56坪)
土地面積 182.16㎡(55.1坪)
セールスポイント 則松小学校まで徒歩5分、則松中学校まで徒歩3分。 お子さまの通学も安心できる立地で、子育て世帯にぴったり。 暮らしやすさと快適さを両立した新築4LDKの住まいです。
種別/構造 新築戸建て / 木造
築年/築年月 新築(2026年03月完成予定) / 2026年3月
建ぺい率/容積率 60% / 200%
向き -
住所 福岡県北九州市八幡西区則松3丁目
部屋番号/区画 1号棟
入居条件 -
キッチン システムキッチン、対面式キッチン
バス・トイレ 追い焚き風呂、浴室乾燥機
セキュリティ 複層ガラス
室内設備 -
建物設備 水道(公営)、排水(公共)、ガス(都市ガス)、駐車場あり
その他の特徴 TVモニタ付インターホン、角地
階建て 2階建
接道状況 角地(東 公道 5.5m)(南西 公道 5.5m)(南 2.5m)
私道負担面積 -
土地権利 所有権
主要採光面 -
セットバック
用途地域 第一種住居
地勢 -
都市計画 市街化区域
地目 宅地
国土法届出要否 不要
その他法令上の制限 景観法、■都市再生特別措置法 ■廃棄物の処理及び清掃に関する法律 ■高齢者、障害者等の移動等の円滑化の促進に関する法律 ■水防法 ■法第22条区域 ■都市機能誘導区域外 ■居住誘導区域内
現況/引渡時期 未着工 / 2026年3月下旬
取引態様 売主
施工会社 鬼丸ハウス(株)
取引条件の有効期限 2026年2月12日
情報更新日 2026年2月5日
次回更新予定日 2026年2月12日
備考 【有効敷地面積】140.83㎡(約42.60坪)

学校区:則松小学校・則松中学校

※水道引込工事代別途必要

CONTACT

    お電話でのお問い合わせはこちらから
    電話アイコン 093-383-9382

    [営業]9:00~18:00
    [定休]なし/GW、お盆、年末年始除く

    分譲地に載っていないエリアでの土地探しも鬼丸ハウスご相談ください。
    「ご意見・ご質問等」にご希望のエリアをご入力ください。
    お問い合わせの物件
    ご希望必須
    何を見て当社HPに
    興味を持ちましたか?必須
    お名前必須
    郵便番号必須
    都道府県必須
    ご住所必須
    ※建物名・部屋番号までご記入ください。
    見学希望日
    見学希望の場合はご入力ください。
    見学希望時間
    電話番号必須
    (半角数字・ハイフンなし)
    メールアドレス必須
    ご意見・ご質問等
    個人情報の保護について必須
    ※当フォームのご利用にあたっては、「個人情報保護方針」にご同意いただく必要があります。 ご同意いただける場合は、上記の「同意する」にチェックをつけたうえでご利用ください。

    Contact

    • 鬼丸ハウス本社

      〒800-0213
      福岡県北九州市小倉南区中曽根東2-13-16

      093-383-9382(9:00〜18:00)

      [営業]9:00~18:00
      [定休]なし/GW、お盆、年末年始除く

    各支店への家づくり・土地探しのお悩み解決!
    ご相談・来店予約はこちら