住まいのコラム Column
「注文住宅の見積もり額が予算オーバーだった。減額ポイントがわからず困っている」という方がいらっしゃると思います。
予算オーバー解消のために削れるところは意外とたくさんありますが、削るポイントを間違えて住み始めてから後悔するケースもあるため、注意が必要です。
今回は福岡都市圏及び北九州・山口下関エリアで多くのご家族の家づくりをサポートしてきた『鬼丸ハウス』が、ご予算に応じた家づくりの方法をわかりやすく解説します。
無理のない住居費で理想の暮らしを送っていくために、ぜひ最後までごらんください。
福岡都市圏及び北九州・山口下関エリアで注文住宅の予算オーバーにお困りの方は、鬼丸ハウスへお問い合わせください。
鬼丸ハウスは、ご予算に応じたプラン提案が得意なハウスメーカーです。
Contents
注文住宅の予算に含める費用一覧

注文住宅を検討し始めた段階では住宅の建築費用に注目しがちですが、実は予算(住宅ローン・頭金の総額)を配分するべき費用は、多岐にわたります。
注文住宅の予算を配分する費用を一覧表にまとめたので、はじめに確認してください。
| 費用項目 | 内訳 |
|---|---|
| 土地 | ・土地取得費用 ・整地費用 ・地盤改良費用 ・古家付き土地の場合は解体費用 |
| 住宅 | ・住宅建築費用 ・家具・家電購入費用 |
| 外構 | ・フェンス設置費用 ・駐車場造作費用 ・庭・住宅周囲の整備費用 |
| 諸費用 (総予算の10%前後が目安) |
・登記費用(土地・建物) ・手数料(不動産業者・金融機関) ・住宅ローンの保証料 ・建築確認申請費用 ・水道加入負担金 ・不動産取得税 ・火災保険料・地震保険料 ・引っ越し費用 ・仮住まい費用 |
※上記以外の費用が発生する場合もあります。
注文住宅を建てる場合、費用を調整できるタイミングは以下のとおりです。
- 土地選びの段階
- 建築プラン作成段階(住宅ローン契約前)
住宅ローン契約後の追加費用は手持ち資金から支払う必要があるため、「予算オーバー額の調整を完了した状態で住宅ローンを契約するのがベスト」と考えておきましょう。
※のちほど、「注文住宅を建てる流れ」で入居までの流れを確認できます。
注文住宅の減額ポイント|300〜1000万円の予算オーバー解消のために削れるところ

「土地選びの段階」「建築プラン作成段階」どちらにも、注文住宅の費用を大きく減額できるポイントがあります。
注文住宅の予算オーバー額は平均200〜300万円、多くて1000万円となることも珍しくないため、予算オーバーとなっても、焦らずに減額ポイントをピックアップしましょう。
土地選びの段階の減額ポイント
土地選びの段階の主な減額ポイントは以下のとおりで、300万円以上を減額できるケースもあります。
- 地盤改良が必要ない土地を選ぶ
- 整地済みの土地を選ぶ
- 平坦な土地を選ぶ
- 古家なしの土地を選ぶ
- ライフライン(水道管・ガス管)引き込み済の土地を選ぶ
- 希望エリアを広げて、取得価格を抑えられる土地を選ぶ
- 希望面積の範囲を広げて、取得価格を抑えられる土地を選ぶ
土地価格だけではなく、着工までに発生する費用も確認したうえで土地選びをしてください。
こちらの記事で、後悔しない土地の選び方を確認できます。
〈関連ページ〉買わない方がいい土地の特徴14選|後悔を防ぐ見分け方も解説
建築プラン作成段階の減額ポイント

建築プラン作成段階の減額ポイントと、具体的なアイデアを紹介します。
延床面積を減らす
延床面積を1坪減らすことで、建築費用を50〜100万円減額できるケースもあります。
【居住空間を圧迫しない工夫をしながら延床面積を減らすアイデア】
- 廊下を減らす
- 玄関ホールを設けない
- リビング内に階段を配置
- 水回りをまとめて配置 など
例としてこちらは延床面積24.72坪・3LDKの平屋で、すべての空間をリビング直結にして空間をフル活用しています。
また、大容量の収納スペースを複数設けたことで、いつも整理整頓をしながらすっきりした室内環境を維持できる住宅となりました。

屋根形状をシンプルにする
シンプルな屋根形状の例は以下のとおりで、複雑な屋根形状と比較して50万円以上を減額できる場合もあります。
- 片流れ屋根
- 陸屋根
- 切妻屋根
例としてこちらは片流れ屋根の平屋で、土地面積・形状に合わせて、軒を大きく出さない設計としました。
玄関を後退させて玄関ポーチとし、雨風が室内に吹き込まないよう工夫しています。

ただし、屋根形状は土地の状況・周辺環境・希望の間取りに応じて検討する必要があるため、注文住宅を依頼する施工業者のアドバイスを受けて選択してください。
住宅形状をシンプルにする
「コの字型・ロの字型などの複雑な住宅形状」から「正方形・長方形のシンプルな住宅形状」へ変更すると、建築費用を50〜100万円程度減額できる場合があります。
凸凹が多い複雑な住宅形状にすると外壁の面積が増えるため、使用建材や施工の手間が増加し、建築費用アップにつながると考えておきましょう。
室内の建具を変更or減らす
建具とは間口に設置するドアなどのことで、1箇所5〜30万円が目安です。
そのため、「使用頻度が低い建具を安価な製品にする」「使用頻度が高く開閉が面倒な場所の建具をなくす」といった工夫も、建築費用の減額につながります。
【使用頻度が低い場所の例】
- 客間のクローゼットや押し入れ
- リビング直結の和室を仕切る襖 など
【使用頻度が高い場所の例】
- パントリー
- ファミリークローゼット など
勝手口を設けない
勝手口を設ける費用は30〜50万円が目安で、「勝手口を設けたもののほとんど使用しない」という場合もあります。
また勝手口を設けると、防犯性・断熱性に対する配慮も必要となるため、明確な使用方法をイメージできない場合には、建築プランからの除外を検討しましょう。
バルコニーを設けない
バルコニーを設ける費用は30〜50万円/畳が目安で、バルコニーも「ほとんど使用しない」という場合があります。
予算オーバーの場合には、バルコニーの必要性を再度検討してください。
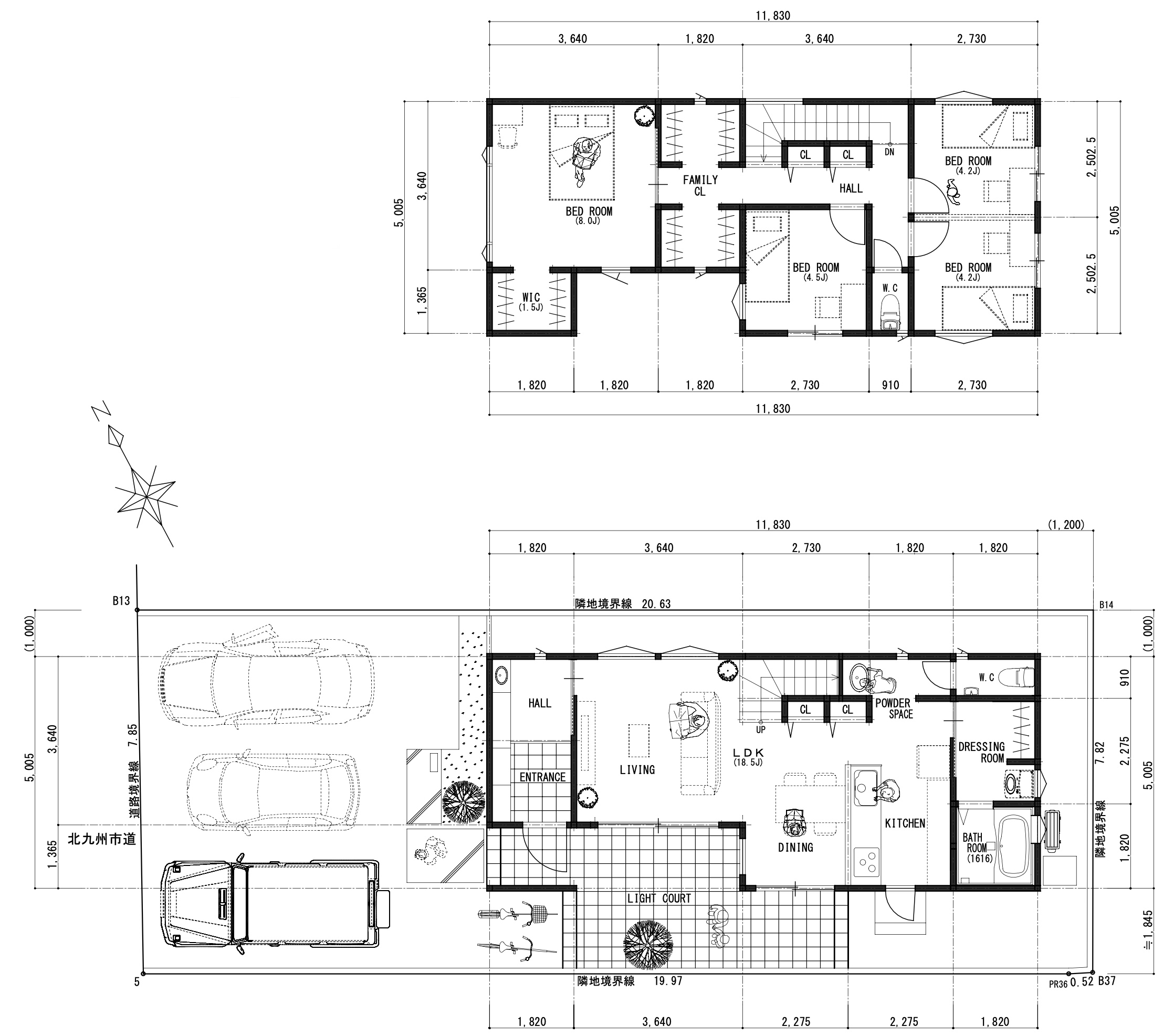
例として、こちらは延床面積32.06坪・4LDKの住宅で、バルコニーを設けず1階にランドリールーム(DRESSING ROOM)を設けています。
日中に留守にすることが多いご家庭では、室内にランドリールームを設けるほうが、天候や時間を気にせずに洗濯物を干せて便利なケースがあります。

こちらの記事で、ランドリールームがある間取りを確認できます。
〈関連ページ〉家事動線が良いランドリールームの間取り図と実例|平屋・二階建てのアイデアをご紹介
外構プランを見直す
外構とは敷地内の住宅以外の部分のことで、整備内容によっては数百万円の費用が発生します。
予算オーバーの場合には、シンプルな整備内容を再検討して費用を調整してください。
(例)
- 塀・フェンスの面積や素材を変更
- 門扉の面積・造作を変更
- 土工事の内容を変更(コンクリートから砂利へ変更など)
- 植栽を施工業者へ依頼しない など
内装材の一部をグレードダウンする
グレードダウンの候補となる内装材は以下のとおりで、10〜30万円を減額できる場合があります。
- フローリング材
- 壁紙
- 塗装材 など
内装材の品質は室内環境・耐久性に大きく影響するため、使用頻度の低い部位に絞ってグレードダウンを検討してください。
住宅設備のグレードを見直す

住宅設備は高グレードほど高機能ですが、「機能が多すぎて使いきれない」という声をよくうかがいます。
住宅設備のグレード見直しで10万円前後を減額できる場合があるため、ご家族にとって本当に必要な機能を見直して設備のグレードを再検討しましょう。
施工業者の標準仕様を選択
標準仕様とは、各施工業者が追加費用なしで提供している設備・建材などのことです。
標準仕様以外の発注をすると、一般的に「設備・建材の仕入れ額に手数料を上乗せした費用」を支払うことになると考えておきましょう。
標準仕様以外の発注をやめることで、数十万円を減額できる場合があります。
施主支給を検討
施主支給とは、施主が住宅設備などを仕入れて施工業者へ提供することです。
以下のような設備を施主支給することで、10〜30万円を減額できる場合があります。
- 照明
- エアコン
- 洗面台
- 表札 など
ただし、標準仕様に含まれるような大型設備(キッチンなど)は、施主支給のほうが高額になるケースもあるため、施工業者に相談しながら内容を検討してください。
注文住宅から規格住宅・建売住宅に変更する方法もある
予算オーバーをどうしても解消できない場合には、注文住宅から規格住宅・建売住宅に変更すると、数百万円を減額できる場合があります。
ご家族にとって満足度の高い規格住宅・建売住宅を提供している施工業者を選ぶために、施工業者のホームページなどで情報収集をしましょう。
福岡都市圏及び北九州・山口下関エリアで注文住宅の予算オーバーにお困りの方は、鬼丸ハウスへお問い合わせください。
鬼丸ハウスは、注文住宅・規格住宅・建売住宅すべてを提供可能です。
注文住宅の予算がオーバーしても削ってはいけないところ

注文住宅の予算オーバーを解消する減額ポイントを紹介してきましたが、注文住宅のプランを組み立てる際には、削ってはいけないところもあります。
- 断熱性
- 耐震性
- 耐久性
- 省エネ性
- 防犯性
それぞれ、削ってはいけない理由をわかりやすく解説します。
断熱性
断熱性とは、冬に室内の暖かい空気を外に逃さず、夏に日射熱を室内に侵入させない性能のことです。
断熱性が低い住宅は「寒い・暑いが気になる」「冷暖房効率が悪い」などの問題があり快適な住環境を実現できないため、断熱性の確保は妥協しないことをおすすめします。
【断熱性を確保する方法】
- 外壁の間口に、断熱性の高い建具を設置する(窓・玄関ドアなど)
- 断熱性能の高い断熱材を、隙間なく施工する(標準仕様で高い断熱性能を提供している施工業者は、高い施工技術を持っていると想定できます)
- 自然光による暖かさも活用できるように建具の位置・サイズを調整する など
耐震性
耐震性とは、大地震発生時に住宅が簡単に倒壊・崩壊・損傷しない性能のことです。
高い耐震性は、「住宅自体の耐震性能」「強固な地盤」どちらも確保しないと実現できないと考えておきましょう。
特に以下のような地域では、妥協せずに耐震性能を確保してください。
- 過去に大きな地震被害を受けた地域
- 将来の大地震発生時に大きな被害が予測されている地域
将来の大地震発生時の被害予測は、こちらの記事で紹介しているハザードマップで確認できます。
〈関連ページ〉南海トラフ巨大地震の被害想定見直しで「福岡県北九州市に津波5m」|津波ハザードマップの見方など解説
耐久性

耐久性が低い建材・設備は安価ですが、短期間でリフォームが必要となり費用が発生するため、耐久性を妥協しないことも大切です。
特に以下の部位は「使用頻度が高い」「劣化しやすい環境」などの理由から、耐久性を妥協せずに建材・設備を選択する必要があります。
- 外壁
- 屋根
- 玄関ドア
- LDKの内装材・床材
- 水回り設備・周辺の内装材 など
省エネ性
設備・家電の省エネ性は毎月の水道光熱費に大きく影響するため、似たような製品を選ぶ際には、省エネ性に注目しましょう。
【省エネ性が関連する設備・家電の例】
- 給湯器
- 水回り設備
- 照明
- エアコン など
防犯性
防犯性はご家族の安全な暮らしに関わる重要な性能なので、妥協せずに強化してください。
防犯性の強化方法は周辺環境などに応じて検討する必要があります。
- 大きな窓の設置位置を調整
- 外から室内を見通せる位置に窓を設置する場合は、高窓・地窓を選択
- 敷地内の人気のない位置に窓を設置する場合には、人が侵入できないFIX窓・小窓などを選択
- 玄関ドアの鍵は簡単に解錠できない種類を選ぶ
- 防犯カメラを設置 など
【番外編】削ってはいけないところを減額する必要があるなら、ハウスメーカー変更も検討
「見積もり書を見直しても削れるところがないので、断熱性などを妥協するしかない」とお困りの方もいらっしゃるのではないでしょうか。
その場合には、ハウスメーカーの変更も検討してください。
ハウスメーカーの標準仕様・デザイン性などはそれぞれで、ご家族の要望にマッチする標準仕様を提供しているハウスメーカーであれば、予算内でのプランを提案可能です。
ただし、ハウスメーカーをスムーズに変更できるタイミングは決まっていて、タイミングを逃すと違約金などが発生する場合があります。
次に注文住宅を建てる流れも紹介するので、入居までの動きを一緒に確認しましょう。
福岡都市圏及び北九州・山口下関エリアで注文住宅の予算オーバーにお困りの方は、鬼丸ハウスへお問い合わせください。
鬼丸ハウスは、標準仕様で高い断熱性・耐震性などを提供しているハウスメーカーです。
注文住宅を建てる流れ

注文住宅を建てる流れは、以下のとおりです。
| 注文住宅を建てる流れ |
|---|
| 総予算を決める(住宅ローン・頭金の総額) ↓ ・土地選び・ハウスメーカー選びを同時進行 ・間取りプラン作成・見積もり書作成依頼も始め、予算に応じてプランを調整 ↓ 利用する住宅ローンを検討 ↓ ・購入する土地が決まったら、住宅ローンの仮審査を受ける ・この段階でハウスメーカーを決定して、プランを完成させる(費用の総額を決定する)のがベスト (住宅ローンの仮審査は、これより前の段階で受けておいてもOK) ↓ 仮審査を通過した場合は、以下を同時に進める ・土地取得 ・ハウスメーカーとの工事請負契約 ・住宅ローン本審査 ↓ ・住宅ローンの本審査を通過した場合は、住宅ローン契約 ・土地代金の決済 ↓ 着工 ↓ 追加費用が発生しない範囲で、工事の段階に応じて内装等を決定していく (工事請負契約時の見積もり書にない発注をすると追加費用が発生するため、手持ち資金で支払いが必要となる) ↓ 注文住宅完成・入居 |
注文住宅の減額ポイントQ&A

最後に、「注文住宅の減額ポイントを知りたい」とご希望の方から、鬼丸ハウスがよくいただく質問・回答を紹介します。
Q.補助金を申請すれば減額を考えなくて大丈夫?
A.補助金を申請する場合でも、減額が必要な場合があります。
補助金の受け取り方法は「注文住宅完成後に受け取りor建築費用に充当」なので、現金支出が必要な費用が不足する場合には、建築費用の減額で調整が必要です。
また、補助金は申請しても必ず受け取れるとは限らない点も念頭において、無理のない予算で費用を調整することをおすすめします。
Q.高めの住宅ローン希望額で仮審査に通過した。減額を考えずにプランを決めて大丈夫?
A.住宅ローンは、金融機関が判断した借入可能額ではなく、「ご家族が無理なく返済できる額」を借り入れることが大切です。
また、フルローンで住宅ローンを利用する場合でも、現金支出が必要な費用があるため、すべての費用を支払えるように資金配分をしてください。
【現金支出が必要な費用】
- 土地取得時の申込証拠金や手付金
- 不動産業者に支払う仲介手数料
- 不動産取得税
- 火災保険料・地震保険料 など
Q.減税制度の活用方法を知りたい
A.注文住宅の新築時に活用できる減税制度は以下のとおりで、申請が必要な制度もあります。
- 住宅ローン減税:税務署へ申請が必要
- 固定資産税の減額:お住まいの市町村へ申請が必要
- 登録免許税:住宅の登記を司法書士などの専門家へ依頼する場合は、伝えられた額を納付するのみ
- 不動産取得税:県が自動的に計算するのが一般的だが、書類提出を求められる場合もある
まとめ
注文住宅の見積もり書が予算オーバーとなってお困りの方へ、建築費用の減額ポイントなどを紹介しました。
建築費用の減額ポイントは複数ありますが、減額してはいけない部分もあります。
今回紹介した情報を、無理のない予算で理想の注文住宅を建てる参考にしていただけると幸いです。
お問い合わせ Contact
-
鬼丸ハウス本社
〒800-0213
福岡県北九州市小倉南区中曽根東2-13-16093-383-9382(9:00〜18:00)
[営業]9:00~18:00
[定休]なし/GW、お盆、年末年始除く