住まいのコラム Column
マイホームの間取り作成中・建売住宅の間取りを確認中で、「鬼門(表鬼門)・裏鬼門などの家相は暮らしに関係ないと思うけど、一応調べておきたい」とお考えの方がいらっしゃるのではないでしょうか。
鬼門・裏鬼門は家相の中で凶とされる方位の名称ですが、本来の意味を理解すると、凶相を解消して快適な家づくりが可能です。
今回は、福岡都市圏及び北九州・山口下関エリアで多くのご家族の家づくりをサポートしてきた『鬼丸ハウス』が、ご家族が長く快適に暮らせる家づくりの方法を、わかりやすく解説します。
不安をすべて取り除いたうえで理想のマイホームを手に入れるために、ぜひ最後までごらんください。
※家相にはさまざまな流派があります。
今回紹介するのは一般的な内容であることを、あからじめご了承ください。
福岡都市圏及び北九州・山口下関エリアでマイホームを検討中の方は、鬼丸ハウスへお問い合わせください。
ご家族の理想を丁寧に伺い、最適なプランを提案いたします。
Contents
鬼門・裏鬼門は関係ないと思える家づくりの方法

鬼門・裏鬼門を含む「家相」は、家が自然界などから受ける影響をベースに、人が心身ともに健康に生きていくためのヒントとして活用されています。
家相の中でも鬼門・裏鬼門は特に注意が必要な方位とされていますが、現代の住宅建築技術や暮らしの工夫によって、鬼門・裏鬼門特有の問題を解消可能です。
「鬼門・裏鬼門は関係ない」と思える家づくりをするために、はじめに鬼門・裏鬼門の本来の意味・具体的に何がダメなのかなどを、わかりやすく解説します。
鬼門・裏鬼門は玄関・トイレなどの水周りに向かないとされる方位|何がダメなのか解説
鬼門・裏鬼門は、家相上で「気が入れ替わる場所」「鬼が出入りする場所」などと言われています。
- 鬼門(表鬼門)の方位:北東(東北)
- 裏鬼門の方位:南西(西南)
鬼門・裏鬼門が凶方位とされる理由はさまざまな説がありますが、方位特有の環境が快適な住環境をつくりづらいことは事実です。
鬼門・裏鬼門に配置すると凶相と言われる間取りを、まとめて紹介します。
| 方位特有の環境 | 凶相の間取り |
|---|---|
| 【鬼門:北東】 ・寒い ・湿気が滞りやすい ・日照時間が短い |
・玄関 ・水回り(トイレ・キッチン・浴室・洗面所) ・階段 ・大きな窓 ・神棚(鬼門のみ仏壇も凶相) |
| 【裏鬼門:南西】 ・紫外線の影響を受けやすい ・日射熱がこもりやすい ・午前中に暗い ・午後は日差しが強すぎる |
家の性能が不十分だった時代には、上記のような間取りが住人の心身に影響を与えていました。
(例)鬼門・裏鬼門がキッチンの間取り
- 鬼門:寒い環境の中で長時間立ち仕事をしながら冷たい水を扱うことで、心身が疲弊する
- 裏鬼門:紫外線や日射熱によって食品が腐敗しやすい
現代の家は鬼門・裏鬼門を快適な環境に整える対策が可能で、実際に「鬼門・裏鬼門に玄関などを配置しても関係ない。暮らしへの影響を感じない」と実感している方がたくさんいらっしゃいます。
次に、鬼門・裏鬼門を快適な環境に整える具体的な対策を紹介します。
鬼門・裏鬼門を快適な環境にする具体的な対策

鬼門・裏鬼門を快適な環境に整える対策を、「間取りを変更できる場合」「間取りを変更できない場合」に分けて紹介します。
【間取りを変更できる場合】
- 凶相と言われる間取りを少しずらす(例:玄関を鬼門の北東に配置すると凶相だが、東・北に配置すると吉相)
- リビングは吉凶がない空間なので、鬼門・裏鬼門に配置して問題ない
- 鬼門(表鬼門)は悪い気が良い気に変わる方位なので寝室を配置して問題ない
【間取りを変更できない場合】
- 鬼門・裏鬼門に換気設備の排気口を設置する(空気が空間に滞らない対策)
- 高断熱・高気密の家づくりをする
- 窓を設置する場合には長時間の換気を避け、屋外環境の影響を最小限にする
- 明るい空間づくりをする(内装の色や模様・照明の色味など)
- 観葉植物を置き、空間を浄化する(ひいらぎ・南天・千両・万両など)
- 備え付けの収納スペースを設けて、掃除・整理整頓をしやすい環境づくりをする など
建売住宅を選択する場合は間取りを変更できませんが、鬼門・裏鬼門に玄関などが配置された間取りであっても、上記のように対策可能です。
注文住宅・規格住宅を選択する場合は、次に紹介する鬼門・裏鬼門の調べ方を、間取り作成の参考にしていただけると幸いです。
福岡都市圏及び北九州・山口下関エリアで後悔しない間取り作成をご希望の方は、鬼丸ハウスへお問い合わせください。
ご家族の理想を丁寧に伺い、最適なプランを提案いたします。
鬼門・裏鬼門の調べ方|鬼門・裏鬼門以外の吉凶方位も確認

「鬼門・裏鬼門などの家相は家づくりに関係ない」と考えていても、情報収集をし始めるとマイホームの間取りで確認したくなりますよね。
次に、「鬼門・裏鬼門の調べ方」「鬼門・裏鬼門以外の吉凶方位」も確認しましょう。
間取り図で鬼門・裏鬼門を確認する方法|四角形・変形の間取りで解説
鬼門・裏鬼門は、間取りを家の中心から8方位に分けて確認します。
| 鬼門・裏鬼門の調べ方 |
|---|
| 間取りの角から対角線を引き、家の中心を確認 ↓ 間取りを24方位に分ける ↓ 45度ずつ区切って8方位を確認 ↓ 北東が鬼門(表鬼門)、南西が裏鬼門 |
(例)家の形状が四角形の場合

(例)家の形状が変形の場合
家の形状が四角形以外の場合は、間取り図を囲む線を引いて家の中心を確認してください。
.jpg)
鬼門・裏鬼門以外の凶方位・間取り一覧
家相には、鬼門・裏鬼門以外にも凶相とされている間取りがあります。
| 方位 | 凶相の間取り |
|---|---|
| 北 | 水回り※ |
| 東 | 清浄ではない水回り |
| 南東 | トイレ |
| 南 | キッチン・トイレ・浴室・パントリー |
| 西 | 水回り |
| 北西 | 水回り・玄関・階段 |
※水回り:「トイレ・キッチン・浴室・洗面所」一式を、「水回り」と表記しています。
吉方位・間取り一覧
ここまで凶相の間取りを中心に紹介してきましたが、家相には吉相・特に問題なしとされている間取りもあります。
| 方位 | 吉相の間取り |
|---|---|
| 北 | 水回り・寝室・子供部屋・書斎 |
| 東 | 玄関・水回り・階段 |
| 南東 | 玄関・水回り・窓・神棚・仏壇 |
| 南 | 玄関・窓 |
| 南西(裏鬼門) | 小窓 |
| 西 | 水回り・神棚・仏壇・階段 |
| 北西 | 玄関・寝室・神棚・仏壇 |
また、家相には「家の張りは吉・欠けは凶」という判定もありますが、判定方法が複雑なため、気になる場合には専門家へ鑑定をご依頼ください。
家相の吉凶を紹介してきました。
注文住宅・規格住宅は間取りを調整できますが、家相を意識しすぎることで、ご家族の理想の間取りを実現できないケースもあります。
家相の基礎知識を念頭に置きながら、ご家族が実現したいライフスタイルを優先して家づくりのプランを組み立ててください。
次に、ご家族の理想を実現した間取り事例を紹介するので、参考にしていただけると幸いです。
鬼門・裏鬼門は関係ないと思える間取りを実現した事例

現代の家づくりは、「宅地の狭小化」「建物の高層化」などの影響で、家相を優先できないのが一般的です。
凶相と言われる間取りに該当しても快適な住環境づくりができるため、実際の間取りで確認しましょう。
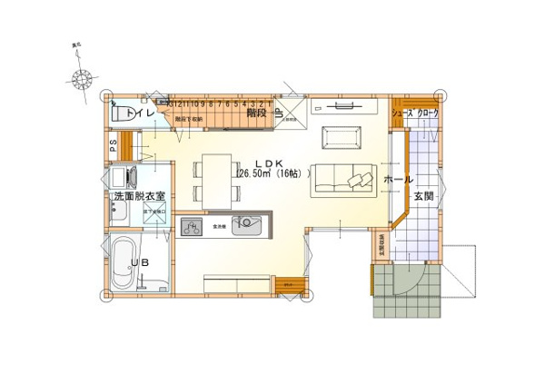
こちらの間取りは鬼門に玄関を配置していますが、玄関ポーチの大きな屋根が雨風の吹き込みを防ぎ、快適な室内環境の維持に役立ちます。
東の浴室・洗面所は吉相で、洗面所・ユーティリティ(洗濯室)・キッチンが回遊動線になっているため、リビングから水回りスペースへの移動がスムーズです。
.png)
こちらの記事で、玄関を北向きにして快適な家づくりをした事例を確認できます。
〈関連ページ〉玄関の向きが北の間取り成功例|「北向きはダメ」と言われる理由、家相の吉凶・風水対策なども簡単解説
こちらの間取りは裏鬼門にキッチンを配置していますが、住宅形状や窓の配置を工夫したことで、日射熱の影響を受けづらく室内環境を維持しやすい家となりました。


広い玄関土間・玄関収納のある間取りを、こちらの記事で確認できます。
〈関連ページ〉【玄関収納】新築で失敗しないためのポイント|玄関の間取りアイデアや玄関土間収納アイデアも紹介
鬼丸ハウスには、今回紹介しきれなかった実例がまだたくさんあります。ぜひごらんください。
鬼門・裏鬼門は関係ないと思える家づくりQ&A

最後に、鬼門・裏鬼門などの家相について、鬼丸ハウスがよくいただく質問・回答を紹介します。
Q.家相をまったく気にしない家づくりをして大丈夫?
A.家相は建築基準法などの法令とは無関係のため、家相をまったく気にしない家づくりをすることに問題はありません。
間取りは「自然光・自然風を活用する」という視点も含めて作成するのが一般的で、「自然と吉相に該当する間取りが完成した」というケースもあります。
Q.土地選びは家相に影響する?
A.土地の状況に応じて間取りを作成するため、土地選びが家相に影響することはあります。
ただし家相を気にして土地を選定することは難しいため、「土地購入の条件(予算・面積・地域など)」「ライフスタイルに適応する間取り」をバランスよく叶えられる土地を選びましょう。
家づくりを依頼するハウスメーカーを早い段階で決めて、土地探しについてもアドバイスを受けることをおすすめします。
福岡都市圏及び北九州・山口下関エリアでマイホームを検討中の方は、鬼丸ハウスへお問い合わせください。
鬼丸ハウスは土地販売も手掛けているため、土地探しの段階からご家族をサポートいたします。
こちらの記事で、北九州市の土地情報を確認できます。
〈関連ページ〉北九州市の土地探し|分譲地で建築条件なしなど新着情報、住みやすい人気エリアも紹介
Q.ビルトインガレージのある家は凶相?
A.ビルトインガレージは、「ビルトインガレージ内の寒さ」「排気ガス(不浄の物質)が充満する」といった理由から、凶相と言われています。
確かにビルトインガレージにはデメリットがありますが、土地の状況やライフスタイルによっては利便性の高いスペースです。
「ビルトインガレージの冷えが室内に侵入しづらい」「十分な換気が可能」などビルトインガレージのデメリットを解消する設計が可能ですので、施工業者に相談しながら設計プランを組み立ててください。
まとめ
マイホームの間取りを作成中の方へ、「鬼門(表鬼門)・裏鬼門などの家相は暮らしに関係ない」と思える家づくりの方法を紹介してきました。
家相には、「自然の中で人が心身ともに健康に暮らすための知恵」という側面があります。
方位ごとの特徴を考慮しながら家づくりをしていくと自然と吉相に該当する部位が多い間取りになりますし、凶相は建築技術などで不安を解消可能です。
今回紹介した情報を参考に、ご家族が心地よく暮らせる理想のマイホームを実現していただけると幸いです。
お問い合わせ Contact
-
鬼丸ハウス本社
〒800-0213
福岡県北九州市小倉南区中曽根東2-13-16093-383-9382(9:00〜18:00)
[営業]9:00~18:00
[定休]なし/GW、お盆、年末年始除く