住まいのコラム Column
定年退職やお子さまの独立をきっかけに、60代で新たな住まいを考える方が増えています。
60代で建てる家は、老後の暮らしを見据えた間取り設計が重要です。
今回は、福岡都市圏及び北九州・山口下関エリアのハウスメーカー『鬼丸ハウス』が、60代で建てる家の間取り実例や老後の間取りで理想的な条件、老後を見据えた二階建ての間取りづくりのコツついて解説します。
これからの人生を安心して快適に過ごすためのポイントを紹介しているので、老後の住まいを検討中の方は、ぜひ最後までごらんください。
福岡都市圏及び北九州・山口下関エリアでマイホームをご検討中の方は、『鬼丸ハウス』へお問い合わせください。
ご家族の快適な暮らしを実現する間取りプランをご提案します。
Contents
60代で建てる家は老後を見据えた間取りが重要

60代で建てる家は、老後の暮らしを見据えた間取り設計が欠かせません。
老後は、体力や生活スタイルが変化し、住まいに求める条件がこれまでと大きく変わります。
ワンフロアで生活が完結するよう設計することや家事動線を意識することで、老後も安心して快適に暮らせます。
間取り実例や老後の理想的な間取りの条件を参考に、ご自身の暮らしに合う形を取り入れましょう。
60代で建てる家の間取り実例

はじめに、60代で建てる家の参考になる間取り実例を紹介します。
実際の間取り図で、居室や水回りの配置、家事動線などを確認しましょう。
家事動線を意識し水回りを集約した平屋の間取り実例
こちらは、家事動線にこだわり、水回りを集約した平屋の間取り実例です。
キッチン・洗面脱衣所・浴室の動線を短く設計することで、家事負担を減らすことができます。
トイレと洗面脱衣所の扉を引き戸にしているため、老後、介助が必要になった際も安心です。

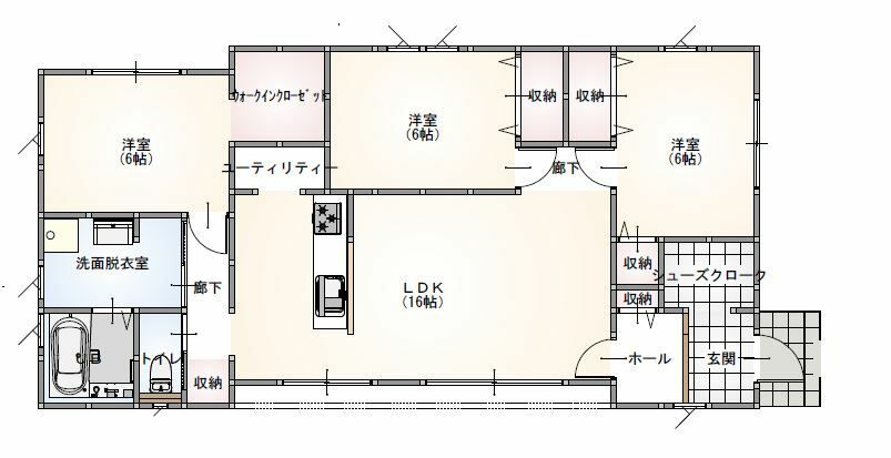
買い物後の動線と収納スペースにこだわった平屋の間取り実例
こちらは、勝手口からキッチンとパントリーに直接アクセスできる間取り実例です。
重い荷物を持ったまま家の奥まで運ぶ必要がなく、体への負担も軽減できます。
老後のライフスタイルの変化に合わせ、洋室を可変性のある間取りにしている点もポイントです。

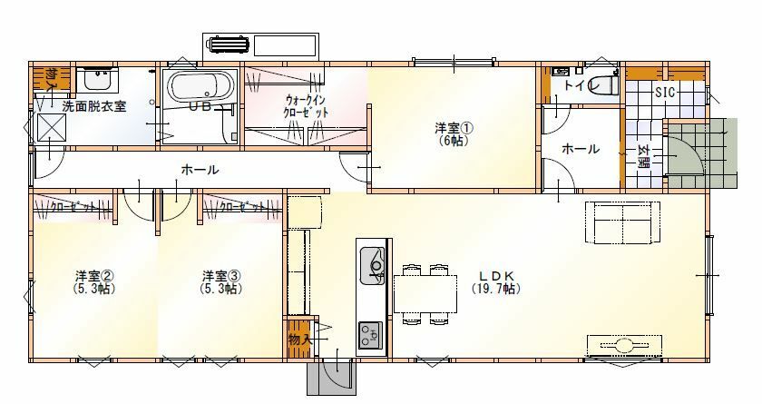
洗面脱衣所・ランドリースペース・テラスを一直線に配置した平屋の間取り実例
こちらは、洗濯から乾燥までスムーズに行うことができる間取り実例です。
洗濯は、老後、負担を感じやすい家事の一つです。
室内干しできるスペースがあり、天候に左右されず効率的に洗濯ができます。

こちらの記事で、洗濯が楽になる家事動線の良い間取り実例についてを確認できます。
〈関連ページ〉家事動線の良い間取り実例|洗濯が楽になるランドリールーム・ファミリークローゼットの間取りアイデア
一階のワンフロアで生活が完結する二階建ての間取り実例
こちらは、一階で生活が完結するよう設計した二階建ての間取り実例です。
今は二階に寝室を設けていますが、将来的に一階の和室を寝室にすることができます。
二階建ての住宅でも、生活に必要な機能を一階に集約すれば、老後、階段の使用を最小限にできます。
LDKに吹き抜けを設け、開放的な空間を設計できるのは、二階建ての良い点です。

一階

二階
中庭と和室を配置し心地よく暮らせる二階建ての間取り実例
こちらは、中庭を設け、採光と通風を確保した間取り実例です。
老後は、自宅にいる時間が長くなるため、住宅の快適性は重要なポイントです。
一階の和室は、将来的に寝室としても利用できるため、老後も安心です。


鬼丸ハウスには、今回紹介しきれなかった事例がまだたくさんあります。ぜひごらんください。
老後の間取りで理想的な14つの条件

60代で家を建てる際は、老後を見据えた間取りを計画することが大切です。
老後の理想的な間取りの条件は、以下のとおりです。
- ワンフロアで生活が完結する
- 家事動線を意識する
- バリアフリー設計にする
- 廊下と出入口は広めに設計する
- トイレ・浴室は介助スペースを設ける
- 寝室とトイレは近くに配置する
- ドアは引き戸にする
- 収納やスイッチの高さを低めに設計する
- 手すりを設ける
- 断熱性・気密性を高める
- 駐車場から玄関のアプローチを平坦にする
- 防犯面に配慮する
- 防災面に配慮する
- 心地よく暮らせる工夫をする
ワンフロアで生活が完結する
老後を見据えると、生活がワンフロアで完結する間取りが理想です。
LDKや寝室、水回りを一階に集約すると、階段の上り下りによる負担を減らすことができます。
平屋は、段差がなくワンフロアで生活が完結するため、60代で建てる家として人気があります。
平屋や一階完結型の間取りは、老後の理想的な間取りです。
家事動線を意識する
日々の家事が効率よく行える間取りは、老後の暮らしにおいても重要です。
キッチン・洗面脱衣所・ランドリースペースの距離が短いと、料理や洗濯の家事負担を軽減できます。
玄関からパントリーやキッチンにアクセスできるよう設計すれば、買い物後の荷物の収納が楽にできます。
家事効率の良さは、快適な生活を支える重要な要素です。
こちらの記事で、玄関からパントリー・キッチンへアクセスできる間取り実例についてを確認できます。
〈関連ページ〉間取りを玄関からパントリー・キッチンと配置した成功例|間取り実例とメリット・デメリットも紹介
バリアフリー設計にする
段差のない床や滑りにくい床材など、バリアフリー設計を取り入れることで、安全性が高まります。
将来、介助や介護が必要になる可能性も考慮し、安心して暮らせる環境を整えておくことが重要です。
例えば、玄関の段差をなくす、廊下と部屋の間に段差を設けないなど、細かな配慮が必要です。
あらかじめバリアフリー対応の間取りにしておくことで、将来的なリフォームの負担も減らせます。
廊下と出入口は広めに設計する

老後の暮らしを見据えた家では、廊下や出入口に十分な幅を持たせることが大切です。
車いすや介助が必要になった際でも、スムーズな移動が可能になります。
一般的には、廊下幅を80cm以上、出入口は有効開口75cm以上を目安にすると、安心して利用できます。
トイレ・浴室は介助スペースを設ける
老後、介助が必要になった場合、トイレや浴室に介助スペースがあると安心です。
出入口を広く設計し、介助者が一緒に入れるスペースを確保しておきましょう。
浴室内の腰かけや、トイレの手すりも将来への備えとなります。
寝室とトイレは近くに配置する
夜間のトイレ移動をスムーズに行えるよう、寝室とトイレの距離を近づけて配置することが大切です。
移動距離が短いほど、転倒リスクを抑えられ、安心感にもつながります。
寝室の隣にトイレを設ける間取りであれば、廊下を歩く必要がなく、夜間も安心して使用できます。
照明を配置し、照明の自動点灯機能を取り入れることで、安全性がより高まります。
ドアは引き戸にする
開き戸は、開閉の動作が老後の負担になります。
引き戸であれば、少ない力で開閉でき、車いすでもスムーズに通行できます。
また、引き戸は、室内空間を有効に活用できる点も良い点です。
収納やスイッチの高さを低めに設計する

収納や照明スイッチの位置が高すぎると、無理な姿勢での作業や操作が必要になります。
老後の暮らしでは、日常の小さな動作が身体への負担になるため、細かな配慮が必要です。
スイッチは、一般的な高さよりも10~20cm程度低く設置すると安心です。
収納も、手が届きやすい位置に設置することで、快適性が向上します。
手すりを設ける
玄関・廊下・トイレ・浴室など手すりを設けると安心です。
手すりは転倒防止だけでなく、老後の自立した生活の助けになります。
新築時に手すりを設置しない場合も、壁面に下地を入れておけば、老後、手すりを設置することができます。
手すりの高さや形状にも配慮し、使いやすい設計にすることが大切です。
断熱性・気密性を高める
老後は、室温の変化が体への負担となるため、住まいの断熱性と気密性は重要です。
外気の影響を受けにくくすることで、室内の温度差が少なくなり、快適な住環境が整います。
また、高断熱・高気密の住宅は冷暖房効率が良く、光熱費の抑制にもつながります。
住まいの性能を高めることで、安心感と経済性の両立が可能となり、将来にわたって暮らしやすい住宅となります。
駐車場から玄関のアプローチを平坦にする

駐車場から玄関までをできるだけフラットに設計することが重要です。
玄関ポーチに広めのスロープを設けると、車いすでもスムーズに出入りできます。
フラットな設計は転倒防止にもつながります。
防犯面に配慮する
安心して暮らせる住まいにするためには、防犯対策も重要です。
玄関にはダブルロックを設置し、モニター付きインターホンで来客を確認できるようにしましょう。
窓にはシャッターや防犯ガラスを採用すると安心です。
防災面に配慮する
災害時にも安心して過ごせる住宅にするためには、防災への備えも欠かせません。
耐震性の高い構造、備蓄スペースの確保など、住宅性能と機能の両面から備えることが望まれます。
避難しやすい間取りや複数の出入口を設けておくと、非常時にも落ち着いて対応できます。
心地よく暮らせる工夫をする
長く住み続ける住まいには、機能性だけでなく心地よさも求められます。
自然光を取り入れる窓の配置、風通しの良い間取りなど、五感で快適さを感じられる工夫が必要です。
中庭やウッドデッキといった半屋外空間を取り入れると、開放感を感じることができます。
これからの人生を快適に過ごすために、居住空間を整えましょう。
福岡都市圏及び北九州・山口下関エリアでマイホームを検討中の方は、鬼丸ハウスへお問い合わせください。
ご家族のご希望を丁寧に伺ったうえで、柔軟にプランを提案いたします。
老後は平屋と二階建てのどちらが安心か

60代で家を建てる際、「平屋」か「二階建て」かの選択は、老後の快適性と安心感に大きく影響します。
それぞれに異なる特徴があるため、どちらが良いか一概には言えません。
ご自身やご家族のライフスタイル、将来の暮らし方に合わせて選ぶことが大切です。
老後における平屋と二階建てのメリット・デメリットを紹介します。
平屋のメリット・デメリット
【平屋のメリット】
- 生活動線がシンプルで移動が楽になる
- 家事動線が効率的になりやすい
- バリアフリー設計との相性が良い
- 将来的なメンテナンスがしやすい
【平屋のデメリット】
- 広い敷地が必要になる
- 防犯対策が重要になる
二階建てのメリット・デメリット
【二階建てのメリット】
- 限られた敷地でも居住面積を確保できる
- プライベート空間と生活空間を分けやすい
- 吹き抜けなどの空間演出がしやすい
【二階建てのデメリット】
・将来的に階段の昇降が負担になる
・生活動線が複雑になりやすい
老後を見据えた二階建ての間取りづくりのコツ

60代で家を建てる際、敷地条件や部屋数の希望から二階建てを選択される方も多くいらっしゃいます。
老後を見据えた暮らしでは、段差の少ない平屋に注目が集まる一方で、二階建てでも設計次第で快適な住まいを実現できます。
老後を見据えた二階建ての間取りづくりのコツは、以下のとおりです。
- 一階だけで生活できる間取りにする
- 二階の部屋は可変性のある間取りにする
- 階段の形状は安全性を最優先にする
一階だけで生活できる間取りにする
二階建てにする際も、一階だけで生活できるよう配慮して間取りづくりをすることが重要です。
老後、階段の上り下りが負担となり、二階をほとんど使わなくなってしまうケースは少なくありません。
LDKや寝室、水回りなどを二階に配置してしまうと、老後の生活に支障が出ます。
一階だけで生活できる間取りづくりは、二階建てを選択される方にとっても重要な視点です。
二階の部屋は可変性のある間取りにする
二階に配置する部屋は、将来的に使い方が変わることを想定して設計しておくことが大切です。
趣味室や来客用だけでなく、お子さま世帯の一時滞在にも使えるよう、汎用性のある設計が求められます。
例えば、間仕切りの少ない大空間にしておき、必要に応じてパーテーションなどで仕切れるようにすると、ライフステージの変化にも柔軟に対応できます。
使わなくなった場合も、納戸や書斎として活用できるため、無駄になりません。
階段の形状は安全性を最優先にする
老後の生活を見据えた間取りでは、安全性を最優先に考慮した階段設計が求められます。
勾配が緩やかで踏み面が広い階段が安心です。
手すりを両側に設置する、足元を照らす照明を取り入れるなど、細かな工夫も安全性向上につながります。
こちらの記事で、老後を考えた二階建ての間取り実例についてを確認できます。
〈関連ページ〉【30坪台・2階建て】老後を考えた間取り実例|「年を取ったら」の不安を解消
60代で建てる家で注意したい資金計画

60代で家を建てる際は、間取りや構造だけでなく、資金計画にも十分な検討が必要です。
老後の暮らしを安心して続けるためには、建築費用に偏ることなく、将来の生活資金とのバランスを取ることが重要です。
住宅ローンの利用は慎重に
60代で住宅ローンを組む場合は、返済期間や返済額に無理がないかを慎重に見極める必要があります。
多くの金融機関では完済年齢の上限が設定されています。
定年後は年金収入が中心になるため、ローンの返済が家計の負担とならないよう、月々の支出を見越して借入額を設定することが重要です。
状況によっては、住宅ローンが利用できない場合もあるため、不安な方は、ハウスメーカーの担当者に相談しましょう。
建築費用と老後資金のバランスを考える
建築費用に多くの自己資金を充てると、老後の生活費や医療・介護などの備えが手薄になる場合があります。
60代で建てる家では、建築費用と老後資金のバランスをとることが重要です。
住まいの設備や間取りにこだわりたい気持ちがあっても、予算の上限を明確に定め、老後の暮らしに影響を及ぼさない資金配分を行う必要があります。
鬼丸ハウスは、ご予算に応じた柔軟なプラン提案が得意なハウスメーカーです。
福岡都市圏及び北九州・山口下関エリアでマイホームを検討中の方は、お気軽にお問い合わせください。
まとめ
60代で建てる家の間取り実例や老後の間取りで理想的な条件、老後を見据えた二階建ての間取りづくりなどを紹介してきました。
老後の暮らしを見据えた間取りにすることで、これからの人生を豊かに過ごすための住環境を整えることができます。
今回の記事で紹介した情報が、ご自身とご家族にとって最適な住まいの形を見つけるヒントになれば幸いです。
お問い合わせ Contact
-
鬼丸ハウス本社
〒800-0213
福岡県北九州市小倉南区中曽根東2-13-16093-383-9382(9:00〜18:00)
[営業]9:00~18:00
[定休]なし/GW、お盆、年末年始除く