住まいのコラム Column
2階建てのマイホームを検討する際に、「年を取ったら、階段の上り下りなどが大変そう」と将来の暮らしに不安を感じる方は少なくありません。
しかし、将来を見据えた「間取りの工夫」を取り入れることで、老後もずっと快適に暮らせる2階建ては実現できます。
本記事では、福岡都市圏及び北九州・山口下関エリアのハウスメーカー『鬼丸ハウス』が、老後も快適な2階建ての間取り実例(30坪台)と、後悔しないためのポイントをご紹介します。
現在も将来も快適な家づくりを実現するために、ぜひ最後までご覧ください。
鬼丸ハウスでは、ご家族のライフプランやご要望を丁寧にヒアリングし、老後も安心して暮らせる間取りプランをご提案します。
ぜひお気軽にお問い合わせください。
Contents
【30坪台・2階建て】老後を考えた間取り実例集

はじめに、鬼丸ハウスが手がけた「老後も快適な2階建て」の具体的な間取り実例をご紹介します。
ご自身の暮らしを想像しながら、家づくりのヒントを見つけてみてください。
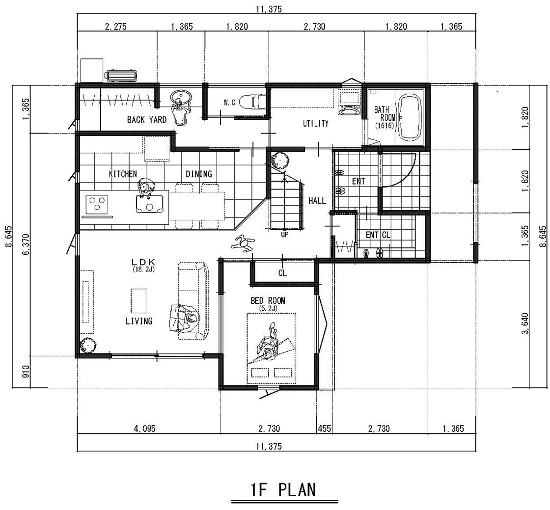
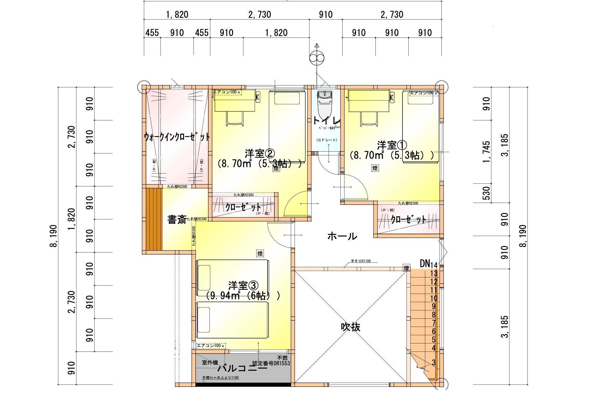
【35.06坪】1階で生活が完結する間取り
最初にご紹介するのは、1階にLDK、水回り、寝室を配置し、将来的に1階だけで生活が完結する間取りです。
また、2階には将来二つに分割できる広々とした洋室を設け、ご家族の成長やライフスタイルの変化に柔軟に対応できる設計としました。


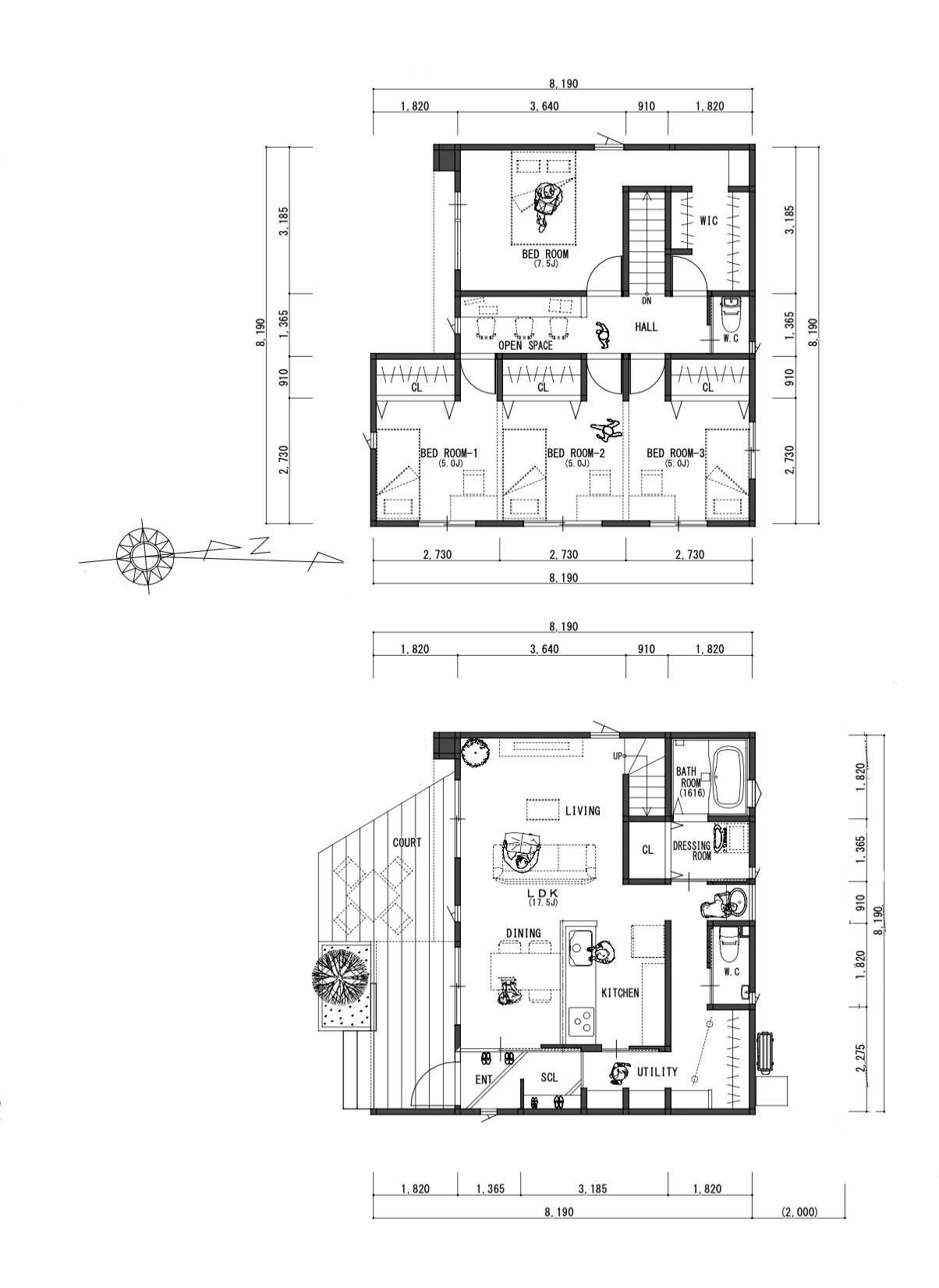
【33.56坪】キッチン中心の回遊動線で家事を効率化する間取り
こちらは、「日々の家事をいかに楽にするか」をテーマに、キッチンを中心とした回遊動線を採用した間取りです。
玄関とキッチンの両方から直接出入りできるユーティリティは、洗濯物干し場や日用品の収納など、多目的に活用できます。

家事動線が良い間取りの実例は、こちらの記事でもご紹介しています。
〈関連ページ〉家事動線を重視するパパとママが暮らしやすい人気間取り5選|子育て・共働き世帯の家事を楽にする設計とは
【33.31坪】買い物後の動線を短くする間取り
こちらは、玄関とキッチンを直線でつなぎ、買い物後の動線をスムーズにした間取りです。
キッチンからランドリールーム・洗面室へも直接アクセスできる点も、家事効率を高めるポイントです。
.png)
玄関からキッチンへのアクセスにこだわった間取りは、以下の記事でもご紹介しています。
〈関連ページ〉間取りを玄関からパントリー・キッチンと配置した成功例|間取り実例とメリット・デメリットも紹介
【35.29坪】ご家族の気配を感じつつ、プライバシーも保てる間取り
こちらは、1階に独立した和室を設けた間取りです。
リビングに隣接させつつ扉で仕切れる多目的な和室は、客間はもちろん、お子さまの遊び場や家事スペース、将来的にはご夫婦の寝室としても利用できます。


和室を採用した間取りづくりについては、こちらの記事で詳しく解説しています。
〈関連ページ〉客間に最適な和室づくり|間取り・インテリア・広さの目安をまとめて解説
鬼丸ハウスには、今回紹介しきれなかった実例が多数ございますので、ぜひご覧ください。
「年を取ったらどうなる」老後も快適な間取りのポイント

ここからは、実例でご紹介した内容をさらに深掘りし、「年を取ったら」の不安を解消する間取りづくりのポイントを5つ解説します。
①生活動線|毎日の移動を楽にする

家の中の移動経路(動線)を短くシンプルにすることが、将来の暮らしやすさに直結します。
特に重要なのが、以下の2つの動線です。
家事動線(キッチン、ランドリーなど)
毎日の家事負担を軽減するためには、キッチンを中心とした動線の工夫がポイントとなります。
具体的には、以下の3つのシーンを想定して、それぞれの動線を短くシンプルにまとめることが家事の時短と効率化につながります。
- 買い物から帰ってきたとき:玄関からパントリーやキッチンへ直行できる
- 料理や食事のとき:キッチンとダイニングを隣接させ、移動を最小限にする
- 洗濯をするとき:「洗う、干す、しまう」の場所を近づけて一連の作業を効率化
衛生動線(トイレ、浴室など)
年齢を重ねると、トイレや入浴といった毎日の行為にも、安全性やプライバシーへの配慮がより重要になります。
具体的には、以下のような工夫でより安心して暮らすことができます。
- 寝室とトイレ・脱衣所を同フロアの近くに配置する
- 入口に、車椅子でも出入りしやすい引き戸を検討する
- 脱衣所や浴室に暖房機能を設け、ヒートショックを予防する
②バリアフリー設計|将来の安心を現在の家づくりから

今は気にならないわずかな段差も、将来的には大きな負担になる可能性があります。
つまずきや転倒のリスクを減らすため、計画段階から以下のようなバリアフリー設計も検討しましょう。
- 室内の床は極力フラットにする
- 車椅子を想定した広い廊下・ドア幅の確保
- 玄関の段差緩和
- 将来手すりを設置できるよう、壁の内部に下地を入れておく
〈参考〉国土交通省|高齢者、障害者等の円滑な移動等に配慮した建築設計標準
③居室|リビング横の多目的スペース

実例でもご紹介したように、リビング横に3~4.5畳ほどの畳コーナーや洋室があると便利です。
扉で仕切れるように設計すれば、お子さまの遊び場、客間、書斎、将来の寝室など、ライフステージの変化に合わせて柔軟に役割を変えられます。
④将来の可変性|ライフスタイルの変化を楽しむ工夫

お子さまが独立した後の子ども部屋の活用方法は、多くの方が悩むポイントです。
あらかじめ間仕切り壁を動かせるように設計しておけば、二つの部屋をつなげて広い趣味の部屋へリフォームすることも容易になります。
お子さまが独立した後の2階の活用アイデアには、以下のようなものがあります。
- ご夫婦それぞれの書斎やアトリエ
- 大画面で映画を楽しむシアタールーム
- お孫さんがいつでも泊まれるプレイルーム兼ゲストルーム
- フィットネスやヨガのスペース
⑤設備計画|日々の快適性をさらに高める

間取りが決まったら、暮らしの質を左右する細部の設備にも目を向けてみましょう。
老後を見据えた「収納計画」
年齢と共に物の出し入れは負担になるため、収納は「量」だけでなく「位置」が重要です。
- 日常使いの収納を1階に集約する
- 出し入れしやすい高さの収納を確保する
安全と健康を支える「照明・コンセント計画」
より安心に暮らすために、以下のような照明・コンセントの工夫も有効です。
- 廊下や階段にフットライトを設置
- 寝室のスイッチは、入り口とベッドサイドの両方にあると便利
- 掃除ロボットや電動ベッドを使うことも想定したコンセント計画
2階建てと平屋ではどちらが良いか|メリット・デメリットを比較

老後の暮らしを考えると「平屋の方が良いのではないか」と迷われる方へ向けて、2階建てと平屋のメリット・デメリットを一覧表でご紹介します。
| 2階建て | 平屋 | |
| メリット | ・狭い土地でも床面積を確保しやすい ・プライベートな空間を分けやすい ・建築費の坪単価を抑えやすい傾向 | ・階段がなく生活が楽 ・ご家族とのコミュニケーションが取りやすい ・構造が安定しやすい |
| デメリット | ・階段の上り下りが発生する ・老後に使わない部屋が生まれる可能性 | ・広い土地が必要になる傾向 ・建築費の坪単価が割高になる傾向 ・部屋数が増えると中心部の採光が課題に |
今回ご紹介したように、間取りを工夫すれば、2階建ての利便性と老後の暮らしやすさは十分に両立できます。
老後を考えた間取りQ&A

最後に、老後を考えた間取りづくりでよくいただくご質問にお答えします。
トイレは1階と2階、両方必要?
A. ご家族構成や2階の使い方によりますが、設置しておくことをおすすめします。
特に2階に寝室がある場合、夜中に階段を下りずに済むメリットは非常に大きいです。
朝のトイレが混雑する時間帯のストレスも緩和されます。
2階建てと平屋で固定資産税は変わる?
A. 単純に「2階建てだから高い」「平屋だから安い」ということはありません。
固定資産税は、建物の構造や設備、総床面積などから算出される評価額によって決まります。
同じ延床面積であれば評価額に大きな差は出にくいですが、ホームエレベーターなどの設備を追加すると、その分評価額は上がります。
階段の安全性を高める工夫はありますか?
A. はい、設計時の工夫としては、以下のようなものがあります。
- 勾配を緩やかにする
- 足を乗せる「踏面(ふみづら)」を広くする
- 回り階段よりも直線階段やU字階段にする
また、手すりの設置はもちろん、足元を照らすフットライトの採用もおすすめです。
まとめ
2階建ての家も、将来を見据えて動線や可変性を計画することで、年齢を重ねてもずっと安心して快適に暮らせる住まいになります。
現在の暮らしだけでなく、10年後、20年後のご自身のライフスタイルを想像しながら、家づくりを進めることが重要です。
鬼丸ハウスは、ご家族一人ひとりのライフサイクルやご要望を丁寧にヒアリングし、未来まで見据えた間取りプランをご提案します。
「私たちの場合はどうだろうか」と少しでも気になりましたら、ぜひお気軽にご相談ください。
お問い合わせ Contact
-
鬼丸ハウス本社
〒800-0213
福岡県北九州市小倉南区中曽根東2-13-16093-383-9382(9:00〜18:00)
[営業]9:00~18:00
[定休]なし/GW、お盆、年末年始除く