住まいのコラム Column
「掃除しやすい家」にすると家事の負担が減り、ご家族でゆったりと過ごす時間や趣味を満喫する時間を増やせます。
そんな「掃除しやすい家」を実現するには、ポイントを押さえて新築時に間取り・設備・内装を考えることが大切です。
そこで今回は、福岡都市圏及び北九州・山口下関エリアで多くのご家族のマイホーム購入をサポートしてきたハウスメーカー『鬼丸ハウス』が掃除しやすい家にする工夫のポイントを解説します。
掃除しやすい家の間取り事例もご紹介するので、ぜひ参考にしてください。
福岡都市圏及び北九州・山口下関エリアで掃除しやすい家をつくりたい方は、『鬼丸ハウス』に気軽にお問い合わせください。
ご家族のライフスタイルや希望を踏まえて、手入れが楽な家を提案いたします。
Contents
掃除しやすい家にする工夫のポイント【間取り】

まず、掃除しやすい家にする間取りのポイントを解説します。
間取りは建築後に変更するのが難しいため、新築時にそれぞれの工夫を取り入れましょう。
回遊できる間取りにする
回遊できる間取りにすると行き止まりがなくなり、家を掃除する際に一旦引き返す手間を省けます。
行き止まりのない回遊動線は移動ルートが増えるので、短い動線で移動できるのもメリットです。
これによって掃除機を持って移動する際にも、ストレスなく目的の部屋にアクセスできます。
水回りをまとめて配置する
水回りをまとめて配置することで移動距離が短くなり、効率よく掃除を進められます。
また、キッチンとランドリールームなどの水回りを集約した間取りにすると、キッチンで作業しながらほかの水回りの掃除をしやすく、家事効率がアップするのも嬉しいポイントです。
掃除だけではなく、「家事全体をスムーズにこなせる間取りにしたい」とお考えの場合には、水回りをまとめて配置しましょう。
家事動線の良い間取り実例を、こちらの記事でご紹介しています。
〈関連ページ〉家事動線の良い間取り実例|洗濯が楽になるランドリールーム・ファミリークローゼットの間取りアイデア
部屋の形状はシンプルにする
部屋を四角など凹凸の少ない形状にすると、隅々まで掃除機やフロアシートをかけやすくなります。
一方で、複雑な形状の部屋は隅を掃除するのに手間がかかり、拭き残しによって汚い印象になるケースもあります。
また、部屋全体を掃除しやすくしたい場合には、壁・床・天井の凹凸も減らして隅に埃が溜まりにくい空間にするのがおすすめです。
バリアフリーにして段差をなくす
バリアフリーにして段差をなくした間取りでは、段差部分のコーナーに溜まった埃を掃除する手間を省けます。
また、掃除ロボットを利用する際にも、バリアフリーであれば掃除ロボットが乗り越えられない段差がなくなるため、広い範囲を掃除することが可能です。
本格的にバリアフリーを検討する場合は、1階にすべての部屋を集約する「平屋」を検討しましょう。
福岡都市圏及び北九州・山口下関エリアで掃除しやすい家をつくりたい方は、『鬼丸ハウス』に気軽にお問い合わせください。
掃除はもちろん、家事全体が楽にできる間取りプランを提案いたします。
掃除しやすい家にする工夫のポイント【設備】

次に、掃除しやすい家にする設備のポイントをご紹介します。
それぞれのポイントを押さえて、住宅設備を選びましょう。
手入れしやすい水回り設備を採用する
毎日使用する水回り設備は水垢やカビなどの汚れが発生するので、手入れしやすい水回り設備を採用しましょう。
キッチン・浴室・洗面室・トイレの設備は、以下のようなタイプを選ぶと掃除効率のアップにつながります。
- 継ぎ目や細かなパーツが少ない
- 汚れが付着しにくい素材を使用している
- 防カビ・撥水などの加工がされている
- タッチレスで水栓を操作できる
- 自動洗浄機能が搭載されている
手入れのしやすさはもちろん、デザイン性・機能性を踏まえて、総合的に水回り設備を判断しましょう。
ランドリールーム兼ファミリークローゼットの湿気による後悔や対策を、こちらの記事で解説しています。
〈関連ページ〉ランドリールーム兼ファミリークローゼットの湿気による後悔や原因は?対策や間取りアイデアも解説
間接照明の設置場所や数をよく検討する
間接照明は空間をおしゃれに演出できますが、凹凸部分に埃が溜まりやすいため、設置場所や数を事前に検討することが大切です。
とくに天井付近の間接照明は埃が溜まっているか判断しにくいうえに、掃除する際に脚立が必要になるなど手間がかかります。
間接照明を取り入れる際は、埃が溜まらないように器具を下向きに設置したり、凹凸が少ない製品を採用したりしましょう。
掃除機の利用を想定してコンセントの位置を決める
適当にコンセントの位置を決めると、掃除機をかけるときに「何度もコンセントを差し替える必要がある」「延長コードがないと掃除機が届かない」などのストレスを感じる場合があります。
コード式の掃除機を利用する予定があれば、掃除機の利用を想定してコンセントの位置を決めましょう。
また、コンセントはインテリアなどで隠れてしまうケースもあるため、部屋全体のレイアウトを考慮しながらコンセントの位置・高さを決めることをおすすめします。
断熱性能に優れた窓・ドアを取り入れる
断熱性能に優れた窓・ドアを取り入れれば、結露を予防できるので、水滴やカビの掃除の手間を省けるのがメリットです。
結露は、外気の影響を受けて室内側の表面温度が変化した窓・ドアに、室内の空気が触れて空気の温度が低下することで発生します。
断熱性能に優れた窓・ドアは熱が出入りする量が少なく外気の影響を受けにくくなるため、結露を防げます。
また、断熱性能に優れた窓・ドアは冷暖房効率が上がり、光熱費削減につながるのも魅力です。
掃除しやすい家にする工夫のポイント【内装】

ここでは、掃除しやすい家にする内装のポイントを解説します。
それぞれのポイントを取り入れて、掃除が楽な内装を目指しましょう。
汚れに強い内装材を使う
天井・壁・床に使用する内装材を汚れに強いタイプにすると、汚れが付着するのを防いだり、簡単に汚れを掃除したりできるのがメリットです。
キッチンであれば油や水に強いタイプを使用するなど、スペースで発生する汚れの特性に合わせて、内装材を検討しましょう。
また、「カビの発生を抑制したい」とお考えの場合には、湿気が多いときに水分を吸収する「調湿効果」のある内装材がおすすめです。
造作家具やフロートタイプのインテリアを検討する
掃除しやすい家にするには、造作家具やフロートタイプのインテリアを選ぶのも方法の1つです。
オーダーメイドの「造作家具」はスペースにぴったり合わせてつくれるため、埃が溜まる隙間や凹凸を減らせます。
また、棚やテレビボードなどを脚のないフロートタイプにすると、スムーズに床の掃除ができます。
ライフスタイルや家族構成に合った収納量を確保する
物が増えると掃除がしづらくなるので、ライフスタイルや家族構成に合った収納量を確保して生活スペースを整理することも重要です。
たとえば、以下のような収納を設けると生活スペースをすっきりキープしやすくなります。
- 土間収納
- パントリー
- ウォークインクローゼット
- 階段下収納
- 小屋裏収納
また、ストレスなく収納を利用するためにも、収納の配置場所にもこだわりましょう。
間取りを玄関からパントリー・キッチンと配置した成功例を、こちらの記事でご紹介しています。
〈関連ページ〉間取りを玄関からパントリー・キッチンと配置した成功例|間取り実例とメリット・デメリットも紹介
掃除しやすい家の間取り事例
続いて、『鬼丸ハウス』が手がけた掃除しやすい家の間取り事例をご紹介します。
「掃除しやすい家の間取りのイメージが浮かばない」とお悩みの方は、ぜひ参考にしてください。
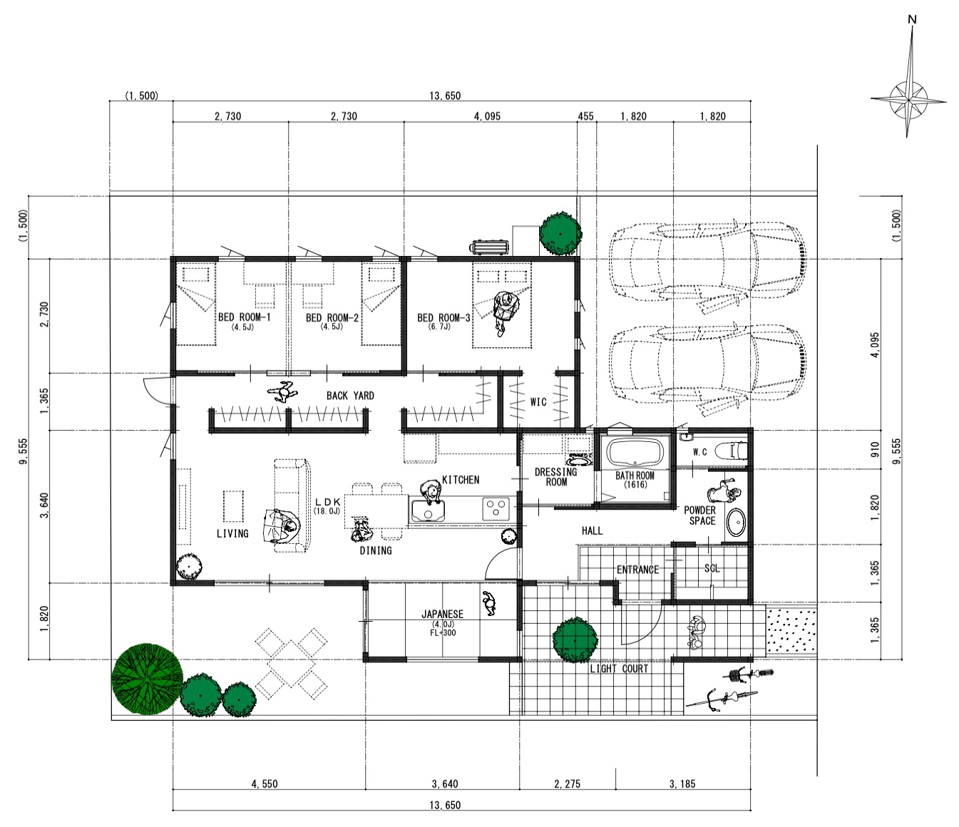
回遊動線を取り入れたスムーズに掃除ができる家の事例
こちらは、LDK・洗面室・玄関ホールに回遊動線を取り入れたスムーズに掃除ができる家の事例で、行き止まりによって一旦戻る手間がかかりません。
加えて、バックヤードとLDKの間に扉がないため、LDKの掃除の際にそのままバックヤードも掃除できます。

水回りを集約して効率よく掃除ができる家の事例
こちらは、トイレ・洗面室・脱衣室・浴室を集約した間取りで効率よく掃除ができる家の事例です。
キッチンもほかの水回りに近い場所にレイアウトしているので、料理・洗濯・掃除の家事を同時進行しやすくなります。

『鬼丸ハウス』の建築事例を、こちらよりご覧いただけます。
掃除しやすい家に関するQ&A

最後に、掃除しやすい家に関してよくいただく質問を、福岡都市圏及び北九州・山口下関エリアで多くのご家族のマイホーム購入をサポートしてきたハウスメーカー『鬼丸ハウス』が解説します。
埃が溜まりやすい場所はどこ?
埃が溜まりやすい場所は、以下のとおりです。
- 部屋の隅
- 家電の裏
- 棚の上
- 家具の溝 など
上記の場所を意識的に掃除して、きれいな空間をキープしましょう。
掃除しやすいリビングにするにはどうすればいい?
掃除しやすいリビングにするには、設置する家具を最小限にして空間の凹凸を減らしたり、雑然とした印象になりやすい配線を整理したりすることが大切です。
また、これから住宅を新築する場合には「掃除しやすい家にする工夫のポイント【間取り】」など、今回ご紹介したポイントを取り入れましょう。
福岡都市圏及び北九州・山口下関エリアで掃除しやすい家をつくりたい方は、『鬼丸ハウス』に気軽にお問い合わせください。
ご家族のライフスタイルや目的に合う「掃除しやすい家」のプランを提案いたします。
まとめ
掃除しやすい家にする工夫のポイントを、間取り・設備・内装のケース別にご紹介しました。
「どのような間取りにしたらいいかわからない」とお悩みの場合は、掃除しやすい家の間取り事例をチェックしながらイメージを膨らませましょう。
今回ご紹介した内容を、掃除しやすい家を検討する際の参考にしていただけると幸いです。
お問い合わせ Contact
-
鬼丸ハウス本社
〒800-0213
福岡県北九州市小倉南区中曽根東2-13-16093-383-9382(9:00〜18:00)
[営業]9:00~18:00
[定休]なし/GW、お盆、年末年始除く