住まいのコラム Column
ファミリークローゼットの広さの目安は、ご家族1人につき1畳ほどです。
ただし実際には、ファミリークローゼットの用途・物の量などに応じて、全体の広さはもちろん、収納棚の幅・奥行きなども検討する必要があります。
今回は、多くのご家族に大容量の収納スペースがある間取りプランを提案してきた福岡都市圏及び北九州・山口下関エリアのハウスメーカー『鬼丸ハウス』が、後悔しないファミリークローゼットのつくり方を解説します。
収納に困らない&家事が楽になる、使い勝手の良いマイホームを完成させるために、ぜひ最後までごらんください。
福岡都市圏及び北九州・山口下関エリアでマイホームを検討中の方は、鬼丸ハウスへお問い合わせください。
ご家族の快適な暮らしを実現する間取りプランを提案いたします。
Contents
ファミリークローゼットの広さは何畳必要か

冒頭でお伝えしたとおり、ファミリークローゼットの広さは、ご家族1人につき1畳(幅約90cm×高さ180cm)ほどが目安です。
ただしファミリークローゼットには主に以下3つのタイプがあり、空間の使い方に応じて確保すべき広さが変わります。
- 収納棚のみのファミリークローゼット
- ウォークインできるファミリークローゼット
- ウォークスルーできるファミリークローゼット
各タイプの広さの目安はもちろん、それぞれの特徴なども確認しましょう。
収納棚のみのファミリークローゼットに必要な広さの目安
収納棚のみのファミリークローゼットとは、例えば「廊下の壁一面に収納棚を設置する」といったタイプのファミリークローゼットです。
収納したい物に応じて、収納棚の奥行き・高さを調整しましょう。
- 衣服を収納する場合:「奥行き約60〜70cm×高さ約200cm」が必要
- 布団を収納する場合:「奥行き約80〜90cm」が必要 など
収納棚のみのファミリークローゼットは、3タイプの中で最も省スペースです。
そのため、延床面積を広げずに収納容量を増やしたい場合におすすめです。
ウォークインのファミリークローゼットに必要な広さの目安

ウォークインのファミリークローゼットとは、通路を設けて、立ち入りできるタイプのファミリークローゼットです。
収納棚+通路のスペースが必要なので、広さの目安は以下のとおりとなります。
- 収納棚を1列にして、並列に通路を設ける場合:最低1.5〜2畳が目安
- 収納棚を2列にして、中央に通路を設ける場合:最低2.5〜3畳が目安
- 収納棚をコの字型にして、中央に通路を設ける場合:最低3.5〜4畳が目安
ちなみに、通路に必要なスペースの目安は、以下のとおりです。
- 1人が最低限通れる通路幅:60cm
- 1人が荷物を持って通れる通路幅:75cm
- 2人がすれ違える通路幅:150cm
こちらの記事で、ウォークインクローゼットの詳しい寸法を確認できます。
〈関連ページ〉ウォークインクローゼットの寸法別事例|2帖から3帖の広さから、コの字など人気の間取りレイアウトを解説
ウォークスルーのファミリークローゼットに必要な広さの目安
ウォークスルーのファミリークローゼットとは、出入り口を2箇所に設けて、通り抜けできるファミリークローゼットのことです。
ウォークインと同様に通路が必要で、広さの目安は以下のとおりです。
- 収納棚を1列にして、並列に通路を設ける場合:最低1.5〜2畳が目安
- 収納棚を2列にして、中央に通路を設ける場合:最低2.5〜3畳が目安
ウォークスルーのファミリークローゼットは出入り口を2箇所に設ける必要があるため、ウォークインと比較して収納容量が少なくなるケースがあることを、念頭に置いておきましょう。
「用途・物の量などに合わせる」という視点も重要
ファミリークローゼットの用途・収納したい物の量や大きさはご家庭によって違うため、「用途・物の量などに合わせてファミリークローゼットの広さを決める」という視点も忘れないようにしてください。
例えば、ファミリークローゼット内で着替えをしたい場合には、幅・奥行きともに80〜100cmのスペースが必要です。
また、収納スペースに困りがちな以下のような物の収納も想定できます。
- 季節の家電
- 掃除機
- キャンプなど趣味の道具 など
ファミリークローゼットの広さの目安を紹介してきました。
次に、実際にファミリークローゼットを間取りに取り入れた実例も確認しましょう。
福岡都市圏及び北九州・山口下関エリアで、収納が充実しているおしゃれなマイホームを検討中の方は、鬼丸ハウスへお問い合わせください。
ご家族の快適な暮らしを実現する間取りプランを提案いたします。
ファミリークローゼットの広さを画像で紹介|2畳〜の間取り実例・収納アイデア

ファミリークローゼットは、収納棚のレイアウト・出入り口の位置などによって、使い勝手や収納容量が変わります。
ファミリークローゼットがある間取り実例と収納アイデアを、あわせて紹介します。
こちらの記事で、間取りに収納スペースを配置する際のアイデアを確認できます。
〈関連ページ〉収納間取りアイデア10選|注文住宅の収納で失敗しないためのポイントとは【間取り図付きで解説】
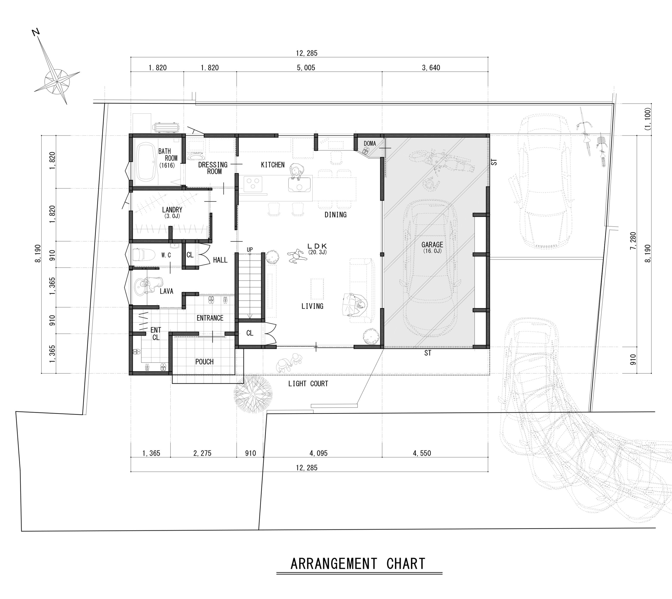
【2畳】収納棚のみのファミリークローゼット
こちらの住宅は、LDKと個室の間に、収納棚のみのファミリークローゼットを設けました。
デッドスペースが生まれないように一部をL字型にして、収納容量を最大限に確保しています。

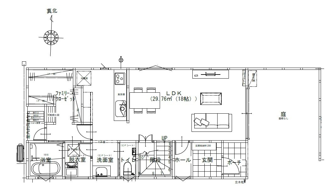
【2畳】ウォークインのファミリークローゼット
こちらの住宅は、LDKと隣接させてウォークインのファミリークローゼットを設けました。
必ずLDKを通って個室へアクセスする間取りなので、1階に外出時に必要なアウターなどを、まとめて収納できる場所があると便利です。


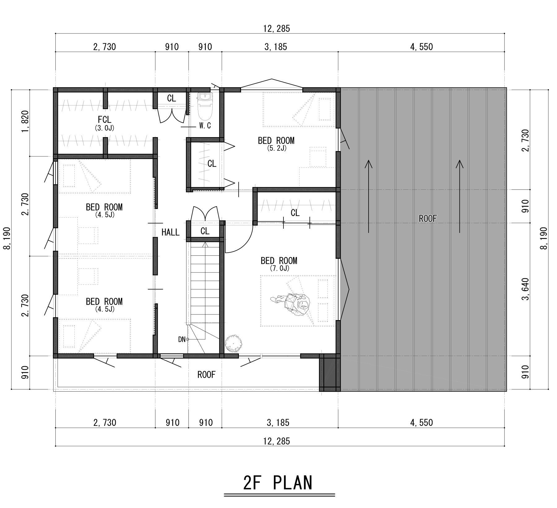
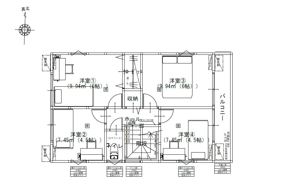
【3畳】ウォークインのファミリークローゼット
こちらの住宅は、2階の奥にウォークインのファミリークローゼットを設けました。
柱の位置を利用してクローゼットを4区画に分けた、物の仕分けをしやすいレイアウトです。


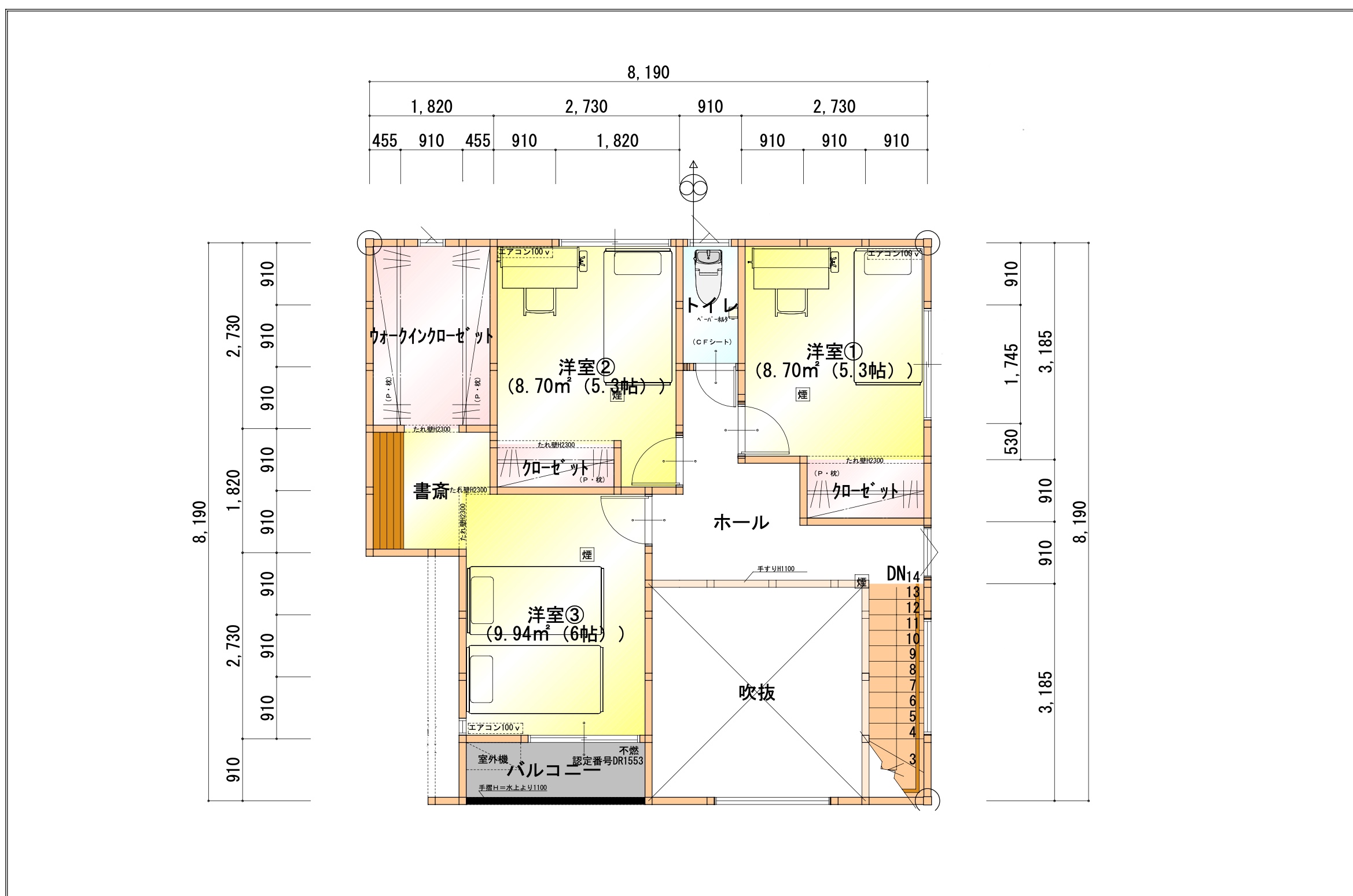
【3畳】ウォークスルーのファミリークローゼット
こちらの住宅は、2階ホールから寝室へと通り抜けが可能な、ウォークスルーのファミリークローゼットを設けました。
収納棚の位置をずらすことで、省スペースでウォークスルーの空間を実現しています。

【4畳】ウォークスルーのファミリークローゼット
こちらの住宅は、1階に大空間のファミリークローゼットを設けました。
通路を設けながら壁一面に収納棚を設置し、複数人でも使用できるレイアウトとなりました。


鬼丸ハウスには、今回紹介しきれなかった実例がまだたくさんあります。ぜひごらんください。
ファミリークローゼットのメリット・デメリット

ファミリークローゼットの広さの目安、間取り実例を確認してきましたが、ここで「ファミリークローゼットは本当に必要?」と疑問をお持ちの方も、いらっしゃるのではないでしょうか。
次に、ファミリークローゼットのメリット・デメリットを紹介するので、ファミリークローゼットの必要性を判断する参考にしていただけると幸いです。
メリット
ファミリークローゼットの主なメリットは、以下のとおりです。
- ご家族の衣服や物をまとめて収納できるので、片付けの際の移動の手間を省ける
- 家事動線・生活動線上にファミリークローゼットを配置すると、移動負担が少ない
- たくさんの物を1箇所にまとめられるので、物の管理が楽
- 小さな個室がある場合に、無理に大きな収納スペースを設ける必要がなくなるので、空間を有効活用できる
- お子さまの独立などで物が少なくなった場合、書斎・家事室などに用途を変更しやすい
- ある程度広い空間なので、造作収納棚を設ける・アクセントクロスを貼るなど、内装デザインを楽しめる
ファミリークローゼットは、「物が多い」「長期間保管したい物がたくさんある」といったご家族に向いています。
デメリット
ファミリークローゼットの主なデメリットは、以下のとおりです。
- ご家族1人につき1畳ほどのスペースを確保する必要があるため、居室・脱衣所・廊下などの面積が減る
- 家事動線・生活動線上の最適な場所を考案するのが難しく、後悔する間取りになるケースがある
- 脱衣所の近く・日当たりや風通しの悪い場所などに配置すると、湿気が滞留して空間全体がカビの生えやすい環境になる
- 用途・物の量を明確にイメージせずにつくる場合、収納容量不足になるケースがある
- 「固定棚を設置」「収納棚を設けない」という状態のファミリークローゼットは使いづらい
ファミリークローゼットのデメリットは、計画不足によって発生します。
次にファミリークローゼットの後悔しないつくり方も紹介するので、ぜひご確認ください。
ファミリークローゼットの後悔しないつくり方

ファミリークローゼットのある家に住み始めてから後悔しないために、以下のポイントを意識してファミリークローゼットをつくりましょう。
- 家事動線・生活動線上に配置する
- レイアウトを工夫して収納容量を最大化する
- 可動棚を選択する
- プライバシーの確保を意識する
- 湿気対策が必須
- 用途・収納する物を明確に決める
家事動線・生活動線上に配置する
ご家族が家事・生活をする上でよく通る場所にファミリークローゼットを配置すると、ご家族1人1人が「移動のついでに片付け」という行動をしやすくなります。
【家事・生活をする上でよく通る場所の例】
- LDKとトイレ・浴室などの水回りの間
- LDKと個室の間
- 玄関と水回りの間
- 玄関とLDKの間
- 個室とトイレの間 など
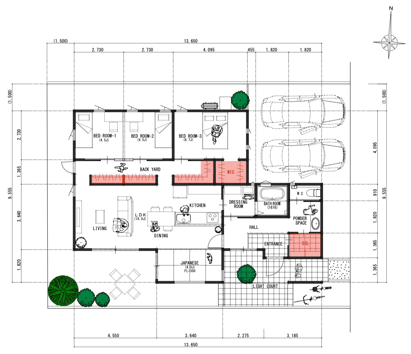
例として、こちらの住宅は、個室と水回りの間にウォークスルーのファミリークローゼットを設けています。
-1.jpg)
ご家族がLDKに集まって過ごすことの多いご家庭では、LDKを起点としてファミリークローゼットの配置を検討するのがおすすめです。
一方で、ご家族それぞれが個室で過ごすことの多いご家庭では、ファミリークローゼットよりも個室内の収納を充実させるほうが、片付けをしやすい可能性があります。
こちらの記事で、家事動線の良い間取りの実例を確認できます。
〈関連ページ〉家事動線を重視するパパとママが暮らしやすい人気間取り5選|子育て・共働き世帯の家事を楽にする設計とは
レイアウトを工夫して収納容量を最大化する
ファミリークローゼット内のレイアウトによって、収納容量が大きく変化します。
また、もっとも使用頻度の高い「手が届く位置〜膝の位置」までの棚の収納容量が最大化するようにレイアウトを検討すると、使い勝手の良いファミリークローゼットになります。
可動棚を選択する
可動棚とは、収納する物の大きさに合わせて棚板の位置を移動できる棚のことです。
棚板をはずして、大きな物を収納することも可能です。
一方で、固定棚を選択すると、棚の幅・奥行き・高さに合わせて、収納する物を選ぶ必要があります。
また、ファミリークローゼットに棚を設置しないと、収納家具を購入する必要があります。
プライバシーの確保を意識する

ファミリークローゼットは以下のような場所を避けて配置し、プライバシーを確保しましょう。
以下のような位置を避けるのが難しい場合は、扉付きのファミリークローゼットを検討することをおすすめします。
- 来客時にファミリークローゼットの中が見える位置
- 玄関ドアを開けたときに、外からファミリークローゼットの中が見える位置
また、ご家族間でプライバシーを確保したい場合には、個室の収納容量を広くする間取りが向いています。
湿気対策が必須
ファミリークローゼット内にカビが発生しないように、以下の対策を検討してください。
- ファミリークローゼット内に風が通るように、窓を設置
- 換気設備の排気口をファミリークローゼット内に設置
- 調節機能のある内装材を選択
- 浴室の近くにファミリークローゼットを配置する場合は、扉を設置
特に「浴室の近く」「北向き」のファミリークローゼットは、湿気が滞留しない工夫が必須です。
こちらの記事で、玄関が北向きの間取り実例を確認できます。
〈関連ページ〉玄関の向きが北の間取り成功例|「北向きはダメ」と言われる理由、家相の吉凶・風水対策なども簡単解説
用途・収納する物を明確に決める
現在のご自宅にある物を基準にして、ファミリークローゼットの用途・収納する物を決めてください。
また、将来確実に物が増えることを想定できる場合には、スペースを確保しておくことをおすすめします。
【例】
- 大型の家電やベビーグッズなどを収納する場合には、ウォークインorウォークスルーのファミリークローゼットが便利
- 物の量があまり増減しないご家庭では、収納棚のみのファミリークローゼットで十分の可能性がある
- 本のような、増えていくものを収納したい場合には、奥行きの狭い可動棚スペースがあると便利
- 外出時の動線を重視するなら、冬物のアウターをハンガーにかけられる奥行き・高さを確保する必要がある など
福岡都市圏及び北九州・山口下関エリアで、収納が充実したマイホームを検討中の方は、鬼丸ハウスへお問い合わせください。
ご家族の快適な暮らしを実現する間取りプランを提案いたします。
ファミリークローゼットの広さQ&A

最後に、ファミリークローゼットを検討中の方から、鬼丸ハウスがよくいただく質問・回答を紹介します。
Q.「子どもが成長・独立したら使わなくなるかも…」と不安
A.ファミリークローゼットは2畳〜のスペースを確保するのが一般的なので、お子さまが成長・独立して使わなくなった場合には、以下のように用途を変えて活用できます。
- 書斎
- 家事室
- 趣味の部屋
- 隣接する居室を広げる など
また、将来のことを優先した間取り作成によって現在の生活が不便になるケースがあるため、現在を基準にして家づくりのプランを組み立てることをおすすめします。
Q.脱衣所・洗面所を兼ねたファミリークローゼットは使いづらい?
A.脱衣所・洗面所を兼ねたファミリークローゼットは湿気を避けられないため、可能であれば空間を分けることをおすすめします。
また、室内干しをするためのランドリールームとファミリークローゼットを兼ねる場合も、湿気によって、出し入れが少ない衣服にカビが発生する可能性があります。
ランドリールーム兼ファミリークローゼットを検討中の場合は、こちらの記事で対策を確認できます。
〈関連ページ〉ランドリールーム兼ファミリークローゼットの湿気による後悔や原因は?対策や間取りアイデアも解説
Q.ファミリークローゼット・シューズインクローゼット・ランドリールームどれを優先するべき?
A.ファミリークローゼット・シューズインクローゼット・ランドリールームは、以下のようなご家族に向いています。
- ファミリークローゼット:物を出し入れするたびに、あちこちに移動が必要なことにストレスを感じているご家族
- シューズクローゼット:世帯人数が多く、1人につき複数の靴を所有しているご家族
- ランドリールーム:天候・季節・時間を気にせずに洗濯作業をしたいご家族
間取りの工夫ですべてのスペースを確保することも可能ですので、ご家族のライフスタイルをハウスメーカーに伝えて、必要なスペースを確保するアイデアを提案してもらいましょう。
まとめ
ファミリークローゼットは、「ご家族1人につき1畳ほど」の広さを確保するほか、「収納容量が最大化するレイアウト」「湿気の滞留しづらい環境づくり」なども考慮して計画する必要があります。
また、ご家族のライフスタイルにマッチするファミリークローゼットは、家事・生活をスムーズにする役割があります。
今回紹介した情報を参考に、使い勝手の良い収納スペースがあるマイホームを実現していただけると幸いです。
お問い合わせ Contact
-
鬼丸ハウス本社
〒800-0213
福岡県北九州市小倉南区中曽根東2-13-16093-383-9382(9:00〜18:00)
[営業]9:00~18:00
[定休]なし/GW、お盆、年末年始除く