住まいのコラム Column
家づくりにあたり、「毎日の家事のしやすさ」は非常に重要なテーマです。
特に料理や洗濯、片付けなど、毎日の家事でどのように動くかといった「家事動線」で、暮らしの快適さは大きく変わります。
今回のコラムでは、福岡都市圏及び北九州・山口下関エリアのハウスメーカーの「鬼丸ハウス」が、生活の小さなストレスを減らせる人気の間取りや、子育てと両立しやすい家事動線の作り方も解説します。
これから家を建てる方が、本当に暮らしやすい家にたどり着けるヒントとなる内容となっているため、ぜひ参考にしてみてください。
Contents
家事動線重視の人気間取り5選|パパとママの家事や生活が楽になる間取りを解説

家事や育児、仕事に追われる毎日の中で、「少しでも家事を効率的に済ませたい」と考えることは、ごく当たり前のことです。
特に小さなお子さんがいる家庭では、複数の家事を並行できたり、ご家族の気配が感じられたりといった動線上の工夫が、生活全体の快適さを大きく左右します。
ここからは、鬼丸ハウスが手掛けた、家事動線重視の人気間取りの事例を5つ解説します。
図面とあわせて、なぜその配置が楽になるのかを解説するため、ぜひ間取りのヒントとして参考にしてみてください。
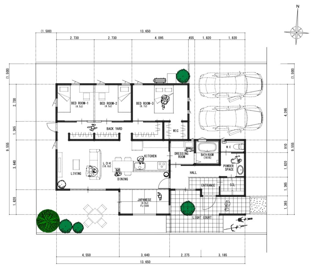
【4LDK・35.06坪】フレキシブルな動線で家事のストレスレスな人気間取り

こちらの間取りは、玄関からシューズクローク、室内干しスペースとして使えるユーティリティ(家事室)、そして洗面所につながっていることが特徴です。
洗濯後の、干して畳む、収納するという一連の作業が、すべて1階かつ短距離の移動で完結するため、1日2回洗濯をするご家庭にとっても、スムーズでストレスの少ない動線といえます。
また、キッチンがリビングとユーティリティ側から移動できる回遊動線を意識した仕様で、料理中の行き来や複数人の同時使用でもストレスになりにくい間取りです。
キッチンからはリビングや土間の様子が一望でき、小さなお子さまを見ながらキッチンに立つのにも最適な設計といえます。
加えて、キッチンからも脱衣室やユーティリティへのアクセスが良いため、料理の合間に洗濯機を回したり、お子さまの服を手洗いしたりなどと、「ながら家事」がしやすい人気間取りです。
小さなお子さんがいるご家庭や共働きで家事を分担しているパパとママにとって、このような家事動線は日々の負担を大きく軽減します。
【3LDK・29.18坪】開放的な空間で家事が楽しくなるような人気間取り

こちらは家事の効率を意識するだけでなく、楽しく取り組めるような余白と広がりが魅力的な人気間取りです。
ポイントは、キッチンやリビングからからユーティリティ、テラスが流れるようにつながった家事動線です。
テラスで室内干しした衣類を、ドレッシングルームやキッチンを通り、バックヤードに収納する流れが完成されています。
また、キッチンとダイニングの一体感もあり、料理中もご家族と自然に会話ができるような配置です。
さらに、玄関ホールからリビング、キッチンまでが大きく開けているため、視線の抜けがよく、空間の広がりを感じながら作業ができます。
動きやすいだけでなく、居心地の良さも両立させた設計は、まさに家事を毎日こなすパパとママにとって、暮らしを楽しむための間取りともいえます。
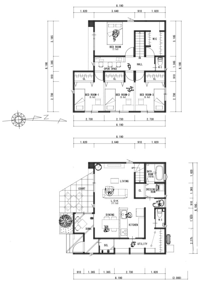
【4LDK・31.87坪】ご家族のつながりと家事動線を両立した人気間取り

こちらの間取りの魅力は、水回りを一ヶ所に集中させつつ、複数の動線が確保されていることです。
朝の忙しい時間帯でも、家の中で人がぶつからない工夫が随所にちりばめられていて、ストレスの少ない暮らしを叶えるような人気間取りといえます。
まず注目したいのは、玄関から脱衣所、浴室へ直行できる帰宅の動線です。
外遊びや学校帰りのお子さまが、リビングを通らずに手洗いや着替えを済ませられるため、生活の導線がとてもスムーズになります。
さらに、洗面室には玄関ホール側とキッチン側の両側からアクセスでき、回遊できる構造が家事の渋滞を防ぎます。
そして、リビングと隣接した和室もポイントです。
省スペースの和室はキッズスペースやお昼寝用の部屋として使いやすく、キッチンからでもお子さまの様子が目に入りやすく、声をかけやすい距離感で、安心して家事を進められます。
住宅に和室を取り入れたいという方は、和室の間取りやインテリアのそろえ方について解説したこちらのコラムもおすすめです。
間取りは後から変更できないため、あらかじめ適切な広さやレイアウトについて、実例をチェックしてイメージを膨らませましょう。
<関連記事>客間に最適な和室づくり|間取り・インテリア・広さの目安をまとめて解説
【4LDK・31.56坪】動線と視線が交差しない人気間取り

この間取りの最大の特長は、くつろぐエリアと家事のエリアを明確に分けつつ、家事動線が無駄なくつながっていることです。
共働き世帯や育児中のご家庭にとって、人と家事がぶつからない設計は、毎日のストレス軽減につながります。
家事動線の中核となるのは、キッチンと洗面所、ユーティリティ、テラスが一ヶ所にまとめられているレイアウトです。
料理から片付け、洗濯がひと続きにこなせるため、作業中の移動を最小限に抑えています。
また、ユーティリティを中心に洗面所とテラスがつながって、外干しを含めた動線が短距離で完了することもポイントです。
一方で、玄関や和室、リビング側は来客やご家族のくつろぎ空間として、ゆるやかに区切られており、光庭を挟んで視線が抜ける設計となっています。
これにより、リビングやダイニングに開放感を与えながらも、生活感が過度に露出しない間取りとなっています。
【4LDK・32.93坪】それぞれの家事が流れるようにつながる回遊性の高い人気間取り

この間取りは、家事動線を分断しない設計と、生活の中心であるリビングの見通しの良さが魅力的な人気間取りです。
浴室から洗面所、クローゼットが一直線に並び、洗濯や片付けの動線が整っていることが特徴で、キッチンからはダイニングやリビング、和室などすべてを見渡せる配置となっています。
料理をしながらお子さまの様子を確認でき、全体に声も届きやすいため、孤立しないキッチンにしたいパパやママから人気の高い間取りです。
また、1階にはバックヤード部分とダイニングにだけクローゼットを配置して、2階の各部屋の収納を充実させています。
これにより、お子さまが将来独立したクローゼットを使用することになってもプライバシーを確保できる点も人気のポイントです。
鬼丸ハウスでは、今回のコラムで掲載した間取り以外にも、さまざまな事例をご用意しています。
完成した住宅の事例を確認したい方は、ぜひご参考ください。
家事ごとに解説|家事と子育てを両立させる家事動線の作り方

料理や洗濯、片付けなど、家事の内容によって最適な動線の形は異なります。
家事それぞれに求められる動きやすさや視界の届きやすさがあり、それらが子育てとの両立にも直結します。
そのため、パパとママの家事を楽にするためには、いかにすべての家事をスムーズにこなせる動線を考えるかといったポイントが重要です。
ここからは、日々の家事を種類ごとに分けて、パパとママの暮らしが本当に楽になる動線の工夫を解説します。
料理動線|料理中もキッチンからお子さまを見守れる
毎日の食事づくりは、家事の中でも特に時間がかかる作業です。
そのため、キッチンまわりの動線がスムーズかどうかで、毎日の負担が大きく変わるといえます。
特に子育て中の家庭では、お子さまを見ながら調理するという視点が重要です。
たとえば、リビングやダイニングと隔てられた独立しているキッチンの場合、調理中にお子さまの様子が見えず、何かあるたびに手を止めて確認しに行くことも考えられます。
キッチンを中心にダイニングやリビングを見渡せる開放的な動線の場合は、配膳や片付けがしやすいだけでなく、お手伝いや声かけの習慣づけにもつながります。
洗濯動線|干してから収納までの移動を短くする
「回す・干す・取り込む・たたむ・しまう」と工程が多い洗濯は、動線が悪いとその分だけ家事に向き合う時間が増えます。
そこで洗面脱衣室とファミリークローゼットを近接、または一体化させる設計にすると、洗濯機を回し、室内干しして、そのまま収納までが短い動線で完了します。
室内干しのスペースも家事動線にかかわる大きなポイントで、どこに置くかだけでなく、換気や除湿、採光の設計も重要です。
たとえばランドリールームに窓を設けたり、乾燥機を設置したりと、天候に左右されずに洗濯が完結する空間づくりが家事の時短につながります。
また衣類は、畳まず収納するスタイルにすれば、さらに負担を減らせます。
ハンガーのままファミリークローゼットへ移動させる家事動線にすると、育児中でも洗濯から収納までスムーズに回せるため、家事の時間を少しでも減らしたいパパやママにはおすすめの方法です。
掃除動線|掃除道具を使う場所の近くに置き収納を楽にする
毎日の掃除の負担を軽減する近道は、掃除したい時にすぐ取りかかれる環境です。
掃除に関する家事動線を考える際、見落とされがちなポイントに掃除道具の収納場所が挙げられます。
階段下収納や洗面室近くなど、使いたい場所の近くに道具を置くことを意識するだけで、家事効率がぐっと向上します。
ロボット掃除機を使うなら、基地(充電場所)が動線をふさがないかも確認しておきましょう。
使う場所の近くに収納せず、玄関や廊下に掃除道具を置くと、通行の邪魔になったりお子さまがぶつけたりという事態になりかねません。
そのため、掃除の取り掛かりやすさや安全面を考えても、掃除を意識した家事動線の間取りを考える必要があります。
片付け動線|ご家族全員が自分のものを片づけやすい環境にする
散らかりやすい住宅の原因には、物をしまう場所が遠かったり分かりにくかったりなどの動線ミスが挙げられます。
そのため、よく使うカバンや上着、ランドセルなどは、帰宅後すぐに置ける動線上の収納をつくることで散らかりにくくなります。
リビングや子ども部屋、玄関といったご家族の動線上には、物を戻す場所を意識して設置してみましょう。
また、おもちゃや絵本などお子さまが使うものは、大人目線ではなくお子さまが自分で戻せる場所に配置することも散らからないポイントの一つです。
リビングの収納の一角やキッズスペースなどに、お子さま見えやすく届きやすい、かつ簡単に片付けられる場所を作ることで、遊び終わったら片づける習慣も身につきやすくなります。
片付けづらい住宅にせず、暮らしの動線と収納動線が一致する設計が、パパとママの家事を少しでも楽にするカギとなります。
帰宅・入浴動線|玄関から洗面と着替えをスムーズにする
小さなお子様がいらっしゃるご家庭では、特に汚れや感染対策に気を遣いたいという方も多く、玄関からリビングに直行させない導線を間取りに組み込むケースもあります。
たとえば、玄関でまず手洗いを済ませて、ファミリークローゼットで着替えたあとに、リビングでくつろぐといった、直接リビングに向かわない動線も人気です。
専門室の途中でリビングを経由する間取りでも、玄関ホール近くに簡易的な洗面台を設けておくことで、リビングに入る前に手洗いやうがいができ、家庭内の清潔を保ちやすくなります。
パパとママが後悔しやすい家事動線|家事が億劫になりがちな間取りの特徴5つ

間取りを考える際は、つい広さや部屋数に目がいきがちですが、実際に住み始めてからストレスとなりやすい原因の一つは、家事動線の不便さです。
間取りは施工後に変更できないため、家事動線がスムーズでないと、日常の家事がどんどん億劫になり、「こんなはずじゃなかった…」という後悔につながります。
ここでは、家づくり後に多くの家庭が失敗したと感じやすい、家事動線まわりの落とし穴となる特徴を5つご紹介します。
これから家を建てる方にとって、やってはいけない設計を事前に知ることは重要です。
あらかじめ見落としがちなポイントをすべて知ったうえで住宅を作りたいという方は、ぜひ鬼丸ハウスにご相談ください。
洗濯動線が上下階で分かれていて毎日疲れる
洗濯にまつわる動線でありがちな後悔が、「洗濯機が脱衣室にあるのに、干す場所が2階、収納は別の部屋」といったバラバラな設計です。
毎回、重い洗濯カゴを持って階段を上がり、干したらまた下りて畳み、収納へ運ぶという流れは、見た目以上に体力も時間も消耗します。
さらに、取り込んだ後に衣類を畳める場所や収納場所が曖昧な間取りでは、洗濯物がリビングに溜まりがちになります。
こうしたストレスを避けるには、洗ってから干して、収納する動線を最短にする設計が重要です。
ランドリールームやファミリークローゼットを近接させ、一連の流れを1ヶ所で完結できるかどうか、意識して間取りを考えてみてください。
家事動線を意識したランドリールームの間取りについて詳しく知りたい方は、こちらのコラムもおすすめです。
<関連記事>家事動線が良いランドリールームの間取り図と実例|平屋・二階建てのアイデアをご紹介
収納と家事の流れが繋がっていない
収納を十分に用意したはずなのに、なぜか部屋が散らかってしまうのは、家事動線と収納の位置が噛み合っていない間取りでよく起こる現象です。
たとえば、キッチンから遠い場所にパントリーがあったり、洗面所と別の階にリネン収納があったりすると、長い距離を歩いて収納するという作業が億劫になり、物が出しっぱなしになりがちです。
そのため、使う場所のすぐ近くに収納できるように家事動線が設計されていれば、片付けのハードルが下がり、家事が自然に回りやすくなります。
設計段階では何をどこで使うか、収納するかといったことを具体的に想像し、動線に沿った収納計画を立てることが後悔を防ぐカギです。
どのような収納を取り入れるべきか悩んでいる方は、ウォークインクローゼットのレイアウトや寸法ごとの違いについて解説した、こちらのコラムもおすすめです。
<関連記事>ウォークインクローゼットの寸法別事例|2帖から3帖の広さから、コの字など人気の間取りレイアウトを解説
お子さまがパパやママから見えない位置で遊ぶ
子育て中の家庭にとって、「お子さまの様子が見えるかどうか」は安心感に直結するポイントです。
しかし、キッチンとリビングが離れていたり、キッズスペースが廊下の奥にあったりすると、家事中ふと目を向けた際にお子さまが見えなくなってしまいます。
探したり様子を見たりなど、不安と手間が増えるため、日々の家事がストレスに感じられることもあります。
また、常に目が離せない乳幼児期だけでなく、小学校以降も「帰宅後にどこで過ごすか」「2階の子ども部屋で何をしているのか」など、成長しても気配を感じ取れる家の重要性は変わりません。
そのため、キッチンやリビングから自然と目が届く配置のような、間取り全体の動線と視線を連動させた設計であれば、家事をしながらお子さまの様子を把握できて、安心して家の中で過ごせるようになります。
玄関からキッチンやパントリーまでが遠い
週末のまとめ買いや雨の日の買い物後、重い荷物を持ってキッチンやパントリーを何度も往復するといった間取りでは、日々の生活に小さなストレスが積み重なります。
特に小さなお子さまを連れた買い物では、ベビーカーと荷物の組み合わせで、動線の悪さがそのまま負担に直結します。
この状況を避けるには、玄関とキッチンやパントリーを近づけた配置が効果的です。
玄関から直接パントリーやキッチンにアクセスできるような、直通する動線があれば、荷物をすぐに置けて、早めに冷凍食品や生鮮食品を冷蔵庫に入れられます。
さらに、パントリーをキッチンと玄関側からもアクセスできる「回遊動線」を意識した間取りにすると、ママはキッチン、パパは買い出しの収納といったことが同時にでき、忙しい毎日の中で家事効率が大きく向上します。
複数人で家事をするとキッチンや通路が渋滞する
「夫婦で家事を分担しているのに、キッチンですれ違えない」「洗面所に2人いると何も作業ができない」といった悩みは、通路の幅だけでなく、同時に使用することを想定していない間取りによって生まれがちです。
間取りの設計段階で、複数人が同じ場所で同時に動くことを前提にしていないと、家の中に小さな渋滞が発生し、それがストレスのもとになります。
たとえば、キッチンと冷蔵庫の通路幅が狭かったり、洗面室に収納や着替えスペースが集まりすぎていたりすると、誰かが作業している間は他の人が入れない状態になりがちです。
解決策は、必要な場所に余白を設けることです。
たとえば着替えは洗面所だけでなくファミリークローゼットでもできるようにしたり、キッチンへのアクセスを二方向にしたりなど、間取りの配置を少しずらすだけで、ご家族みんなが自然に動ける家になります。
家事動線が重視された人気間取りは、単に距離を縮めるだけでなく、同時に動いてもストレスにならない空間づくりができているといえます。
人気間取りにとらわれない設計|パパとママの理想の家事動線を見つけるチェックリスト

SNSや雑誌で見かける「人気間取り」をそのまま真似しても、考えていた家事動線と違っていて使いにくかったというケースは珍しくありません。
それは、家庭ごとに日々の過ごし方は異なるため、他人の家をそのまま真似してしまったことが原因の一つに挙げられます。
適切な家事動線は、ご家族の人数や生活リズム、家事の分担などによって変わります。
そのため大切なのは、自分たちの家庭や暮らしに合った動線を見つけることです。
以下の理想の家事動線を見つけるチェックリストを使って、ぜひ今の生活を可視化してみてください。
- 朝起きてから外出するまで、どの部屋を何回行き来していますか
- 洗濯物を洗って干し収納する中で、最も遠いポイントはどこですか
- 買い物帰りの荷物を、一度も手を止めずにキッチンへ運べますか
- お子さまが遊ぶ場所と、パパやママが家事をする場所は、お互いに見えていますか
- リビングや洗面所に物が散らかりやすい場所はありませんか
- 朝や夜などご家族が同時に動く時間帯に、狭い通路ですれ違ってストレスを感じていませんか
- 掃除道具や日用品は、使う場所の近くに収納されていますか
- 帰宅後、手洗いや荷物置き、着替えなどの動線はスムーズに流れていますか
- 今の暮らしの中で、毎日ちょっと面倒に感じている家事動線を挙げられますか
- 「こうだったらもっと楽になるのに」と思うような動き方を、ご家族と共有できていますか
人気間取りをそのまま取り入れるのではなく、自分たちの暮らしに合う家事動線を見つけていきましょう。
鬼丸ハウスでは、このようなご家庭ごとの生活スタイルや希望に沿った住宅プランをご提案させていただきます。
まとめ
家事動線は、ただ家事を便利にするだけでなく、ご家族との時間を増やしたり、安心感をもって子育てに取り組めたりなど、そのような暮らしの土台となる要素です。
人気のある間取りには共通する工夫がありますが、大切なのは自分たちの暮らしに合うことです。
このコラムで解説した人気間取り事例やチェックリストを参考にしながら、ご夫婦の家事のスタイルやご家族の動き方などを、ぜひ一度見つめ直してみてください。
お問い合わせ Contact
-
鬼丸ハウス本社
〒800-0213
福岡県北九州市小倉南区中曽根東2-13-16093-383-9382(9:00〜18:00)
[営業]9:00~18:00
[定休]なし/GW、お盆、年末年始除く