住まいのコラム Column
共働きや子育て世帯に今注目されているのが、1階にファミリークローゼットを配置する間取りです。
しかし、十分なスペースのファミリークローゼットを検討した際、「30坪程度の広さでスペースが取れるのか?」「動線はどう考えたらいい?」といった悩みに直面しやすいです。
今回は、福岡都市圏及び北九州・山口下関エリアのハウスメーカーの「鬼丸ハウス」が、実際に1階にファミリークローゼットを取り入れた30坪程度の実例を4件紹介します。
同時に、ファミリークローゼットを1階に配置するメリットや、間取りで後悔しないためのポイントをわかりやすく解説します。
福岡都市圏及び北九州・山口下関エリアで家づくりをお考えの方は、ぜひ参考にしてみてください。
Contents
【実例4選】30坪の住宅1階にファミリークローゼットを設置した間取り

ここからは実際に鬼丸ハウスが手がけた住宅の間取りを解説します。
30坪前後の広さをメインに、1階にファミリークローゼットを設置した間取りを解説するため、ぜひファミリークローゼットの配置を参考にしてみてください。
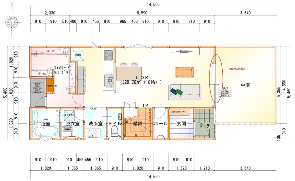
【30.39坪】物を1階の1ヶ所に集約できる間取り


こちらは、30.39坪の2階建て住宅の1階にファミリークローゼットを設けた間取りの実例です。
洗面室と直結しているため、洗濯物を短い動線で収納することが可能です。
さらにリビングとつながっていることで、日中の着替えやお子さまの荷物整理にも使いやすくなっています。
2階は階段ホールの収納と1部屋分のクローゼットのみで、収納は少なめですが、収納スペースよりも部屋の広さを確保できています。
1階は家事の効率を重視した設計で、共働きの忙しいご夫婦が過ごしやすい配置です。
また、ファミリークローゼットからすぐにキッチンやリビングにアクセスできるため、炊事や育児との並行作業もスムーズにこなせます。
30坪という現実的な広さでも、共働きや子育て世帯にとって、無駄のない動線設計が実感できる間取りです。
【35.29坪】収納スペースを妥協せず用途別の収納を設計した間取り


この間取りでは、玄関ホールのすぐ近くにファミリークローゼットを設置しています。
ファミリークローゼットは、玄関と洗面室のそれぞれに近接した位置に設けられていて、日常の身支度や帰宅後の片付けがしやすい動線設計です。
帰宅後は玄関からシューズクロークや洗面所にアクセスしやすく、そしてリビングでくつろぐ前に、コートやバッグなどをファミリークローゼットに収納できます。
そのためリビングに生活感が持ち込まれにくく、散らからない暮らしを叶える工夫の間取りです。
シューズクロークや階段下収納など、用途に応じた収納が家全体にちりばめられていて、自然に片付けやすい環境になっています。
収納が多い分、リビングには今本当に必要なものしか置かないという、生活感の少ない住宅を実現しやすい間取りといえます。
【33.56坪】リビングの裏で着替えを完結できる間取り

この住宅の特徴は、1階でも特に生活動線が集まる場所にファミリークローゼットを設置していて、機能性を最大限に活かした間取りです。
帰宅後は、玄関から手洗いを済ませ、そのままリビングや浴室に移動する途中で着替えができるため、部屋着への切り替えがリビングの裏でおこなえます。
また、朝の支度では、洗面からファミリークローゼット、キッチンとスムーズに移動でき、時間に追われる平日の朝でも、無駄のない流れで効率よく家事に取り組めます。
2階には各部屋ごとのクローゼットのみであるため、1階で衣類管理を完結させたいご家庭に適した間取りの一例です。
【29.18坪】回遊性を重視して楽しく家事に取り組める間取り

この住宅は、ユーティリティ(家事室)からテラス、ドレッシングルームへとつながっている間取りで、明確な家事動線を実現しています。
洗面室となる場所のすぐ横にテラスがあり、洗濯から干す動作が非常にスムーズになる点が大きなメリットの間取りです。
部屋の中央に位置するバックヤードがファミリークローゼットの役割となり、30坪以下の広さでも十分な収納量を確保しています。
乾いた服はキッチンやリビングを抜けた先のバックヤードや、主寝室のウォークインクローゼットにそのまま収納できるため、平屋でもしっかり生活感を隠せる設計となっています。
また、回遊性のある間取りによって、料理を作りながらテラスルームやバックヤードへの移動もスムーズです。
生活導線と収納導線がぶつかりにくく、複数人の家事も効率的におこなえ、日々の動作に無駄がありません。
間取りを決めるにあたり、家事動線を重視したいという方は、こちらのコラムもおすすめです。
家事動線が優れたランドリールームの間取り事例や、家事動線を意識した家づくりのポイントについて詳しく解説しています。
<関連記事>家事動線が良いランドリールームの間取り図と実例|平屋・二階建てのアイデアをご紹介
また、30坪以下の間取りで、収納場所もしっかり確保したいという人は、ぜひ鬼丸ハウスにご相談ください。
広々としたファミリークローゼットを実現できるプランをご提案させていただきます。
鬼丸ハウスでは、今回ご紹介できなかった事例も豊富に掲載しています。
多くの事例を見てイメージを膨らませたい方は、ぜひ参考にしてみてください。
1階にファミリークローゼットを設ける4つのメリット

限られた面積の中でも、1階に収納スペースを集約する間取りは、実は共働きや子育て世帯にとって理想的な選択肢の一つです。
毎日の動きが集中する1階にファミリークローゼットがあることで、家事の効率化や片付けのしやすさや、生活感を隠しやすいといった多くのメリットが生まれます。
ここでは、30坪程度の広さで家づくりを検討される方に向けて、1階のファミリークローゼットにどのようなメリットがあるのか、4つの視点からご紹介します。
片付けやすい生活動線で室内が散らからない
30坪前後の住まいでは、「どこに何を置くか」が暮らしやすさを大きく左右します。
1階にファミリークローゼットを設けることで、玄関やリビング、洗面室などの生活動線上に収納場所を組み込むことになり、片付けの習慣が自然と身につきやすくなります。
特にお子さまがいるご家庭では、帰宅後にランドセルや上着がリビングに散らかりがちです。
そこで、帰ったらすぐに片づけられる収納動線をつくることで、ストレスなく片づけられるため、室内が散らかりにくくなります。
リビングが散らかることを避けたい方は、ご家族みなさまがストレスなく片づけられる動線を目指してみてください。
洗濯から収納まで効率良く完結できる
日々の洗濯は「いかに動線を短くするか」がストレスを減らす大きな課題です。
2階にファミリークローゼットがある場合は、大量の乾いた衣類を運ぶことが大きな負担になります。
その点、洗面室やランドリールームと直結したファミリークローゼットを1階に設ければ、そのまま収納できるため、家事の時短効果が十分に発揮されることが大きなメリットです。
日々おこなう家事のストレスを軽減することで、つい溜め込みがちな洗濯物を減らせることも期待できます。
衣替えや服の管理が楽になる
ご家族全員の衣類をまとめて収納できるファミリークローゼットを1階に設ける場合、衣替えや収納の手間を軽減できるという点がメリットです。
たくさんの衣類や物を2階から1階に運ぶのは大変ですが、同じ階の1ヶ所に物を集約すると管理が楽になり、使いやすいファミリークローゼットとして活用できます。
子ども部屋や寝室にそれぞれ服を置かないことで、季節の変わり目にあちこちのクローゼットを開け閉めして入れ替える必要がなくなり、必要なものを取り出して収納するまでがスムーズな動作で完了します。
また、朝の支度時も「今日は何着る?」とご家族で確認しやすく、ご家族のふれあいといった時間も作れることもポイントです。
収納場所を集約して各部屋を広く使える
30坪前後の住宅では、1部屋ごとの広さや設置できる収納スペースに限りがあります。
各部屋に収納を分散して設けたり、間取り全体に用途別の収納庫を設置したりなど、収納に関するスペースを設計すると、その分生活スペースが狭くなりがちです。
そこで、1階にファミリークローゼットを設けることで、個室の収納スペースを最小限に抑えて、室内をより広く使うことができます。
たとえば子ども部屋は、クローゼットなしのシンプルな構造にすることで、遊び場や学習スペースをゆったりと確保できます。
個別の収納が必要になれば、もともとのスペースを広く確保しているため、収納用品を後から設置することも可能です。
収納効率と部屋の使いやすさのバランスは非常に重要なテーマであり、ファミリークローゼットの1ヶ所に集中した収納設計は、暮らしをスマートに整える一手ともいえます。
「ファミリークローゼットを導入すると予算から外れてしまう」といった悩みを持つ方には、こちらのコラムもおすすめです。
予算内で理想の住宅を建てるコツや、妥協すべきでない注意点について詳しく解説しています。
<関連記事>「注文住宅が高すぎる」理由と予算内で建てるコツ、平均価格、建売住宅との比較を解説
1階のファミリークローゼットに関するよくある後悔と対策

ファミリークローゼットの配置は施工後に変更することができません。
そのため、設計段階の時点で、生活動線を意識した使い勝手や将来の使い道などを想定することが重要です。
特に、30坪前後の広さで間取りを考える場合、収納スペースの配置や動線、使い勝手は慎重に検討すべきポイントです。
ここからは、ファミリークローゼットの設置に関するありがちな失敗例と対策について、代表的な3つのケースを解説します。
後悔しない家づくりのために、ぜひ設計前にチェックしてみてください。
湿気やカビ対策に悩まされる
ファミリークローゼットは衣類やバッグなど、湿気を吸収しやすく乾きにくい布製品を多く収納するため、湿気がこもるとカビの原因になりやすい空間です。
特に洗濯室や洗面、浴室の動線上に設けるケースが多い1階のファミリークローゼットでは、脱衣室やランドリールームの湿気が流れ込みやすいです。
通気や除湿をしないまま設計すると、毎日の湿気からカビが発生しやすい環境になり、不快な空気がこもりがちになってしまいます。
ある程度の湿気は施工後でも除湿機や除湿用品で対策が可能ですが、なるべく特別な対策をする必要がないよう、施工段階での湿気対策が求められます。
福岡・北九州のような湿度の高い地域では、気候に合わせた間取り設計が特に重要です。
鬼丸ハウスでは、実際の施工エリアの気候条件を踏まえた換気・断熱提案もおこなっているため、湿気や熱が心配な方はぜひご相談ください。
動線が悪くて活用できなくなる
1階に自慢のファミリークローゼットを作ったにもかかわらず、ご家族がなかなか活用してくれないという悩みも、施工後によくある後悔のポイントです。
生活動線の中に収納が組み込まれていないと、ご家族がその存在を忘れたり、移動の手間を感じて使われなくなったりなど、活用できないことがあります。
特に30坪前後の住宅では、土地のスペースを最大限に活かすために、「とりあえず空いた場所にファミリークローゼットを設置した」という配置ミスもありがちです。
この点を解消するには、リビングや洗面室、玄関といった日常的によく通る場所のそばに配置することが重要です。
ご家族が自然と使う動線上の収納にすることで、スペースを無駄にしない、かつ収納にストレスを感じないようなファミリークローゼットを作れます。
プライバシーの問題が発生する
ご家族全員の衣類をまとめて管理できるファミリークローゼットは便利ですが、誰かが使っていると入れないことや、思春期のお子さまが嫌がってしまったなど、将来的な後悔も懸念されます。
特に1階のファミリークローゼットは、洗面室や脱衣室と隣接していることが多いため、入浴や着替えのタイミングが重なることを避けたいと思う方も多いです。
このようなプライバシー関連のトラブルを防ぐには、以下の方法がおすすめです。
- 個室にも最小限の収納スペースを確保しておく
- ファミリークローゼット内を鍵付きにする
- 使用タイミングをご家族であらかじめ共有しておく
使いやすさだけでなく、プライバシーにも目を向けておくことで、将来的な安心感にもつながります。
30坪の家で1階ファミリークローゼットを叶えるポイント

1階にファミリークローゼットを設けたいと思っても、30坪前後の住まいではスペースや配置に悩むという方も多いのではないでしょうか。
ここからは、30坪の広さで無理なくファミリークローゼットを設置するためのポイントを4つ解説します。
広さの目安や動線のつなぎ方、将来を見据えた配置など、家づくりの具体的なヒントとして、ぜひご活用ください。
限られたスペースでも満足できる収納計画を立てる
1階にファミリークローゼットを設置する場合、先に考えるべきことは「どれくらいの広さを確保すべきか」という点です。
30坪前後の延床面積では、3帖〜4帖ほどのスペースを目安に計画されることが多いですが、2帖~3帖といったコンパクトなサイズでも、家事動線を意識した内装であれば、十分に機能します。
ポイントは、広さよりも使い方です。
たとえば無理にウォークイン型にするよりも、壁面収納やオープンラックを活用した設計のほうが省スペースで出し入れしやすく、動線にも無理がありません。
本コラムで解説した事例では「【29.18坪】回遊性を重視して楽しく家事に取り組める間取り」が当てはまります。
ファミリークローゼットに割ける面積を考えて、いかに動きやすく、片付けやすい空間にするかが、満足度のカギになります。
また、収納は多ければ多いほど良いものではありません。
こちらのコラムで、後悔しない収納計画の立て方について詳しく解説しているため、ぜひ併せてチェックしてみてください。
<関連記事>新築住宅の収納が「多すぎた・少なすぎた」|後悔しないための“収納計画”ポイントと実例を紹介
玄関や洗面など別スペースとのつなぎ方を考える
1階にファミリークローゼットをつくるときは、「どこに設置するか」だけでなく、「どの空間とつなぐか」を意識することが重要です。
たとえば、玄関の近くに配置すれば、帰宅後すぐに上着やカバンを片付けられる動線になり、洗面室の近くに設ければ、入浴前後や洗濯時の収納動線としても使えます。
ファミリークローゼットに割けるスペースのゆとりが限られている場合は、収納単体ではなく他のスペースと連携させることで家事の効率化を図ることが工夫のポイントです。
将来の暮らしに備えた柔軟な配置にする
現在の家族構成や使い方には適していても、将来の暮らしにフィットしたつくりでない場合は、「あの時別の設計にしておけばよかった」と後悔することも考えられます。
たとえば、今はお子さまが小さくても、成長すればプライバシーの重要性が高まり、ファミリークローゼットを使う頻度や使い方が変わる可能性があります。
また、将来的にご夫婦のみの暮らしになったとき、安全面から1階で生活を完結させたいと考える人も少なくありません。
そうしたライフステージの変化を見据えて、寝室や水まわりの近くに配置するなど、長く使える柔軟な位置取りを検討することが重要です。
現在の使いやすさと、10~20年後の暮らしを両立させるような視点が、後悔を防ぐポイントともいえます。
広さごとの収納力と使い勝手の違いを知る
1階に設けるファミリークローゼットには、「何をどれだけ収納するか」によって適した広さや形状が変わってきます。
以下は、家族構成で考えるファミリークローゼットの広さの例です。
- ご夫婦+お子さま1人:3~4帖
- ご夫婦+お子さま2人:4帖
- ご夫婦+お子さま3人以上:4~5帖
普段使う衣類を収納するだけの用途であれば、さらに省スペースでも問題ありません。
しかし、ご家族全員分の衣類やバッグ、シーズン用品までを想定するなら、ゆとりのある広さを確保することで、ストレスなく使いやすいファミリークローゼットを作れます。
まとめ
1階にファミリークローゼットを設けることで、30坪前後の面積でも、片付けやすさや家事の効率を意識した、生活感のない空間を実現することができます。
ファミリークローゼットは、広さや位置、動線まで考えた設計をすることが、後悔のない設置のコツです。
鬼丸ハウスでは、福岡・北九州エリアの暮らしに合った、ご家族が使いやすいファミリークローゼットや収納スペースの作り方をご提案しています。
ご家族の生活スタイルや優先順位に合わせて、フル活用できるような間取りをご提案しますので、ぜひお気軽にご相談ください。
お問い合わせ Contact
-
鬼丸ハウス本社
〒800-0213
福岡県北九州市小倉南区中曽根東2-13-16093-383-9382(9:00〜18:00)
[営業]9:00~18:00
[定休]なし/GW、お盆、年末年始除く