住まいのコラム Column
家づくりを本格的に検討する中で、「家族全員がのびのび暮らせて、無理のないコストでおさまる間取り」を具現化したいと感じる方は多いのではないでしょうか。
そんな思いに適しているのが、長方形の土地に南玄関を取り入れた、30~40坪程度の間取りです。
今回は、福岡都市圏及び北九州・山口下関エリアのハウスメーカー『鬼丸ハウス』が、南玄関で土地が長方形という条件で実現した、5つの間取り事例をご紹介します。
ご家族のこれからの暮らしをかたちにするヒントとして、ぜひお役立てください。
Contents
南玄関×長方形の間取り事例5選

南側からの光を取り込みやすい南玄関と、無駄のない空間設計がしやすい長方形の組み合わせは、暮らしやすさと間取りの自由度を両立できるプランとして人気です。
しかし、30〜40坪という現実的な面積の中で、ご家族の人数やライフスタイルに合わせた間取りを考えるためには、慎重な判断が求められます。
ここで実際の間取り事例を見て、どのように部屋を配置するかイメージしてみてください。
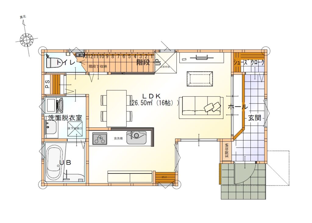
【4LDK・延床面積非公開】水回りと収納の集約で家事効率アップ


こちらの4LDKは、南玄関と長方形の整形地を活かしながら、毎日の家事負担を減らす工夫が随所に施された間取りです。
注目すべきは、玄関から洗面脱衣室とファミリークローゼットが直線でつながる1階の動線計画です。
隣接する収納に乾いた衣類をそのまま片づけられる流れが自然に生まれているため、日々の家事も効率よく取り組めます。
そして収納の充実さもこの間取りの特徴です。
玄関のシューズクロークは、ご家族分の靴や外遊び用品もすっきり収まる広さを確保しています。
加えて2階の主寝室と子供部屋など、すべての居室に収納を完備し、廊下にはファミリークローゼットも配置されています。
効率的な動線と十分な収納スペースを両立したこの間取りは、共働きのご夫婦やお子さまのいるご家庭にとって、毎日の暮らしをサポートしてくれる住まいです。
家事動線の整った住宅を作りたい方は、こちらのコラムもおすすめです。
ランドリールームを中心とした家事動線が特徴的な間取り事例を解説しています。
<関連記事>家事動線が良いランドリールームの間取り図と実例|平屋・二階建てのアイデアをご紹介
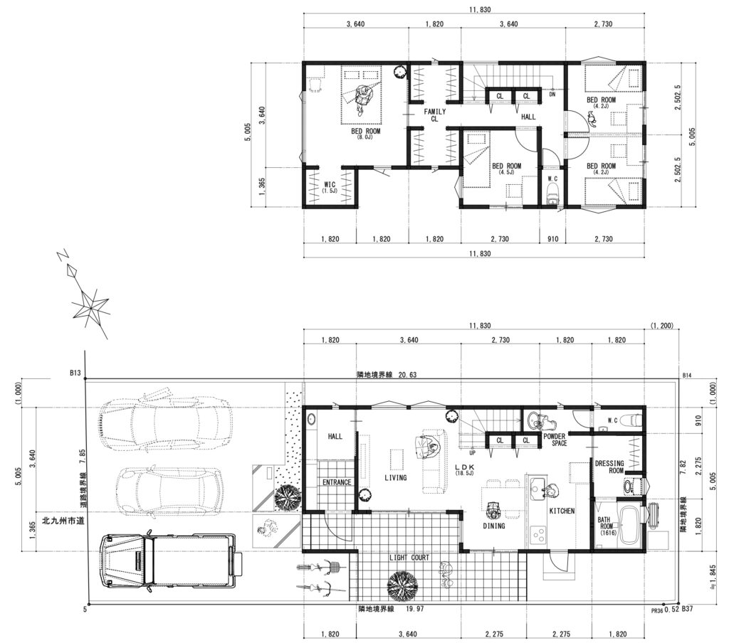
【3LDK・延床面積非公開】吹き抜けで空間の広がりを演出


南玄関からまっすぐ奥へと視線が抜けるこの住まいは、無駄のない長方形の整形地に建てられた、3LDKの2階建て住宅です。
リビングは横長に配置されていて、一角に設けられた吹き抜けが、空間に高さと開放感をもたらしています。
16帖のLDKには大きな掃き出し窓が設けられ、南側から自然光がたっぷりと差し込む設計になっています。
また吹き抜け上部にも採光窓が設置されているため、リビングの奥まで光が差し込む点も特徴的な間取りです。
そして重要なポイントである水回りは、リビングの裏側にまとめられていて、洗面室と脱衣室、浴室がコンパクトに配置された設計で、生活空間と作業空間が自然に分かれる形となっています。
南玄関の採光性と吹き抜けの開放感を両立したこの間取りは、視覚的な広がりと日常の過ごしやすさを丁寧に考えた設計といえます。
【3LDK・24.73坪】家族のつながりを大切にしたコンパクトな平屋

こちらの間取りは平屋の3LDKで、ユーティリティ(家事室)を中心に水回りやリビング、個室につながる、回遊性のある住まいです。
リビングは南側の庭に面して開放感があり、リビングから外で遊ぶお子さまの様子を見守れる設計です。
キッチンはダイニングと一体で、調理中もご家族の様子を一目で確認でき、家族のつながりを大切にした間取りといえます。
ユーティリティスペースはキッチンの横に設けられていて、洗面やバスルームとつながる動線がスムーズにまとまっています。
コンパクトでありながら、生活動線と収納計画がきちんと整理されたこの間取りは、日々の暮らしでストレスを感じにくい設計です。
【4LDK・32.06坪】光庭で採光とプライバシーの確保を両立

長方形の敷地に建てられたこの住まいは、建物の中心に光庭を設けることで、採光とプライバシーの両立を実現した間取りです。
1階は玄関とリビング、水回りが一直線に配置されていて、建物の奥まで自然光が届くよう工夫されています。
特にリビングとダイニングは光庭に面しているため、外部の視線を気にせず大きな開口を取ることが可能です。
玄関から視線が抜けるような配置のこの間取りは、限られたスペースで開放感を感じられる工夫がされています。
2階の洋室にはそれぞれにクローゼットが備えられ、個室としての独立性を保ちつつ、中央のホールやファミリークローゼットを通して、家族の動線が交わる設計です。
隣接する建物や道路から距離を取りにくい敷地でも、このような採光計画によってリビング周辺の明るさが確保できます。
光庭を囲むかたちで暮らしが展開するこの住まいは、のびやかな生活を叶える一例といえます。
【4LDK・31.87坪】繋がった和室とLDKで家族団らんを重視

こちらの間取りではリビングと和室をつなげて一体感のある空間をつくり、ご家族が自然と集まれる設計になっています。
4帖の和室はリビングと引き戸でつながっていて、開けることで20帖以上の大空間としても活用できます。
お子さまの遊び場や昼寝スペース、来客用の部屋など、家族構成や状況に応じて有効活用できる一部屋です。
水回りは玄関の裏手に集約されていて、キッチンから脱衣室、洗面室が短い動線でまとまっています。
洋室の3部屋につながるバックヤードには十分な収納スペースもあり、ご夫婦の寝室やお子さまの個室など、ライフステージに応じて柔軟に使い分けることができます。
リビングと和室がゆるやかにつながることで、ご家族の団らんの場が広がり、暮らしの中心となる住まいの間取りです。
住宅に和室を取り入れたい方は、和室の間取り事例やインテリアの選び方を解説しているこちらのコラムもおすすめです。
<関連記事>客間に最適な和室づくり|間取り・インテリア・広さの目安をまとめて解説
鬼丸ハウスでは、このような南玄関が特徴的な間取り以外にも、機能性からデザインまで細部にこだわった住宅を手がけています。
ぜひ別の間取り事例も参考にして、理想の住宅のイメージを深めてください。
長方形で南玄関を取り入れる間取りのメリット

住宅地での設計では、土地の形状や周辺環境によって玄関の向きがある程度決まるケースもありますが、その中で「南玄関×長方形」は、採光や通風、動線のバランスを取りやすい組み合わせとして人気があります。
ここからは、長方形の住宅で南玄関を取り入れた場合の具体的なメリットについて詳しく解説します。
またこちらのコラムでは、北向きの玄関を取り入れた間取りについて解説しています。
玄関の方角に迷っていて、事前にそれぞれのメリットやデメリットを把握しておきたい方は、ぜひ参考にしてみてください。
<関連記事>玄関の向きが北の間取り成功例|「北向きはダメ」と言われる理由、家相の吉凶・風水対策なども簡単解説
南側からの採光と通風を効率よく取り入れられる
長方形の住まいは、建物の南面に対して広く開口を取ることができるため、部屋の中央まで日当たりを確保しやすい特徴があります。
特に南玄関と組み合わせることで、玄関まわりに自然光が届きやすくなり、明るく開放的な第一印象を与えられます。
また、南面にリビングや居室を配置すれば、日中を通して太陽の光をしっかり取り込むことができ、室内の温熱環境も安定しやすくなる点もメリットです。
東西方向に窓を設けることで風の通り道も確保しやすく、季節の心地よい風を自然と取り入れられます。
デッドスペースが出にくく無駄のない空間設計が可能になる
長方形の間取りは、凹凸の少ないシンプルな形状だからこそ、空間を効率よく使えるというメリットがあります。
廊下や収納スペースも直線的に配置しやすく、動線に無理が生じにくいため、限られた面積で機能的なプランが組みやすくなります。
また、家具のレイアウトにも影響しにくく、リビングや個室で使いたい家具をそのまま活かしやすい点も実用的です。
建物の形が整っている分、間取り全体に無理がなく、設計段階からコストを抑えた計画が立てやすいため、コストを重視する方にもおすすめの間取りといえます。
外観バランスやアプローチ動線が整いやすい
整形地に長方形の住宅を建設する場合、建物の輪郭がすっきりと見えるため、外観に安定感が生まれやすくなることも特徴の一つです。
そこに南玄関を取り入れることで、採光を取りたい南側に玄関や窓、外構などをまとめて配置できるため、外観やアプローチのバランスが整いやすくなります。
また外構と建物の関係性が取りやすいことで、植栽や駐車スペースの計画もスムーズに立てられます。
南玄関を取り入れる際の3つの注意点

南玄関には、日当たりの良さや開放感といった魅力がある一方で、設計の際にはいくつか注意すべきポイントもあります。
光が多く入ることで室温が上がりやすくなったり、通行人からの視線が気になったりなど、生活環境に影響を与える要素も出てくるため、ここで南玄関を取り入れるうえで事前に知っておきたい注意点と対策を確認しましょう。
夏の日差しが強く玄関や室内が暑くなりやすい
南玄関は採光に優れている一方で、夏場には日差しが強く入り込みやすく、玄関まわりや室内の温度が上がりやすくなります。
特に南面に大きな開口部を設けた場合、真夏の午後には強い日差しが差し込み、室内が想像以上に暑く感じられることもあります。
そのため断熱性の高い玄関ドアやガラスの採用、窓まわりに日よけを設けるといった暑さ対策が重要です。
外部からの熱を遮る工夫を取り入れることで、南玄関の良さを活かしながら、夏場の快適性も両立しやすくなります。
福岡都市圏及び北九州・山口下関エリアのハウスメーカー『鬼丸ハウス』では、追加料金なしで断熱等級5の施工も可能です。
断熱等級が高いと、冬に暖かいだけでなく、夏場の外の暑さも遮断し、外部の温度変化の影響を軽減します。
一年を通した快適性を重視する方は、ぜひ鬼丸ハウスにご相談ください。
道路側からの視線が気になりやすい
南玄関の場合、敷地の条件によっては、道路に対して建物の正面が丸見えになることがあります。
その結果、玄関ドアを開けたときや室内の様子が、通行人や近隣から直接見えてしまうことも少なくありません。
特に玄関がリビングの近くにある間取りでは、外からの視線に対して不安を感じる方も多いです。
建物の配置や開口部の向き、外構の計画などを丁寧に調整することで、視線のコントロールがしやすくなるため、設計時点の対策が必要です。
間取りが採光重視になると収納が取りにくい
南玄関の住まいでは、室内に光を取り込むために南側に大きな窓を設けるケースが多いです。
しかし窓の幅を確保すると、収納を設けるための壁面が少なくなるため、間取りによっては収納スペースの配置に悩むこともあります。
特に南に面したリビングでは、採光を優先するあまりテレビや棚の置き場所が限られたり、収納が分散して使い勝手が悪くなったりするなどの注意点を意識しましょう。
このような状況を防ぐためには、あらかじめ収納の量と配置を整理したうえで、必要な採光とプライバシーのバランスを取ることが大切です。
延床面積ごとの間取りの考え方

間取りを考える際、「何坪あれば希望の暮らしが叶えられるのか」といった疑問は、多くの方が最初に考えるポイントです。
たとえば同じ4LDKでも、30坪・35坪・40坪では設計の自由度や暮らし方に違いがあり、それぞれに適した工夫やバランスの取り方が求められます。
ここでは、鬼丸ハウスで人気のある面積帯から、それぞれの暮らしやすさや間取りの考え方をご紹介します。
【30坪】窮屈すぎない空間で機能性を確保
延床30坪前後は、ご夫婦とお子さま2人といった4人家族にとって、窮屈すぎず広すぎないような、無理のない暮らしを叶えやすい広さです。
リビングや水回り、3~4室の居室、さらに収納スペースをバランスよく配置することができ、家族それぞれが快適に過ごすための基本がしっかり整います。
延床面積を狭めることで、住宅設備や外構にもコストをかけやすく、建物の大きさと暮らしの質のバランスを取りやすい面積でもあります。
間取りの工夫次第で将来の変化にも対応しやすく、長く暮らせる住まいを考えるうえで人気の高い広さです。
【35坪】家事動線と収納のバランスを重視
35坪になると、部屋数や収納をしっかり確保しつつも、動線の効率化まで考えたプランニングが可能になります。
キッチンから洗面所や脱衣所、物干しスペースへの家事動線を一直線にまとめたり、ファミリークローゼットを中心に回遊性を持たせたりなどの間取りを実現でき、日常の動きが自然とスムーズになります。
また、収納を使う場所の近くに設けるといった間取りにすることで、自然と片付けやすく、家全体をすっきりと保ちやすいです。
【40坪】部屋数・収納・広さのすべてを両立
40坪のプランになると、5LDK以上の部屋数や2階ホール、納戸などを取り入れる余裕が出てきます。
ご家族がそれぞれの個室を持ちながら、共用スペースや趣味の空間、さらに将来のライフスタイル変化に備えた多目的スペースを設けることも可能です。
収納量も確保しやすく、パントリーやファミリークローゼットなどの大型収納を組み込みやすいため、暮らしの質を高められるような、ゆとりのある間取りが実現しやすくなります。
長方形の間取りを最大限生かすための工夫

南玄関と相性の良い長方形の建物形状は、シンプルである分、動線や収納の工夫によって暮らしやすさが大きく変わります。
整った形状だからこそ、直線的な配置が可能になり、家事や生活の流れを効率よく計画できるのが魅力です。
ここでは、長方形の間取りの良さをさらに引き出す設計上のポイントを具体的に解説します。
キッチン・洗面・クローゼットを直線でつなぐ家事動線を意識する
長方形の間取りは、一直線の配置がしやすい形状です。
キッチンや洗面所、クローゼットなどを同一線上に配置することで、移動のムダが少ない家事動線をつくることができます。
たとえば料理をしながら洗濯機を回し、乾いた衣類をすぐ隣のクローゼットへ収納するなど、同時並行の家事が効率よく進められるため、特に共働きのご夫婦や家事をできるだけコンパクトに済ませたい方にとっては、暮らしやすさを高める重要なポイントとなります。
複数の経路を確保して回遊動線を取り入れる
整った長方形の間取りは、回遊動線を取り入れやすいことがメリットです。
一方向からしか行けない空間にせず、複数の経路をつくることで、家の中の移動がスムーズになります。
たとえば玄関からリビング、洗面室、クローゼット、そして再びキッチンへとつながる動線を確保すると、日々の動きが滞りにくいです。
小さなお子さまがいるご家庭や、複数人で家事をおこなう場合にもストレスを感じにくい間取りを実現できます。
使う場所の近くに収納を設ける収納動線を意識する
収納はスペースも重要ですが、「どこに収納があるか」という点も使いやすさを左右するポイントです。
たとえばキッチン横のパントリー、玄関からつながる土間収納、洗面室近くのタオル収納など、用途に応じた配置が重要になります。
長方形の住まいでは、直線的な動線に合わせて、必要な場所に収納を配置しやすいです。
35坪や40坪など延床面積が広いほど、さらに用途に応じた収納を配置しやすく、片付けや出し入れの手間が少なくなり、日々の暮らしが整いやすくなります。
奥行きのある空間で光と風が通り抜ける設計を工夫する
長方形の形状を活かすことで、家の中に奥行き感のある空間をつくることができます。
南側と北側、または東西をつなぐように窓やドアなどの開口部を設けることで、自然光や風が住宅全体に行き渡りやすくなります。
特にリビングや廊下など、視線が抜ける配置を意識することで、実際の面積以上に広さを感じられる空間になり、ご家族がのびのびと過ごせる住宅を目指せる設計です。
また、視線が遠くまで届くように扉の配置や壁の切り方を調整すれば、室内にいながら外とのつながりを感じるようなつくりも可能です。
間仕切りやフリースペースで将来の使い方の変化に備える
長方形の間取りは空間を等間隔で分けやすく、間仕切りや空間の転用といった設計の自由度が高いのが特徴です。
廊下や壁の位置がシンプルになりやすく、間仕切りを設置したり家具のレイアウトを柔軟に変更したりなどが簡単な点もポイントです。
たとえば、お子さまが小さいうちは広めの子ども部屋を一室で使い、成長に合わせて二部屋に分けるといった間取りの変更もしやすくなります。
また、ホールや階段まわり、廊下の一部にちょっとしたフリースペースを確保しておくと、ご家族のライフスタイルが変わったときにも自然な形で用途を広げることが可能です。
書斎やテレワークスペース、セカンドリビングなど、将来的な使い方の幅を意識して設計することで、長方形の住まいをより長く快適に使い続けることができます。
まとめ
家づくりにおいてバランスのとれた「南玄関×長方形」の組み合わせは、採光や通風、無駄のない動線といった設計上のメリットを活かせるため、ご家族にとってストレスなく暮らしやすい間取りを実現しやすくなります。
これから間取りの設計や延床面積を考える方は、ぜひ今回解説した南玄関や長方形の間取りを意識してみてください。
ご不明点や住宅づくりで心配な点がありましたら、ぜひ鬼丸ハウスにご相談ください。
お問い合わせ Contact
-
鬼丸ハウス本社
〒800-0213
福岡県北九州市小倉南区中曽根東2-13-16093-383-9382(9:00〜18:00)
[営業]9:00~18:00
[定休]なし/GW、お盆、年末年始除く