住まいのコラム Column
ウォークインクローゼットを取り入れるか迷っている場合や、採用は決めたものの広さやレイアウトに悩んでいる場合、まず判断材料となる基礎知識を知っておくことが大切です。
将来的に考えて2帖と3帖のどちらが良いかといった寸法や、レイアウトはどの種類が活用しやすいのかなど、ウォークインクローゼットの検討から採用までに考えるべき点がいくつかあるため、ここでぜひウォークインクローゼットの基礎知識を取り入れてください。
今回は、福岡都市圏及び北九州・山口下関エリアのハウスメーカーの「鬼丸ハウス」が、ウォークインクローゼットの基礎知識や一般的な寸法、レイアウトの選び方などわかりやすく解説します。
ウォークインクローゼットを「採用するかどうか」から「どのように取り入れるか」まで活かせる内容となっているため、理想の収納空間づくりにぜひお役立てください。
Contents
レイアウト別に見るウォークインクローゼットの特徴

ウォークインクローゼットのレイアウトには、大きく分けてI型・Ⅱ型・L字型・コの字型の4種類があります。
最高のマイホームを作るためには、それぞれの特徴やメリット、注意点などを把握しておくことが大切です。
I型|奥行きがなくても取り入れやすいレイアウト

I型(一列型)のウォークインクローゼットは、奥行きのない空間でも取り入れやすいのが特徴です。
収納を壁の一面にまとめるため、狭いスペースでも通路を確保しやすく使いやすいレイアウトです。
ただし収納できる量は少なめで、服や荷物が多い場合は収納スペースが不足する可能性があります。
限られた広さでウォークインクローゼットを設置したい場合に適した、基本的なレイアウトといえます。
Ⅱ型|通路を挟んで両側に収納できるウォークスルー対応レイアウト

通路を挟んで両側に収納スペースを設けられるのがⅡ型(二列型)のウォークインクローゼットです。
左右の壁にハンガーパイプや棚を配置でき、服を種類別に分けたり使う人別に分けたりなど、収納を整理しやすい点がメリットです。
ただしクローゼット内の通路幅が狭いと圧迫感が生じて使い勝手が悪くなるため、適度な広さを確保する必要があります。
また、広めのⅡ型ウォークインクローゼットなどは、通路の両端にドアを付ければ、通り抜けて別の部屋に行けるウォークスルー型のクローゼットとしても活用できます。
L字型|コーナーを活用して収納スペースを確保するレイアウト

L字型のレイアウトは、コーナー部分を活用して収納スペースを確保できることが特徴です。
二方向の壁を使うため、I型より収納量が増えて空間を効率よく活用できます。
クローゼットの間口がさほど広くなくても奥の壁面を使えるので、通路を確保しつつ必要な収納量を満たしやすいのがメリットです。
ただしL字の内側の角はデッドスペースになりやすく、収納力もⅡ型よりやや劣る点に注意が必要です。
コンパクトな空間でできるだけ収納力を確保したい場合に有効なレイアウトといえます。
コの字|収納力抜群でお子さまの成長にも対応したレイアウト

コの字型のウォークインクローゼットは、左右と奥の三方向の壁を使って収納を配置するレイアウトとなっています。
収納力が非常に高く、ご家族みなさまの衣類をまとめて収納するファミリークローゼットとしても最適です。
お子さまの成長に伴い持ち物が増えても余裕を持って対応できる収納量があることがメリットです。
しかしその反面、中央部の通路に十分な広さがないと圧迫感があり使いにくいため、ウォークインクローゼットの面積を確保できることが導入の前提ともいえます。
広めのスペースが確保できる場合は、収納力と使い勝手の面でもっとも充実したレイアウトです。
「十分な収納を確保したいけど予算が心配」という方は、新築住宅のコストダウンの方法を解説したこちらのコラムもおすすめです。
<関連記事>注文住宅で予算オーバー|払えないと後悔しないためのポイントとコストダウンの方法を解説
ウォークインクローゼットの設計前に知っておくべき広さと寸法の基本

ウォークインクローゼットを計画する際は、必要な広さや寸法の目安を押さえておくことが重要です。
一般的なウォークインクローゼットのサイズや、快適に使うための最小限の寸法について把握して、理想のウォークインクローゼットを実現させましょう。
ウォークインクローゼットの一般的な寸法
ウォークインクローゼットは、おおよそ3~5㎡が平均的な寸法で、帖数に換算すると2帖~3帖程度の広さです。
1人あたり約1帖の収納スペースが目安であり、2人暮らしなら約2帖、ご夫婦とお子さま二人のご家族なら約3帖で十分な収納スペースとなります。
ただし収納する衣類の量や持ち物の種類によって適切な広さは変わります。
家族構成やライフスタイルに合わせて、ウォークインクローゼットの寸法を計画しましょう。
収納は大きすぎても良いというものではありません。
ウォークインクローゼットを含め、収納の適切なスペースを知りたい人は、こちらのコラムもぜひ参考にしてみてください。
<関連記事>新築住宅の収納が「多すぎた・少なすぎた」|後悔しないための“収納計画”ポイントと実例を紹介
ウォークインクローゼットを快適に使うための幅
ウォークインクローゼットの寸法を決めるには、先に通路幅と収納スペースの幅をどの程度確保するか考えるべきです。
ウォークインクローゼット内の通路幅は、大人が物に肩を擦らずに通れる約60cmが最低限の幅です。
厚手の衣類などを掛ける場合は、70cm程度の幅で余裕をもって使えます。
収納スペースの幅については、どのレイアウトであっても奥行きが約40cmが必須です。
ではここで、ウォークインクローゼットを作るうえで必要なスペースをレイアウトごとに確認してみましょう。
- I型:約100〜120cm
- Ⅱ型:約150〜180cm
- L字型:約130〜160cm
- コの字型:約160〜200cm
このように、ウォークインクローゼットはレイアウトにより必要なスペースが大きく変わります。
収納量と動線のバランスを考えて、暮らしに合った形を選ぶことが大切です。
福岡都市圏及び北九州・山口下関エリアでマイホームを検討中の方は、ぜひ「鬼丸ハウス」へお問い合わせください。
お客様のご希望に沿ったウォークインクローゼットをもとに、最適のレイアウトをご提案いたします。
広さとレイアウトで見るウォークインクローゼットの実例集

ここからは、施工事例の中から、約2帖~3帖のウォークインクローゼットに採用された4つの実例を紹介します。
実際の暮らしをイメージしながら、自宅に取り入れる際のヒントとしてお役立てください。
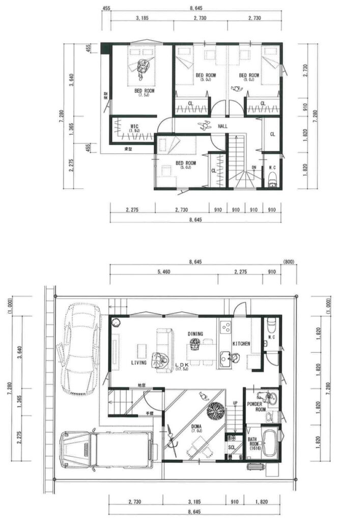
【1.9帖・コの字のウォークインクローゼット】ご夫婦で使える大容量

こちらの事例は、1.9帖(約3㎡)という限られた寸法の中に、三方向の壁面をフルに活用したコの字レイアウトを採用したウォークインクローゼットです。
2階の主寝室に隣接しており、左右の壁にハンガーパイプを取り付けることで、ご夫婦それぞれが使いやすい収納ゾーンを確保できるつくりとなっています。
正面奥の壁は棚収納としても活用でき、衣類や雑貨を効率よく収められる構成です。
コの字型は収納量が非常に多く、将来お子さまが大きくなって物が増えても対応しやすい点も魅力です。
中央には十分な通路幅が確保されており、出入りのしやすさにも配慮された設計で、動きにくさも感じません。
【1.9帖・L字型のウォークインクローゼット】朝の支度が寝室で完結

こちらも同じく、2階の主寝室に1.9帖のウォークインクローゼットを採用した事例です。
出入口に対して直角に折れるように設置されたL字レイアウトは、入口から奥までの視線が分散する見通しの良い設計になっているため、実際の奥行きに対して広さを感じる空間となっています。
寝室に直結する位置に設けられていて、起きてすぐに着替えるという流れがスムーズに済ませられる設計です。
通路幅もしっかり確保されており、朝の準備が二人同時に重なっても快適に使用できます。
【2.2帖・Ⅱ型のウォークインクローゼット】家事動線と収納力を両立

こちらは2.2帖のウォークインクローゼットを、主寝室と浴室の隣に配置した事例です。
Ⅱ型は通路を挟んで両側に収納できるため、ご家族全員の衣類を種類ごと・人ごとに分けて収納するのに適しています。
通路も十分な幅があり、両側に服を掛けても圧迫感がありません。
またこの間取りは家事動線を強く意識しており、ランドリールームや脱衣所、洗面所が一直線になっています。
ウォークインクローゼットも近くに配置されているため、乾かした洗濯物をすぐに収納できるという動線も考慮されたつくりとなっています。
【2.63帖・I+Ⅱ型のウォークインクローゼット】ご家族共有で使える回遊型

約2.63帖(約4.3㎡)と十分な寸法を活かした、I型とⅡ型を組み合わせた複合レイアウトのウォークインクローゼットです。
入口から片側だけに収納があるI型、奥に進むと両側に収納が並ぶⅡ型と、場所によって使い方が分かれており、ご家族それぞれが使いやすい構成となっています。
またこの事例のウォークインクローゼットは、2方向に出入口があるウォークスルー対応であり、主寝室と廊下をつなぐ回遊動線が特徴です。
廊下から入って寝室側へ抜けられる動線は、朝の身支度や帰宅後の着替えなど日常の流れをスムーズにサポートします。
この間取りのように出入り口が2箇所あるタイプは、ファミリークローゼットとしても最適であり、親子で同時に使うシーンが想定されるご家庭でも、動線が重ならずストレスなく使えます。
家事動線を意識した住宅を建てたい方は、ランドリールーム周辺の家事動線について解説しているこちらのコラムもおすすめです。
<関連記事>家事動線が良いランドリールームの間取り図と実例|平屋・二階建てのアイデアをご紹介
また、鬼丸ハウスには今回紹介しきれなった事例がまだいくつもあります。
ウォークインクローゼットのみでなく、全体の内装も気になる方は、ぜひ建築事例もご覧ください。
ウォークインクローゼットを快適に使うための工夫

ウォークインクローゼットは、ただ広いだけでは快適に使えません。
毎日の暮らしにストレスなくフィットさせるためには、照明・防音・換気といった基本的な工夫も必要です。
以下の3つのポイントをチェックして、快適な収納空間を整えましょう。
最適な照明とスイッチの位置
ウォークインクローゼット内の明るさは、日々の使いやすさを大きく左右する重要なポイントです。
I型やL字型のコンパクトなウォークインクローゼットには、天井の中央にシーリングライトがあることで十分な明るさを確保できます。
一方でⅡ型やコの字型など広めのレイアウトでは、中央のみでなく間接照明を用いたりといった、複数の光源を使うと効果的です。
またウォークインクローゼット内のスイッチに関しては、次のような工夫が挙げられます。
- クローゼットの外側にすると出入りがスムーズ
- 人感センサー付きにすると消し忘れの防止
- ウォークスルー対応の場合はどちらの入り口にもスイッチを付ける
このように、ウォークインクローゼットの照明はレイアウトと使う人に合わせて設計することが大切です。
壁や扉の防音対策
ウォークインクローゼットを検討している方に、意外と見落とされがちなのが音の問題です。
たとえば寝室と直結しているウォークインクローゼットでは、深夜や早朝の物音がご家族の睡眠を妨げる可能性があります。
深夜や早朝でも快適にウォークインクローゼットを使うための工夫は、次のとおりです。
- クッション付きの引き戸で開閉音を軽減
- クローゼット内に吸音材を貼り簡易防音
- ハンガーや棚を金属製からプラスチックに変更
住んでから気づきやすいポイントの一つに、「衣類を選ぶだけなのに音が気になる」といったストレスも挙げられるため、防音対策は生活における快適性を上げるための一歩になります。
湿気を防ぐ換気方法と設備選び
ウォークインクローゼット内は空気がこもりやすく、特に梅雨や夏場は湿気によるカビやニオイの原因になります。
湿気対策に有効な方法は次のとおりです。
- 換気扇を設ける(空気の流れを作る)
- 引き戸や折れ戸で常時開けておく
- 湿気を吸ったり放出したりする調湿建材を導入する
- 通気口付き扉を選ぶ
ウォークインクローゼットは、設置する位置や周囲の部屋との関係によっても、湿気がこもりやすくなることがあります。
たとえば、外壁に面していない内側の部屋に配置されている場合は、より意識的な換気対策が必要です。
湿気は後から対策することも可能ですが、設計段階から換気計画を立てることで、より効果的な対策となり、大切な衣類を長く清潔に保つことができます。
ウォークイン以外のクローゼットの種類

収納全般にこだわりたい人は、ウォークインクローゼット以外の収納タイプの基礎知識も知っておきましょう。
ライフスタイルや部屋の配置に合った寸法で、使いやすく管理しやすい収納を選ぶことが、満足度の高い家づくりにつながります。
ここからは、スペースの広さに応じて選べる多様な収納をいくつかご紹介します。
壁面クローゼット(壁付け収納)
一般的な収納の中でもっともオーソドックスで導入しやすい壁面クローゼットは、次のような特徴があります。
- 狭い個室でも設置しやすい
- 費用も比較的安価
- 収納量はウォークインクローゼットに劣る
幅の調整も幅広く、90cm〜270cmほどで設計され、奥行きは45~60cmが一般的です。
クローゼット内にはハンガーパイプと棚板を設けて、服やカバン、季節用品まで一通り収まります。
数を多く設置できる壁面クローゼットは、それぞれ誰が使うか、何を入れるかをあらかじめ明確にすることで、見た目も使い勝手も良い収納ができあがります。
ファミリークローゼット
ファミリークローゼットとは、廊下や洗面近くなどに設けるタイプの、ご家族全員が共有する大型クローゼットで、特徴は次のとおりです。
- ご家族全員の服を一か所で管理できる
- 物を使う人や用途ごとに分けやすい
- 設置にはある程度の面積が求められる
近年ではウォークスルータイプとして、寝室・水回り・廊下をつなぐ回遊動線の一部に組み込まれることも増えています。
収納内部のレイアウトも自由度が高く、ご家族ごとにハンガーゾーンを分けたり、棚を使ってカゴ収納を活用したりなどの工夫で、衣替えも最小限の手間で済みます。
「部屋ごとに収納が分かれていると片付けが面倒」という家事動線を重視したい方にこそおすすめのクローゼットです。
目的別の専門収納
服のみでなく、靴やタオルなどの収納も検討している方は、目的別収納に特化したスペースを設けるのもおすすめです。
以下は、多くの家庭で採用されているクローゼットの代表例をまとめたものになります。
- シューズクローク:傘や靴など外用の物
- パントリー:食品や日用品など
- リネン庫:タオルや下着など
家族構成や暮らし方に合わせて、ウォークインクローゼットがベストな選択肢なのか、それとも別のクローゼットのみでも快適に暮らせるかといった点を比較することが、後悔のない収納づくりにつながります。
福岡都市圏及び北九州・山口下関エリアでマイホームを検討中の方は、ぜひ「鬼丸ハウス」へお問い合わせください。
どのクローゼットを導入すべきか決まらない場合でも、お客様のご希望に沿った収納プランから最適なクローゼットや間取りをご提案いたします。
まとめ
ウォークインクローゼットを取り入れる際は、2帖・3帖といった寸法の違いや、I型・Ⅱ型・L字・コの字といったレイアウトごとの特徴を把握することが大切です。
ウォークインクローゼット内の湿気対策や照明などは施工後でも調整可能ですが、収納量や動線の使いやすさなどは、間取りを設計する時点で考えるべきポイントともいえます。
事例を参考にしながら寸法計画を立てて、将来もストレスなく使えるような収納空間の実現を目指しましょう。
お問い合わせ Contact
-
鬼丸ハウス本社
〒800-0213
福岡県北九州市小倉南区中曽根東2-13-16093-383-9382(9:00〜18:00)
[営業]9:00~18:00
[定休]なし/GW、お盆、年末年始除く