住まいのコラム Column
「家族みんなが安心して、心地よく暮らせる家を建てたい」そんな願いをかなえる住まいの形として、横長の敷地を活かした南玄関の平屋が注目されています。
横長の平屋は、自然光や風をたっぷり取り込みながら、家事動線や収納計画も工夫しやすい理想的な間取りが可能です。
そこで今回は福岡都市圏及び北九州・山口下関エリアのハウスメーカー『鬼丸ハウス』が、多くの施工実例の中から、「横長の平屋×南玄関」の間取り実例を紹介します。
快適な家事動線や効率的な空間活用、将来を見据えた設計のポイントについても詳しく解説するので、ぜひ最後までごらんください。
福岡都市圏及び北九州・山口下関エリアでマイホームを検討中の方は、『鬼丸ハウス』へお問い合わせください。
お客様一人ひとりの理想を大切に、魅力あふれる住まいづくりをお手伝いします。
南玄関にぴったりな横長平屋の間取り実例4選
ここからは、施工実例の中から、南向きの玄関を採用した横長タイプの平屋の間取り実例4選を紹介します。
それぞれ暮らしやすさに焦点を合わせてお届けするので、ぜひ参考にしてください。
【3LDK×変形地】開放感たっぷりの横長平屋プラン

こちらは、変形地を上手に活かし、南東の玄関から明るいLDKへとつながる導線が印象的な平屋プランです。
南側に大きく面したリビングとダイニングは、窓から光がたっぷりと差し込み、日中は電気いらずで過ごせるほどの明るさを確保しています。
各個室は北側にまとめられ、プライベートと共有スペースのバランスがしっかりと考えられた構成になっています。
変形した敷地の中でも、開放感と機能性の両立を叶える、快適で工夫に満ちた住まいです。
【4LDK×収納充実】ご家族が自然とつながる横長平屋プラン
.jpg)
こちらの平屋は、南向きのLDKを中心に、すべての空間がつながるように配置した間取りです。
玄関からLDKまで視線がまっすぐ抜けることで、明るく広がりのある印象を与えます。
さらに、家の中央にLDKを配置することで、どの部屋からもアクセスしやすく、ご家族の動線が交差しやすい設計です。
3つの洋室と主寝室は一直線に並んでおり、それぞれのプライベート空間も確保できるように工夫されています。
ウォークインクローゼットやパントリー、シューズインクローゼットなどの収納も充実しており、暮らしやすさを細部まで追求した住まいです。
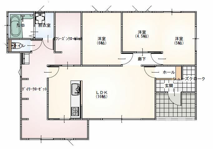
【3LDK×回遊動線】自然光あふれる快適な横長平屋プラン

こちらは、南玄関を入ってすぐにLDKが広がる設計で、家に入った瞬間から明るく開放的な印象を受ける間取りです。
LDKを中心に各部屋が展開されており、ご家族のつながりを感じながらもプライベートな空間をしっかりと確保しています。
脱衣室とランドリースペース、そして大容量のデイリークローゼットが一直線に配置されているため、家事動線がスムーズで効率的です。
室内全体に自然光が行き届く構成となっており、朝の支度から夜のくつろぎ時間まで、心地よく過ごせる工夫が詰まっています。
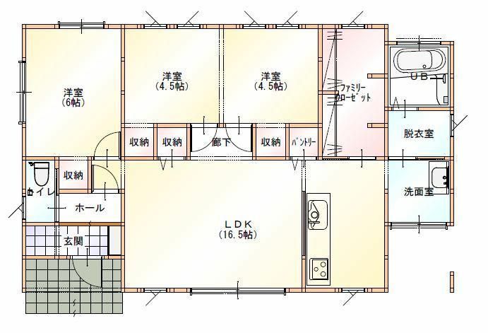
【3LDK×家事ラク設計】収納と動線を整えた暮らしやすい平屋プラン

こちらは、南玄関から一直線に広がるLDKで、ご家族が自然と集まる開放的な空間になっている間取りです。
横長の形状を活かして個室や水まわり、収納スペースをバランスよく配置することで、生活動線がスムーズになるよう工夫されています。
キッチン横にはパントリーとファミリークローゼットを備え、使いやすさと片付けやすさを両立している点もポイントです。
居室を南側に集めることで、日当たりの良い住まいになっており、毎日の暮らしを気持ちよく支えてくれます。
鬼丸ハウスには、今回紹介しきれなかった実例がまだたくさんあります。ぜひごらんください。
福岡都市圏及び北九州・山口下関エリアでマイホームを検討中の方は、『鬼丸ハウス』へお問い合わせください。
横長の平屋に南玄関を採用するメリット
ここからは、「横長の平屋×南玄関」の組み合わせがもたらす、具体的なメリットについて紹介します。
快適な空間を実現するポイントが隠されているので、チェックしてみましょう。
自然光を取り込みやすく、明るい住まいが実現
南玄関を採用した横長の平屋は、リビングや個室にたっぷりと自然光を取り込めるのが大きな魅力です。
南側に大きな開口部を設けることで、家の奥まで光が届き、どの部屋も明るく快適な空間に仕上がります。
日中は照明に頼ることなく、心地よい自然の明るさの中で過ごすことができるため、省エネ効果にも貢献します。
土地を有効活用できる間取り設計がしやすい
横に広がる敷地形状を活かせるのも、横長平屋の大きなメリットです。
間口を広くとれるため、リビングだけでなく寝室や子ども部屋、和室まですべての居室を南向きに並べることも可能です。
全室に自然光を取り込みながら、無駄なく効率的なレイアウトを実現し、土地の特性を最大限に活かした設計ができます。
外観バランスが整い、スタイリッシュな印象に
横長の平屋に南玄関を採用すると、建物正面に玄関と大きな窓をバランスよく配置しやすくなります。
間取りに合わせて外観デザインを整えられるため、正面から見たときにリズム感のある、美しいシルエットに仕上がります。
シンプルながら洗練された印象を与えることができ、長く住み続けても飽きのこない外観デザインが叶います。
横長の平屋で快適に暮らすためのポイント
横長の平屋でより快適に過ごすためには、動線や収納、空間のつながりに工夫を凝らすことが大切です。
ここからは、横長の平屋で暮らしやすさを高めるための具体的なポイントをご紹介します。
一直線の水まわり配置で家事動線を短縮
「キッチン・洗面所・浴室・トイレ」といった水まわりを一直線に並べることで、移動距離が短くなり、日々の家事負担が大きく軽減されます。
横長の平屋なら、このような直線的な配置が取りやすいため、効率の良い動線が自然と実現できます。
特に共働き世帯や子育て中のご家庭にとって、少ない動きで家事が済む設計は非常に魅力的です。
収納動線をまとめて家事をラクに
「洗濯・干す・たたむ・しまう」という家事の流れを一か所で完結できるように、収納と水まわりを近くにまとめる設計が人気を集めています。
例えば、ランドリールームの隣にファミリークローゼットを配置すれば、洗濯後すぐに片付けられるため、移動の手間が大きく減り、家事がぐんとスムーズになります。
横長の平屋は間取りの自由度が高いため、こうした効率的な家事動線も実現しやすいのが特徴です。
行き止まりのない回遊動線でストレスフリー
横長の平屋なら、廊下や部屋の配置を工夫して、家の中をぐるっと一周できる「回遊動線」を取り入れることも可能です。
キッチンから洗面室、リビングへとスムーズに移動できるため、家事をしながら別の用事を同時進行することができ、忙しい毎日をしっかり支えてくれます。
お子さまにとっても、家中を自由に動き回れる楽しさがあり、のびのびと成長できる環境をつくれます。
行き止まりがないことで人の動きに無駄がなくなり、ご家族それぞれがストレスなく暮らせます。
こうした快適さも、回遊動線が選ばれる大きな理由の一つです。
ご家族全員が安心して暮らせる平屋の魅力
平屋はすべての空間がワンフロアにあるため、小さなお子さまからご高齢の方まで、誰にとってもやさしい住まいです。
将来を見据えた選択肢として注目されている平屋の魅力を、もう少し掘り下げてみましょう。
子育て中でも目が届きやすく安心して見守れる
平屋は上下階の移動がなく、すべての部屋がワンフロアに収まっているため、お子さまがどこにいても目が届きやすくなります。
LDKから個室までの距離が近く、遊んでいる様子や昼寝中の様子も自然と見守ることができます。
特に乳幼児期や小学校低学年のお子さまがいるご家庭では、日常のちょっとした安心感が大きな支えになります。
親子の距離を近く保ちながら、安心して子育てができる住まいです。
バリアフリー設計で転倒リスクを軽減
横に広がるワンフロアの平屋は、段差をなくしやすく、バリアフリー設計との相性が抜群です。
玄関からリビング、水まわりまでつながる動線を確保できるため、移動がスムーズになり、転倒リスクを大幅に軽減できます。
将来のライフステージを見据えた住まいづくりを考えるうえでも、横長の平屋は大きな安心感をもたらしてくれます。
ご家族の気配を感じながら自然とつながれる暮らし
横長に広がる平屋は、どの部屋も無理なく並列に配置できるため、ご家族同士の距離を近く保ちながら、それぞれが心地よく過ごせる空間をつくりやすいのが特徴です。
リビングを中心に、各個室が緩やかにつながるレイアウトにすれば、声や気配が自然と届き、ご家族の存在をいつも身近に感じることができます。
自然なコミュニケーションが生まれ、安心感に包まれた暮らしが叶います。
ライフステージに応じて暮らしを柔軟に変えられる
横長の平屋は、部屋が横一列に並ぶため、将来のライフスタイルの変化にも柔軟に対応できます。
例えば、子ども部屋だったスペースを趣味部屋や書斎に変えたり、ご両親との同居に合わせて間取りを調整したりと、暮らしに合わせたリフォームがしやすい点も魅力です。
使い方に幅があることで、長く快適に住み続けられる住まいになります。
災害時の避難もスムーズなワンフロア設計
すべての生活空間がワンフロアにまとまっている横長の平屋は、万一の災害時にもスムーズに避難できます。
南玄関を含め、複数の出入口や窓にアクセスしやすい設計にしておくことで、どの部屋からも短い距離で屋外へ脱出することが可能です。
特に小さなお子さまやご高齢の方がいるご家庭にとっては、素早く安全に避難できる安心感が大きなメリットになります。
まとめ
横長の平屋に南玄関を採用することで、光や風を取り込みながら、家事動線やご家族のつながりにも配慮した快適な住まいが実現できます。
土地の形状を最大限に活かし、ライフステージの変化にも柔軟に対応できる横長平屋は、これからの理想の暮らし方にぴったりの選択肢です。
福岡都市圏及び北九州・山口下関エリアで、あなただけの理想の住まいを形にしたい方は、注文住宅の実績豊富な『鬼丸ハウス』にぜひご相談ください。
光あふれる開放的な暮らし、ご家族みんなが心から安心できる住まいを、私たちと一緒に形にしていきましょう。
お問い合わせ Contact
-
鬼丸ハウス本社
〒800-0213
福岡県北九州市小倉南区中曽根東2-13-16093-383-9382(9:00〜18:00)
[営業]9:00~18:00
[定休]なし/GW、お盆、年末年始除く