住まいのコラム Column
大切なゲストを迎える「とっておきの空間」として、根強い人気があるのが和室の客間です。
一方で、「おしゃれな和室にしたいけど、古臭くならないか心配」「普段はどのように活用できるのかイメージできない」といったお悩みもよく聞かれます。
ゲストをもてなす和室は、一工夫を加えることで、日々の暮らしにも役立つ“万能な空間”に変えることが可能です。
そこで今回は福岡都市圏及び北九州・山口下関エリアのハウスメーカー『鬼丸ハウス』が、多くの施工実例の中から、客間にぴったりな和室の間取り実例を紹介します。
広さの目安や、和室の魅力を引き出すインテリアのポイントについても詳しく解説するので、ぜひ最後までごらんください。
福岡都市圏及び北九州・山口下関エリアでマイホームを検討中の方は、『鬼丸ハウス』へお問い合わせください。
お客様一人ひとりの理想を大切に、世界に一つだけの和室づくりをお手伝いします。
客間として活用しやすい和室|間取り実例5選
ここからは、施工実例の中から、客間としての魅力あふれる和室の間取り実例5選を紹介します。 さまざまな工夫が施された、こだわりの和室をチェックしてみてください。
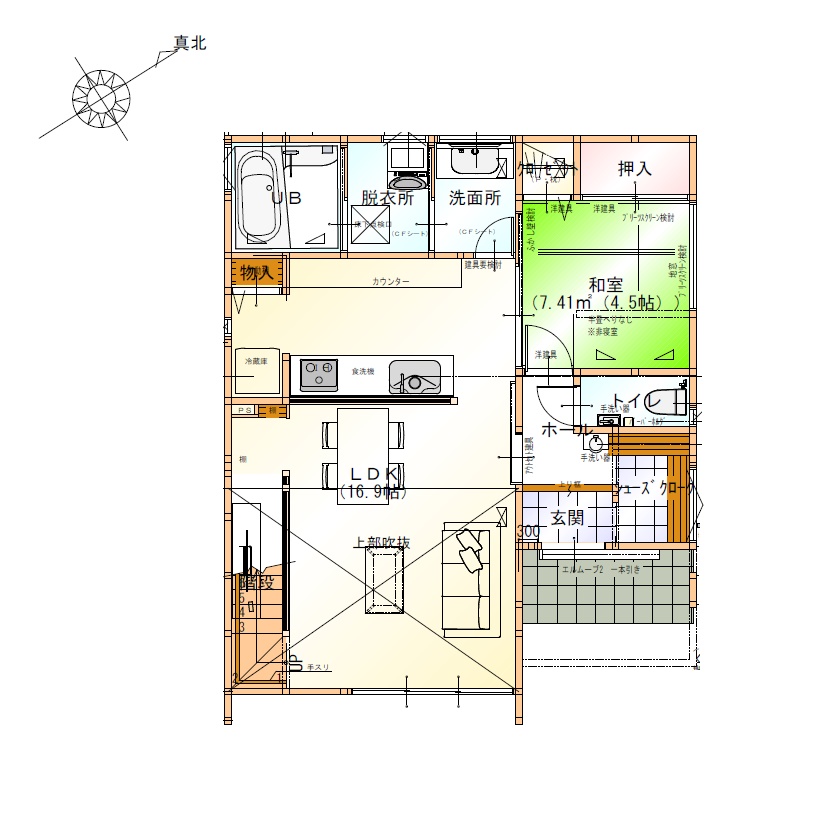
【4.5帖】リビング続きの和室|多目的に使えるくつろぎ空間

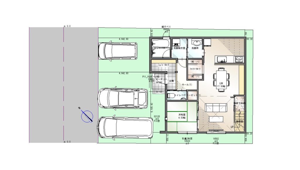
こちらの和室は、LDKに隣接する4.5帖の間取りです。
普段はご家族のくつろぎスペースとして、来客時には応接や仮の寝室としても活躍します。
引き戸で仕切れば個室として使えるため、ライフスタイルに応じた使い分けが可能です。
リビングとつながっていることで、ご家族の気配を感じながら落ち着ける空間となっており、小さなお子さまのお昼寝スペースや、将来的な仏間としても役立ちます。
トイレが近くにある点も、ゲストが快適に過ごせるポイントです。
【4.5帖】落ち着ける配置の和室|くつろぎとおもてなしを叶える和室


こちらの4.5帖の和室は、普段は家族のくつろぎスペースとして、来客時には応接間や仮の宿泊スペースとしても活用できます。
生活感の出やすいダイニングキッチンと程よい距離があるため、ゲストにも気兼ねなく過ごしてもらえる設計です。
押入れ収納も完備しているので、布団や座布団をすっきり収納しておけます。
日常使いと来客対応、どちらにも頼れる、使い勝手のよい和室です。
【4.5帖】インナーテラスとつながる和室|光あふれる癒しの空間


こちらの4.5帖の和室は、インナーテラスに面しており、自然光を取り込みながら静かに過ごせる落ち着いた空間となっています。
インナーテラス側からの採光で明るく、室内にいながら外の空気感を感じられるのも魅力です。
扉を開ければリビングと一体化し、お子さまの遊び場や家事中の見守りスペースとしてもぴったりです。
収納スペースも完備されており、客間として使う際も安心。生活の中心にありながら、ほっと一息つける“癒しの和室”です。
【4.5帖】水まわりにも配慮|実用性に優れた客間スペース


LDKに隣接しながらも、玄関ホールやトイレ・洗面所にも近い4.5帖の和室は、来客時にも日常使いにも対応できる実用的な設計です。
キッチンからの目線が届きやすいため、お子さまの遊び場や家事の合間の休憩スペースとしても活躍します。
加えて押入れ収納も備わっており、布団や座布団をしまっておけば、急な宿泊客にもすぐに対応可能です。
動線のよさと多用途性を兼ね備えた、まさに“頼れる一室”です。
【3.1帖】LDKに映える畳コーナー|見た目も機能も兼ね備えた和モダン空間


LDKの一角に設けられた3.1帖の畳コーナーは、和モダンな雰囲気を演出しながら、客間としての実用性も兼ね備えた“見せる和室”です。
フチなしの琉球畳や落ち着いたトーンのカラー畳を選べば、LDKとの一体感を損なうことなく、空間に上質なアクセントを添えられます。
普段はお子さまと一緒にくつろいだり、和風インテリアを楽しんだりと自由に使いながら、来客時には座布団を出して応接スペースに切り替えることができます。
収納も近くにあるため、布団を準備しておけば急な宿泊にも対応可能です。
鬼丸ハウスには、今回紹介しきれなかった実例がまだたくさんあります。ぜひごらんください。
福岡都市圏及び北九州・山口下関エリアでマイホームを検討中の方は、『鬼丸ハウス』へお問い合わせください。
和モダンでおしゃれな客間を実現|インテリアの3つのポイント
ここからは、おしゃれな和室の客間をつくるインテリアについて解説します。
暮らしになじむ素敵な和室の客間をつくるには、現代的なテイストと和の要素をうまく組み合わせることが大切です。
和モダンのテイストで空間を洗練させる
和室をおしゃれに仕上げたいなら、「和モダン」スタイルがおすすめです。
「和モダン」スタイルとは、現代的なテイストと和の雰囲気を融合させたデザインのことです。
一例ですが、以下のような工夫を取り入れると、古臭さを感じさせない洗練された空間に仕上がります。
- 畳の色をグレーやベージュなど中間色に変更
- 天井・壁を白やグレーで統一し、抜け感を演出
- 障子の代わりにロールスクリーンやプリーツスクリーンを採用
- 木製家具は濃いブラウンより明るめのカラーでそろえる
このようなポイントを押さえると、ゲストにも「今どきの和室で素敵!」と感じてもらえる、センスのいい和室が実現できます。
照明やカーテンで雰囲気を整える
和室の印象は、照明やカーテンといった細かなアイテムでも大きく変わります。
<照明使いのポイント>
- 和紙製のペンダントライトで和の雰囲気をアップさせる
- 間接照明のやさしい陰影で落ち着いた空間を演出する
<カーテンの選び方>
- 麻や綿など、自然素材に近い生地で和室の雰囲気に合わせる
- 色味はベージュやグレージュなど、畳や木の色になじむトーンを選ぶ
- ロールスクリーンやプリーツスクリーンにすると、シャープでモダンな印象に
細かいポイントを押さえると、統一感が出て和室が一気に「整った空間」になります。
壁材と床材の工夫で上質な部屋に仕上げる
壁や床の素材は、部屋全体の印象と快適性を左右します。
和室の客間は、落ち着いた雰囲気と清潔感が求められるため、見た目だけでなく機能性も意識した素材選びがポイントです。
<おすすめの壁材>
| 壁材 | 特徴 | 向いている家庭 |
| エコカラット | 湿気・においを吸収し、デザイン性も高い | モダンな和室にしたい方 |
| 漆喰(しっくい) | 調湿・消臭効果あり。自然素材でやさしい質感 | 小さなお子さまやシニア世代がいる家庭 |
| 珪藻土 | 調湿機能+ナチュラルな見た目 | 自然派志向の方、DIYにも◎ |
特に漆喰は、昔ながらの土壁のような風合いがあり、呼吸する壁として和室に非常によく合います。
職人の手仕事による独特の質感も魅力ですが、施工にはやや高度な技術が必要なため、プロに依頼するのが安心です。
<畳の選び方>
| 畳の種類 | 特徴 | 見た目 |
| フチあり畳 | 一般的、落ち着いた印象 | クラシックな和室に最適 |
| 琉球畳(フチなし) | モダンな印象、洋風の家具にも合う | スッキリとしたデザイン |
| カラー畳 | グレー・ベージュなど色が豊富 | 和モダンに最適でインテリアと調和しやすい |
畳の種類は、インテリアとの統一感を意識するとより上質な仕上がりになります。
琉球畳やカラー畳を取り入れると一気に現代的な印象に変わるので、スタイリッシュな客間を目指す方におすすめです。
理想の空間づくりには、ぜひプロの提案を取り入れてみてください。
和室の客間は何帖がベストなのか
客間として使う和室の広さは、使い方や来客のスタイルによってベストなサイズが変わります。
無駄なく快適に使うために、広さの目安を知っておくことが大切です。
4.5帖・6帖・8帖の広さを用途で比較する
和室の客間を設ける際、帖数は「4.5帖」「6帖」「8帖」から選ばれることが一般的です。
それぞれの広さに向いている用途が異なるため、まずは帖数ごとの使い方を整理しておくと、間取りのイメージがしやすくなります。
<帖数ごとの使い方比較表>
| 広さ | 向いている用途 | 特徴 |
| 4.5帖 | 応接スペース、仏間 | コンパクトで設計しやすい。布団は1組ギリギリ程度。 |
| 6帖 | 宿泊対応の客間 | 一人分の布団を敷けて荷物も置ける。標準的な広さ。 |
| 8帖 | 家族・複数人の来客用 | ゆったり空間。床の間や収納も配置できる余裕あり。 |
広さだけでなく、部屋としての「役割」を考えると最適な帖数が見えてきます。
来客スタイルに合わせて広さを選ぶ
間取りを決める際は、どんな来客が、どのくらいの頻度で訪れるのかを考えることが重要です。
「何帖にするか」で迷ったら、具体的な使い方を想像してみましょう。
- 泊まりはなく、お茶出し程度の応接が中心 → 4.5帖でも十分
空間を最小限に抑え、ほかの部屋に面積を割ける。
- 親族が年に数回泊まる程度 → 6帖が目安
布団を敷いても余裕があり、日常使いにも支障が出にくい。
- 友人家族や祖父母が泊まりに来る機会が多い → 8帖あると安心
寝具+荷物+くつろぎスペースを確保できる。
このように、ライフスタイルと来客状況を軸に考えると、必要以上に広い部屋をつくらずに済みます。
迷ったら、まずは鬼丸ハウスの専門家にご相談ください。
お客様のライフスタイルに合わせて最適な広さをご提案します。
客間として使わないときも活かせる空間にする
普段は使わない客間でも、空間を無駄にしない工夫をしておけば、日常生活にも役立ちます。
例えば、押入れや収納を設けて納戸代わりに使ったり、リモートワークや趣味の部屋にしたりといった活用法があります。
柔軟に使い方を変えられる空間設計を意識すれば、「客間=使わない部屋」ではなく、「多目的に活かせる部屋」になります。
こうした工夫を重ねることで、住まい全体の満足度も自然と高まっていきます。
まとめ
和室の客間は、設計の工夫次第で「おしゃれ」で「実用的」な空間になります。
しかし、帖数やインテリア、使い方の見極めにはプロの視点が欠かせません。
一見シンプルに見える和室でも、配置や動線によって快適さは大きく変わります。
収納や照明、細かな素材選びまでトータルで考えることで、長く愛せる空間に仕上がります。
福岡都市圏及び北九州・山口下関エリアで理想の間取りや雰囲気を形にしたい方は、注文住宅の実績豊富な『鬼丸ハウス』にぜひご相談ください。
ライフスタイルや家族構成に合った客間づくりを、一緒に実現できます。
お問い合わせ Contact
-
鬼丸ハウス本社
〒800-0213
福岡県北九州市小倉南区中曽根東2-13-16093-383-9382(9:00〜18:00)
[営業]9:00~18:00
[定休]なし/GW、お盆、年末年始除く