住まいのコラム Column
収納のボリュームや広さが多すぎるとデッドスペースとなり、少なすぎるとうまく収納できず雑然とした印象になってしまいます。
しかし、間取りを考える際にどのくらいの収納が適切なのか分かりにくい点は否めません。
そこで今回は福岡都市圏及び北九州・山口下関エリアのハウスメーカー『鬼丸ハウス』が、戸建の収納率目安や収納計画のポイント、施工実例で見るおすすめの収納アイデアについて詳しく解説します。
「片付けやすい家」「すっきりときれいに見える家」「いつでも人を招ける家」を建てたい方は、ぜひ最後までごらんください。
Contents
住宅の収納スペースはどのくらい?|収納率・広さの目安

住宅の収納プランを検討する際に重要となるのが「収納率」です。
収納率(%)=(収納スペースの床面積/延べ床面積)×100
一般的には、戸建住宅は10〜15%、マンションは8〜10%程度が理想とされています。
この収納率を踏まえると、収納スペースに当てる床面積は以下の通りです。
| 延べ床面積 | 収納総床面積の目安 |
|---|---|
| 30坪(99㎡) | 3〜4.5坪 (9.9〜14.85㎡・6〜9帖) |
| 40坪(132㎡) | 4〜6坪 (13.2〜19.8㎡・8〜12帖) |
| 50坪(165㎡) | 5〜7.5坪 (16.5〜24.75㎡・10〜15帖) |
ここから、それぞれの収納別に広さの目安を深掘りします。
| 部屋・空間 | 収納広さ目安 |
|---|---|
| 寝室・子供室(クローゼット) | 0.5坪(1帖)/人 |
| リビング | リビングの床面積×10〜15% |
| キッチンパントリー | 0.5〜1坪(1〜2帖) |
| 洗面脱衣室・ユーティリティルーム・ランドリールーム | 0.25〜0.4坪(0.5〜0.8帖) |
| 書斎・ワークスペース・趣味の部屋 | 0.25〜0.5坪(0.5〜1帖) |
| 玄関のシューズインクローゼット | 0.5〜1坪(1〜2帖) |
これらの面積目安を基準に「荷物が多い・少ない」を確認して、収納スペースのボリュームを決めましょう。
福岡都市圏及び北九州・山口下関エリアでマイホームを検討中の方は、鬼丸ハウスへお問い合わせください。
ご家族の要望を丁寧に伺い、土地探しから住宅のプランニングまでしっかりサポートいたします。
どんな収納が必要か|スペースのチェックリスト

パントリーやシューズインクローゼット、ウォークインクローゼットなど、近年多くの住宅に取り入れられる収納空間は多いですが、みなさんにその全てが必要とは限りません。
まず、それぞれの空間特性としまえるものを確認して、どこまで間取りに取り入れるか確認しましょう。
| 収納空間 | 収納するものの例 |
|---|---|
| 各部屋のクローゼット | 洋服やカバン 布団 その他雑物 |
| ウォークインクローゼット ファミリークローゼット | 洋服やカバン 布団 アウトドア用品 季節のアイテム その他雑物 |
| リビング収納 階段下収納 | 本や文房具 PC関連(プリンターなど) 小さなお子様のおもちゃなど 防災グッズ 掃除用具および関連する物 その他雑物 |
| キッチンパントリー | 食材 日用消耗品(トイレットペーパーやゴミ袋など) 防災グッズ(飲料水・保存食含む) キッチン家電(電子レンジやブレンダーなど) ゴミ箱 |
| 洗面脱衣室・ユーティリティルーム・ランドリールーム | タオル 日用消耗品(トイレットペーパーや洗剤など) |
| 玄関のシューズインクローゼット | ・靴 ・お子様の遊具 ・アウトドア用品 ・ガーデニング用品 ・ベビーカーや自転車 ・日常的に持つバッグやランドセル ・日常的に着るコート ・防災グッズ(飲料水・保存食含む) ・日用消耗品(トイレットペーパーや洗剤など) |
| 小屋裏収納 | ・アウトドア用品 ・季節のアイテム ・その他雑物 |
| 床下収納 | ・飲料水や保存食 ・日用消耗品(トイレットペーパーや洗剤など) |
小屋裏収納や床下収納は簡単にアクセスできず、大きな物・重い物を出し入れするのが大変なので注意しましょう。
ポイントは、ご自身の生活にどの収納空間が必要か見極める点です。
- アウトドアはしない・夫婦暮らしである▶︎「シューズインクローゼットは必要ない」
- 小さなお子様がいる▶︎「シューズインクローゼット・パントリーを広めにする」
- 共働きで週末に食料や日用品をまとめ買いする▶︎「シューズインクローゼット・パントリーを広めにして、床下収納も作る」
このように、家族構成やライフスタイルによって適切な収納計画は異なります。
鬼丸ハウスは、自由なプランニングが可能な「注文住宅」、3つのグレードからお選びいただけるセミカスタマイズ可能な「規格住宅」、最高品質の高気密・高断熱性をもつ「建売住宅」の全てを手掛けています。
注文住宅の新築を後悔しないための“収納計画”ポイントと考え方

「収納計画」とは、家のプランニングにおいて収納を「どこに・どのくらいの広さで・どのような設えやデザインで」配置するかを検討するステップです。
国土交通省が公表しているアンケート調査によると、住宅に対する不満の理由で「収納の多さ・使い勝手」と回答した人は全体の33.1%にものぼっていることからも、収納計画の重要性が分かります。
家の収納について考える際にポイントとなるのが、「多ければいい・あればいい」とは限らないという点です。
収納計画を検討する際は、以下の点を念頭に入れておくと考えやすくなります。
- 物を使う場所の近くに収納場所を設ける
- 収納が多すぎると、物が増えて片付けにくくなる
- 収納が多すぎると、デッドスペースになる
- 生活ルーティンに沿って収納を設けると、家事の負担が減る
- 収納は場所や広さだけではなく、内部の設えも重要
では、具体的に収納計画を考える際のポイントを紹介します。
荷物の量・サイズを把握する
収納計画を考える前に、まず生活に必要な日用品や洋服、その他荷物の総量をチェックしましょう。
大きな荷物はサイズを把握しておくことも肝心です。
特に以下の物を持っている方は、事前にリストアップすることが重要になります。
- 大きな衣装ケース
- 季節のアイテム(雛人形や五月人形、クリスマスツリーなど)
- アウトドア用品(自転車、キャンプ用品など)
- スポーツ用品(スキー・スノボの板、ゴルフバッグなど)
- お子様に関連する物(ベビーカー、三輪車、大きな遊具やおもちゃなど)
荷物を出し入れする頻度ごとに分類する
荷物の総量を把握したら、次はそれを出し入れする頻度ごとに分類しましょう。
- 数年に一度出し入れする
- 年に一度出し入れする
- 数ヶ月に一度出し入れする
- 1ヶ月に一度は出し入れする
- 週に一度は出し入れする
- 頻繁に出し入れする
このようにグループ分けすると、どこにしまえば便利なのかが見えてきます。
よく使う物・大きい物・長い物・かさばる物からしまう場所を決める
間取りのどこに収納を配置するか考える際は、「よく使う物・大きい物・長い物・かさばる物」から優先的にしまう場所を決めましょう。
これらの置き場所が決まると、部屋のレイアウトや広さを決めやすくなります。
生活ルーティンを確認する
手間をかけず収納するためには、生活ルーティンから外れた場所にしまう場所を作らないことがポイントになります。
移動のついでに収納できたり、使いたい時にすぐ取り出せると便利ですよね。
そのため、まずはご家族みなさんの朝から夜までの生活を振り返り、いつ・何を使うか確認しましょう。
将来のライフスタイルや家族構成も想定する
多くの方は30・40・50年と長い間住み続けることを前提に家を建てますよね。
長く快適に暮らすためには、将来のライフスタイルや家族構成も想定して収納計画を検討しましょう。
- お子様が増える可能性がある▶︎収納を多めにしておく
- 数年でお子様が独立する可能性がある▶︎収納の一部が不要になるので、スペースを最小限に抑える
- 今はお子様用に収納スペースが必要だが、将来いらなくなる可能性がある▶︎収納スペースを他の用途でも使えるようにする
このように、将来の生活を踏まえて収納計画を立てると、空間が無駄にならずリノベーションの費用も抑えられます。
収納の内部にもこだわる
荷物をしまう場所と広さがある程度決まったら、収納内部のプランにもこだわりましょう。
空間の広さやボリュームが適切であっても、内部のつくりによってはしまいにくくなる可能性があるためです。
収納内部のプランを考える際は、以下の点を設計士と検討しましょう。
- 棚の有無と数
- 棚のサイズ(幅・奥行き)と高さ
- 可動棚か固定棚か
- 扉(ドア)付きかオープンか
- コンセントや照明は必要か
インテリアデザインとの調和を確認する
収納計画において重要なのは“しまいやすさ”ですが、リビングなど来客があったり長時間過ごしたりする場所は、インテリアデザインと調和するかも確認しましょう。
中の物が丸見えにならないか、内部まで掃除できるか、収納の扉がインテリアデザインの邪魔にならないかなどが主なチェックポイントです。
最近は、キッチンなどにオープン棚をつける“見せる収納”もトレンドですが、こまめに整理整頓する必要がある点やホコリが溜まりやすい点にはご注意ください。
ここでのポイントは、「見せる収納・隠す収納のどちらにするのか」という点です。
福岡都市圏及び北九州・山口下関エリアでマイホームの新築をご検討中の方は、鬼丸ハウスがご家族の要望を丁寧に伺い、土地探しから住宅のプランニングまでワンストップでしっかりサポートいたします。
リーズナブルな価格で高気密・高断熱・高耐震のハイクオリティ住宅を提案いたしますので、お気軽にお問い合わせください。
施工実例で見る「おすすめ収納アイデア」

鬼丸ハウスは、収納計画にまでこだわった実例を多数手掛けてきた実績があります。
その中から特徴的なケースを抜粋して、収納のポイントを紹介します。
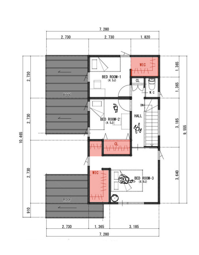
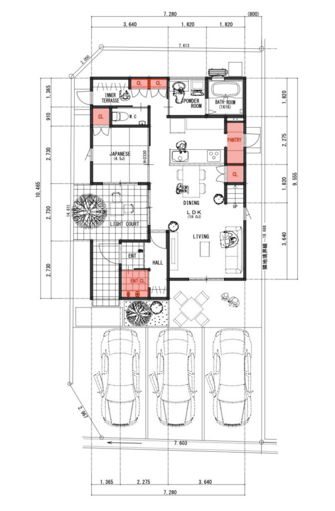
建築面積20坪未満でも収納充実の2階建て住宅


建築面積:18.41坪(4LDK)
こちらは、「シューズインクローゼット・リビング収納・ユーティリティルーム収納・パントリー・ウォークインクローゼット」を備えた実例です。
コンパクトながらも必要な場所に必要な収納スペースを配置し、無駄なく床面積をフル活用できます。
来客のない2階はウォークインクローゼットにドアを付けずオープンにして、扉を開け閉めする手間を減らしコストダウンした点もポイントです。
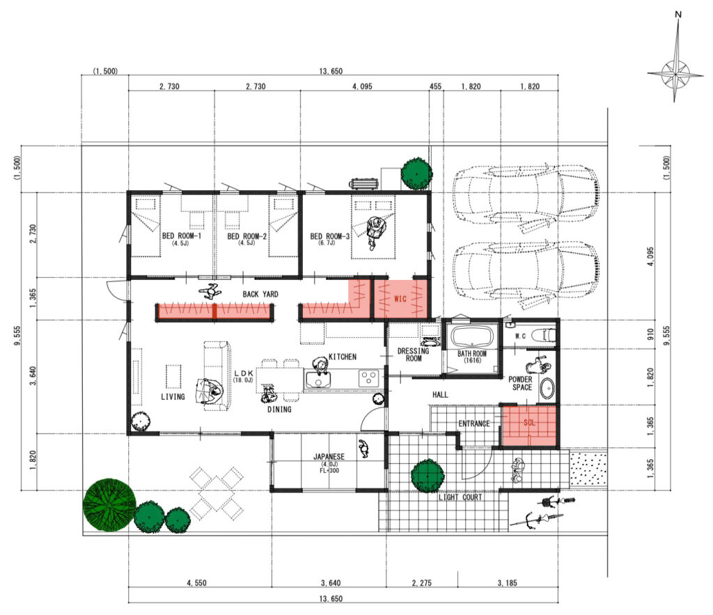
たっぷり収納の平屋建て住宅

建築面積:29.18坪(3LDK)
こちらは、「シューズインクローゼット・ファミリークローゼット・ウォークインクローゼット」を備えた実例です。
ポイントは、収納空間をまとめた点です。
リビングから見えない場所に長いオープンクローゼットを配置することで、ご家族の洗濯物を一気にしまえます。
また、玄関脇のシューズインクローゼットは洗面・トイレと近い場所に配置したので、トイレットペーパーや掃除用品も収納できます。
間取りによっては、収納をまとめることで家事負担を軽減し、造作コストも削減が可能です。
鬼丸ハウスでは、高気密・高断熱・高耐震でさらにデザイン性にもこだわった住宅を手がけていますので、「性能もデザインもコストも諦めたくない」方はぜひご相談ください。
まとめ
「収納が多すぎる・少なすぎる」と後悔したくない方は、収納率と各スペースの面積目安、使い方を意識して収納計画を検討しましょう。
家事の負担を減らして片付けやすい家にしたい方は、設計士とじっくり収納について考えてみてください。
福岡都市圏及び北九州・山口下関エリアで「どんな家を建てられるか知りたい」「土地探しから敷地条件、家の設計施工までワンストップで任せられるハウスメーカーを探している」という方は、鬼丸ハウスにご相談ください。
お問い合わせ Contact
-
鬼丸ハウス本社
〒800-0213
福岡県北九州市小倉南区中曽根東2-13-16093-383-9382(9:00〜18:00)
[営業]9:00~18:00
[定休]なし/GW、お盆、年末年始除く