住まいのコラム Column
家事動線が良いランドリールームの間取りは洗濯を効率的に進めることができ、重い洗濯物を運ぶ距離も短くなるため身体への負担を軽減できるなど、たくさんのメリットがあります。
こちらの記事では、家事動線が良いランドリールームの間取り図や実例、ポイントをご紹介します。
使い勝手の良いランドリールームをつくりたい方は、ぜひ最後までご覧ください。
福岡都市圏及び北九州・山口下関エリアでマイホームを検討中の方は、『鬼丸ハウス』へお問い合わせください。
ご家族のご要望・土地の状況などに応じて、快適な動線の間取りプランを提案いたします。
Contents
家事動線が良いランドリールームの間取り図

家事動線が良いランドリールームを採用した住まいの間取り図をご紹介します。
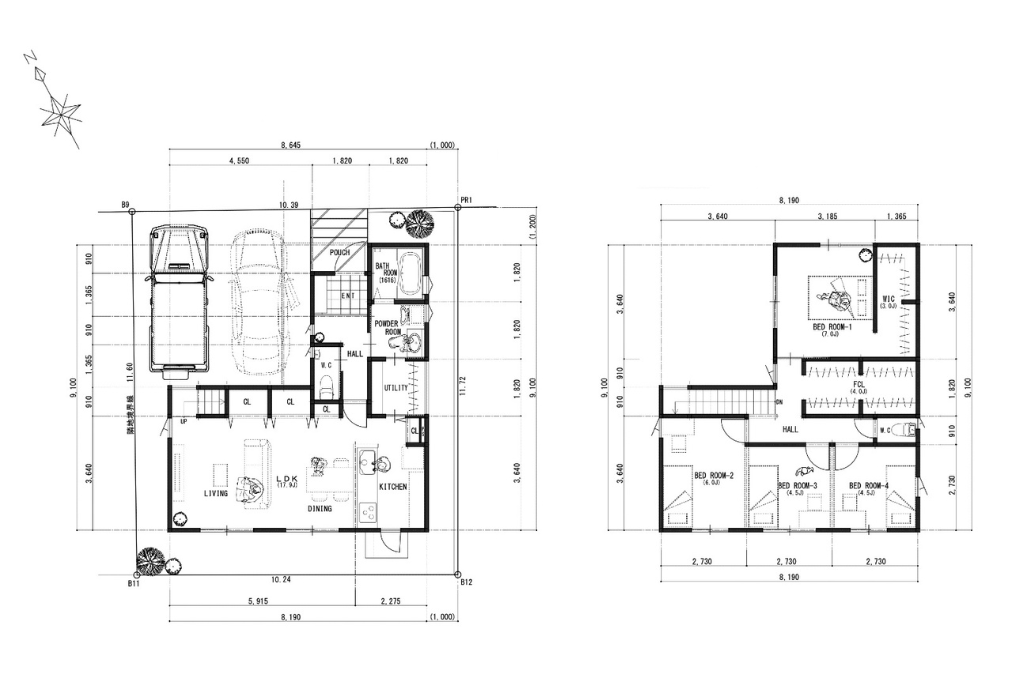
【平屋】LDKとランドリールームをつなぐ便利な家事動線

LDKからランドリールームに直結した平屋の間取りです。
洗面脱衣所ともつながっているため、洗濯物を洗って干す作業をスムーズに行えます。
さらに、クローゼットがある寝室との動線も近いので、しまう作業も効率が良いです。
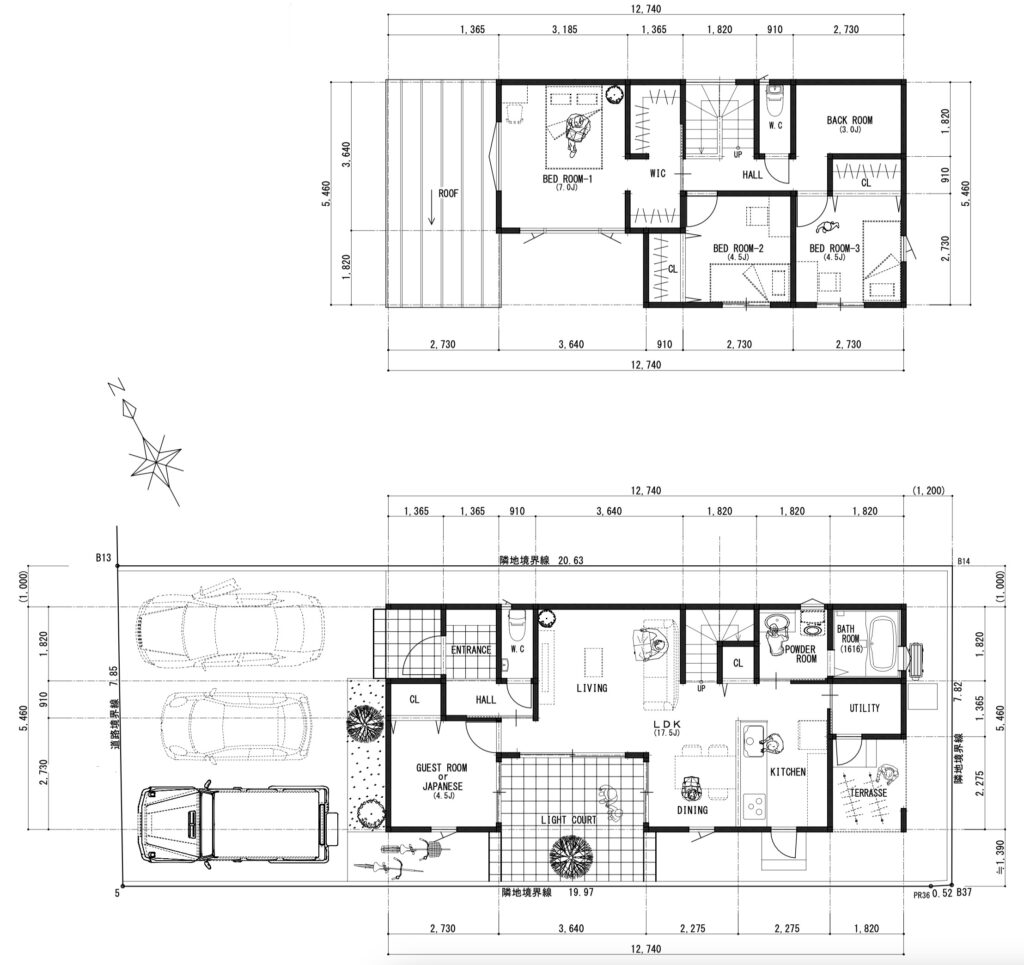
【平屋】水回りと屋外が一直線の動線

浴室・脱衣所・ランドリールーム・洗面所・庭が一直線に配置された平屋です。
キッチンからもランドリールームに直結しており、料理と洗濯を同時並行で行えます。
「室内干し」と「外干し」どちらも活用するというご家庭におすすめな動線です。
【二階建て】多用途で使えるランドリールームがある間取り

玄関・キッチン・水回りからアクセスできるランドリールームがある間取りです。
ランドリールームには、室内干しの金物以外にパイプや棚もあるため、良く着る服はそのまま収納できます。
脱衣所からランドリールームは一直線の動線にして、洗濯物を効率的に干せるように工夫しました。
【二階建て】水回りをまとめた家事動線がある間取り
.png)
浴室・洗面脱衣所・ランドリールーム・キッチンが一直線の便利な家事動線がある住まいです。
各空間の行き来がしやすいため家事の負担を軽減でき、洗濯や調理、浴室の掃除などを同時並行で進めやすくなります。
ランドリールームはカウンターを採用し、干すだけでなくアイロンかけなどもできるようにしました。
【二階建て】インナーテラスとつながるランドリールームがある間取り

インナーテラスとつながる独立したランドリールームがある間取りです。
ランドリールームは洗面脱衣所からも近いため、洗う・干す作業の時短につながります。
室内干しをするためにランドリールームを使う以外に、外干しした洗濯物を一時置きする場としても活用できて便利です。
家事動線が良いランドリールームの実例

家事動線が良いランドリールームの実例をご紹介します。
①脱衣所とランドリールームが一体になった間取り

脱衣所とランドリールームが一体になった空間を採用した間取りです。
洗濯機から洗濯物を出してそのまま干せるため、移動が必要ありません。
幅広の収納棚を採用し、タオルや下着、パジャマなどの脱衣所で使う物をしまえるようにしました。
<関連コラム>新築住宅の収納が「多すぎた・少なすぎた」|後悔しないための“収納計画”ポイントと事例を紹介
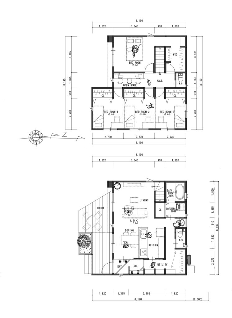
②二階ホールとランドリールームが兼用の間取り

二階ホールに昇降式の物干し竿をつけ、ランドリールームとしても使えるようにした事例です。
室内干しをしないときは物干し竿を天井付近に収納できるため、空間をすっきり使えます。
乾いた洗濯物を畳んでカウンターに置いておけば、各自が部屋に持ち帰るような習慣付けもしやすい間取りです。
鬼丸ハウスの建築実例をたくさんご紹介しておりますので、ぜひご覧ください。
家事動線が良いランドリールームの間取りにするポイント

家事動線が良いランドリールームをつくるポイントをご紹介します。
①ランドリールームの用途を考える
まずはランドリールームの用途を考えることがポイントです。
毎日室内干しをするなら、洗濯機がある脱衣所や洋服をしまうクローゼットを近づけた動線が便利です。
外干しする日も多いなら、ランドリールームから屋外へ出られる動線にすると、家事をスムーズに進められます。
ランドリールームの使い方や使用頻度を考えながら、レイアウトを検討することでご家族に合った空間をつくることが可能です。
②家事のルーティーンを明確化する
家事のルーティーンを明確にすることで、よりご自身に合ったランドリールームの動線をつくることができます。
例えば、朝食の準備や片付けの合間に洗濯したいなら、キッチン・脱衣所・ランドリールームが近い動線だと便利です。
洗濯機を回している間にゴミ出しや庭の手入れをして、終わってすぐに洗濯物を干したいなら、玄関や勝手口とランドリールームを近づけると家事の効率が高まります。
このようにご自身の行動パターンを振り返ることで、家事動線が良いランドリールームをつくりやすいです。
③二階建ては上下階の移動を最小限にする
二階建てにランドリールームを取り入れる場合は、上下階の移動を最小限にするような動線を確保することがポイントです。
二階建ての家でも一階に脱衣所とランドリールーム、ファミリークローゼットがあって洗濯が完結できれば、上下階の移動を最小限にできます。
日常的に着る洋服をしまえるコンパクトなファミリークローゼットがあるだけでも、二階に運ぶ洋服の量が減るため、家事の負担を減らすことが可能です。
洗濯動線が一階・二階に分かれてしまうなら、各階の階段の付近にランドリールームやファミリークローゼットを配置するなどの工夫をおすすめします。
④平屋は平面的な動線を短くする
平屋はワンフロアの面積が広いため、平面的な動線を短くすることがポイントです。
脱衣所を北東、ランドリールームを南西に配置した場合、重い洗濯物を持って家の端から端まで移動しなければなりません。
洗濯動線を一直線にレイアウトしたり、隣接させたりすることで、家事効率を高めることができます。
福岡都市圏及び北九州・山口下関エリアで家事動線が良い家を建てたい方は、鬼丸ハウスへお問い合わせください。
お客様のライフスタイルに合わせて、使い勝手の良いランドリールームがある間取りをご提案いたします。
おすすめしたい家事動線が良い間取りアイデア

ランドリールームの工夫以外に、おすすめしたい家事動線が良い間取りアイデアをご紹介します。
①玄関とパントリー・キッチンを近づける
買い出した食材をしまいやすいように、玄関とパントリー・キッチンを近づけた動線がおすすめです。
靴を脱いですぐ食材をしまえれば、重い荷物を運ぶ距離を少なくできます。
買い溜めをして車と家を何往復もしなければならないときにも、利便性を感じられるはずです。
②玄関収納をウォークスルータイプにする
玄関収納やシューズクロークを行き止まりにしないことで、家事動線が良い間取りになります。
靴や服、カバンなどをシューズクロークにしまい、そのまま室内に行けるため帰宅時の動線が短いです。
お子さまも使いやすい収納ならばご自身で片付ける習慣がつきやすいため、ママ・パパの家事を軽減できます。
ご自身が家事しやすい動線をつくるだけでなく、ご家族全員が片付けや家事をしやすい間取りを考えることがポイントです。
③水回りの近くに畳スペースをつくる
水回りの近くに畳スペースのある動線もおすすめです。
具体的に次のような使い方ができます。
- 料理中にお子さまを遊ばせるスペースとして使える
- 洗濯物を畳んだり、アイロンがけしたりできる
- 家事の合間に休憩するスペースとして使える
様々な用途で使える畳スペースを、キッチンやランドリールームに隣接させて、利便性を高めてみてくださいね。
④家の中心に中庭をつくる
家の中心に中庭がある間取りもおすすめです。
様々な空間からアクセスできる中庭は、洗濯物を干したりしまったりする際の動線を短くできます。
LDKと隣接している中庭ならバーベキューなどをするときにも、食材を運ぶ負担を軽減することが可能です。
中庭のある住まいは家事をしながらお子さまの様子を見守りやすいなどのメリットもあります。
福岡都市圏及び北九州・山口下関エリアでこだわりの注文住宅を建てたい方は、鬼丸ハウスへお問い合わせください。
お客様のライフスタイルやご予算に合わせて、暮らしやすい動線を取り入れた間取りをご提案いたします。
まとめ
家事動線が良いランドリールームがあると、洗濯を効率的に進めることができます。
毎日する家事を楽にできるのは、家づくりにおいて重要なポイントです。
ランドリールームの用途や家事のルーティーンを考えながら、動線の良い間取りを取り入れましょう。
お問い合わせ Contact
-
鬼丸ハウス本社
〒800-0213
福岡県北九州市小倉南区中曽根東2-13-16093-383-9382(9:00〜18:00)
[営業]9:00~18:00
[定休]なし/GW、お盆、年末年始除く