住まいのコラム Column
「玄関の向きが北の間取りは、避けるほうがいい」というイメージをお持ちの方が多いと思いますが、実は、玄関の向きが北の快適な間取りづくりは可能です。
また「北向きの玄関はダメ」と言われるのは主に家相の影響で、実際にデメリットもありますが、デメリットは設計の工夫などによって解消できます。
今回は、福岡都市圏及び北九州・山口下関エリアのハウスメーカー『鬼丸ハウス』が、玄関の向きに応じた快適な家づくりの方法を紹介します。
すみずみまで気持ちの良い環境のマイホームを完成させるために、ぜひ最後までごらんください。
福岡都市圏及び北九州・山口下関エリアでマイホームを検討中の方は、『鬼丸ハウス』へお問い合わせください。
ご家族のご要望・土地の状況などに応じて、快適な間取りプランを提案いたします。
Contents
玄関の向きが北の間取り成功例

はじめに、玄関の向きを北にして快適な間取りづくりに成功した事例を紹介します。
実際の間取り図で、水回りや居室の配置・家事動線なども確認しましょう。
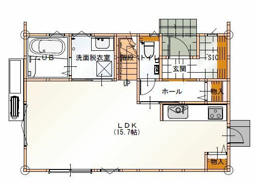
玄関の向きが北の平屋
こちらは、北に玄関・水回りを集約して居室・収納面積を最大限に確保した平屋の間取り事例です。
玄関からファミリークローゼットやLDKを回遊できる動線も特徴で、室内を効率的に移動できるよう工夫しています。
-1.jpg)
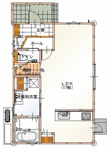
玄関の向きが北の縦長の家
こちらは縦長の住宅で、北向きの玄関から一直線に水回りを配置しています。
水回り・LDKを左右に分けて廊下を設けないことで、スペースを有効活用しながら家事動線・生活動線の良い間取りが完成しました。


玄関の向きが北の横長の家
こちらは、横長の住宅の間取り事例です。
北向きの玄関をL字型にして大容量の収納スペースを確保し、スッキリとした環境を保てる玄関となりました。


北向きの玄関・パントリー・LDKのアクセスが良い間取り
こちらは、北向きの玄関からパントリー・キッチン・リビングへスムーズにアクセスできる間取り事例です。
また、玄関ホールに洗面スペース・トイレを配置し、来客時に脱衣室などのプライベートスペースが見られることのないよう工夫しています。


北向きの玄関から室内へのアクセスが良い回遊動線の間取り
こちらの住宅は、1階全体が回遊動線となっている間取り事例です。
各スペースに2箇所の出入り口を設けているため、北向きの玄関から入室し、最短距離で目的のスペースへアクセスできます。


北向きの玄関・階段を直結させた間取り
こちらの住宅は、北に玄関・階段を配置しています。
玄関・階段は意外と必要面積が大きい部位のため、集約して配置することで、居室・水回り・収納のための面積を確保しやすくなります。


北向きの広い玄関土間がある間取り
こちらの住宅は、北に3帖ほどの玄関土間スペースを確保しました。
広い玄関土間には、靴だけでなくベビーカー・アウトドアグッズなども収納可能です。


鬼丸ハウスには、今回紹介しきれなかった事例がまだたくさんあります。ぜひごらんください。
玄関の向きを北にして快適な家づくりに成功した間取り事例を紹介してきましたが、「北向きの玄関はダメ」というイメージもありますよね。
実際に、玄関の向きが北の場合は特有のデメリットもあるため、次にわかりやすく解説します。
福岡都市圏及び北九州・山口下関エリアでマイホームを検討中の方は、鬼丸ハウスへお問い合わせください。
ご家族の快適な住環境を実現する間取りプランを提案いたします。
「北向きの玄関はダメ」と言われる理由は北向き特有の環境&家相の吉凶

「北向きの玄関はダメ」と言われる主な理由は、2つです。
- 北向き特有の環境
- 家相の吉凶
北は太陽が当たらない方角のため、自然光の力で玄関室内を明るく暖かい環境にするのが難しい点が特徴です。
特に冬は、西高東低の気圧配置の影響で北風が吹き、冷たい空気に含まれている水分が玄関室内の結露となりやすい点も、「北向きの玄関はダメ」と一般的に言われる理由です。
また、家相の観点でも以下のように考えられているため、玄関の向きを北にすることに不安を感じる方が多くいらっしゃいます。
- 北:太陽の反対側=悪い気が滞りやすい場所
- 北東:表鬼門で気が入れ替わる場所のため、不安を感じやすい
ただし住宅性能は日々進化していて、北向きの玄関を北特有のデメリットや家相が気にならない、快適で明るい環境にする工夫が可能です。
また、北向きの玄関を選ぶメリットもあるため、次に紹介します。
玄関の向きを北にするメリット、デメリット解消法

玄関の向きを北にするからこそのメリットや、デメリット解消法を確認しましょう。
玄関の向きを北にするメリット
玄関の向きを北にする主なメリットは、以下のとおりです。
- 北向きの玄関・外観全体に直射日光が当たらないため、紫外線による劣化を抑えられる
- 北道路で北向きの玄関・駐車場の場合は、夏に車内の温度が急上昇しづらい、紫外線による車のボディの劣化を抑えられる
- 日当たりの良い南・東に居室や水回りを配置しやすい
- 玄関周辺に居室以外のスペース(水回り・階段など)を集約させることで、居室面積を確保しやすい
- 北に多くの居室を配置するケースは少ないため、来客時にプライベート空間を見られない間取りを作りやすい
また家相では、北の中でも「北西に玄関を配置するのは吉」とする流派もあります。
家相は流派によって考え方が違う場合があるため、家相にこだわらずに「快適な室内環境づくり」「快適・清潔をキープしやすい家づくり」を優先することも、マイホームプラン組み立てに役立ちます。
玄関の向きを北にするデメリット解消法|風水対策も紹介

玄関の向きを北にする場合のデメリットは、以下の方法で解消可能です。
明るくて風通しが良く、清潔な状態を維持しやすい玄関づくりを目指しましょう。
| デメリット | 解消法 |
|---|---|
| 暗い | ・室内ドア・室内窓・吹き抜け・天窓などで、南・東からの自然光を玄関に届ける工夫をする ・外観・内装を明るい色にする ・昼白色(太陽光のような色)の照明を設置する |
| 寒い | ・断熱性・気密性※の高い設計 ・室内を暖かい空気が自然に循環する換気設備を選択する |
| 結露が発生しやすい | ・換気設備の給気口・排気口を適切に設置し、湿気を滞留させない ・窓の配置を工夫して、湿気を滞留させない |
※「断熱性」とは、冬に室内の暖かい空気を外に逃さず、夏に日射熱を室内に侵入させない性能のことです。
※「気密性」とは、家のすき間を小さくして室内・屋外の空気が勝手に出入りするのを防ぐ性能のことです。
また、家相の元となった風水には、北向きの玄関を明るく気の流れが良い環境にする対策があり、上記のデメリット解消法とあわせて実施することで、より快適な玄関の環境づくりを目指せます。
- 玄関外に植栽をする、玄関室内に観葉植物を置く→空間の浄化
- ピンク・オレンジなど暖色系のマットを敷く→外から持ち込んだ汚れや気を吸収
- 玄関に入室して正面以外の位置に鏡を置く→良い気を呼び込み、悪い気をはね返す
ちなみに、「北向きの玄関」とは「室内から玄関ドアを開ける方角が北」の玄関のことで、玄関を北に配置してもドアを開ける方角が南の場合は、「南向きの玄関」となります。
玄関の向きが北以外の場合でも方角ごとの特徴があるので、次に紹介します。
福岡都市圏及び北九州・山口下関エリアでマイホームを検討中の方は、鬼丸ハウスへお問い合わせください。
ご家族の要望を丁寧に伺い、快適な住環境を実現する間取りプランを提案いたします。
玄関の向きを北以外にする場合のメリット・デメリット

玄関の向きが北以外の場合でも、方角ごとのメリット・デメリットや、家相の吉凶などがあります。
玄関の向きに応じて、快適なマイホームプランを組み立てましょう。
玄関の向きが南のメリット・デメリット
玄関の向きを南にする主なメリット・デメリットは、以下のとおりです。
【メリット】
- 冬に、玄関室内の明るく暖かい環境を維持しやすい
- 玄関・LDKの向きを南にすると、外出・帰宅するご家族、来訪者の様子を把握しやすい
- 雪国の場合、冬に玄関前の雪が溶けやすく出入りしやすい環境を維持できる
- 南には大きな窓を設置することが多いため、家の顔である玄関・外観が開放的な印象となる など
また家相では、玄関の向きは南から東の方角が吉とされています。
【デメリット】
- 夏に玄関室内が高温になりやすい
- 玄関ドア・外壁が紫外線の影響で劣化しやすい
- 南に配置できる居室の面積が小さくなる など
玄関の向きを南にする場合には、玄関ポーチや庇(ひさし)で玄関ドア・外壁の劣化を防ぎましょう。
また南向きの玄関に窓を設ける場合には、遮熱性の高い製品を選んで玄関室内の快適な環境づくりをしてください。
玄関の向きが東のメリット・デメリット

玄関の向きを東にする主なメリット・デメリットは、以下のとおりです。
【メリット】
- 朝に、明るく暖かい環境の玄関から外出できる
- 東向きの玄関に太陽が当たるのは午前中のみなので、夏に玄関室内に熱がこもりにくい
- 日当たりの良い東・南に多くの居室を配置する場合、家事動線・生活動線の良い間取りをつくりやすい
- 午後以降に直射日光が当たらないため、南向き・西向きと比較して玄関ドア・外壁の劣化を抑えられる
また、家相で東は玄関などの配置が吉とされていて、ほかの方角と比較して凶とされる相が少ない点も特徴です。
【デメリット】
- 午後から夕方にかけて太陽が当たらないため、夕方以降に玄関室内の温度が下がりやすい
- 午前中に日当たりの良い方角に配置したい子ども部屋・寝室などの配置が制限される など
東は、ほかの方角と比較して大きなデメリットがない点が魅力です。
玄関の向きが西のメリット・デメリット

玄関の向きを西にする主なメリット・デメリットは、以下のとおりです。
【メリット】
- 午後から夕方にかけて太陽が当たるため、夜まで玄関室内の暖かさを維持しやすい
- 夕方に帰宅するご家族を、明るい環境で迎えられる
- 朝から日当たりの良い東・太陽が当たる時間が長い南に居室を配置しやすい
- 西・北の方角に玄関・水回りを集約させることで、南・南に居室を配置しやすい
また、家相では西から北の方角に仏壇を置くことが吉とされているため、「西向きに玄関・仏間を隣接or直結させる」といった間取りも作成できます
【デメリット】
- 午後から夕方にかけて直射日光が当たるため、玄関・外壁が劣化しやすい
- 午後から夕方にかけて玄関室内の温度が上がりやすく、靴のにおいが気になりやすいケースがある
- 午前中の玄関室内が、寒く暗い環境になりやすい
玄関の向きを西にする場合には、南と同様に庇などで玄関ドア・外壁に紫外線が当たることを防ぐのがおすすめです。
また午前中の暗さ解消対策として「南の方角に室内窓を設ける」などの工夫で、玄関に自然光を取り入れましょう。
まとめ
玄関の向きを北にした間取り成功例、「北向きの玄関はダメ」と言われる理由、北向きの玄関特有のデメリット解消法などを紹介してきました。
玄関の方角は土地の状況や間取りに応じて検討する必要があり、どの方角にもメリット・デメリットがあります。
各方角特有のデメリットは現代の住宅性能やデザインの工夫で解消できるため、今回紹介した情報を理想のマイホームづくりの参考にしていただけると幸いです。
お問い合わせ Contact
-
鬼丸ハウス本社
〒800-0213
福岡県北九州市小倉南区中曽根東2-13-16093-383-9382(9:00〜18:00)
[営業]9:00~18:00
[定休]なし/GW、お盆、年末年始除く